New Build, Ballybrakes Road, Ballymoney

POA
Under Offer
This property listing is now Under Offer

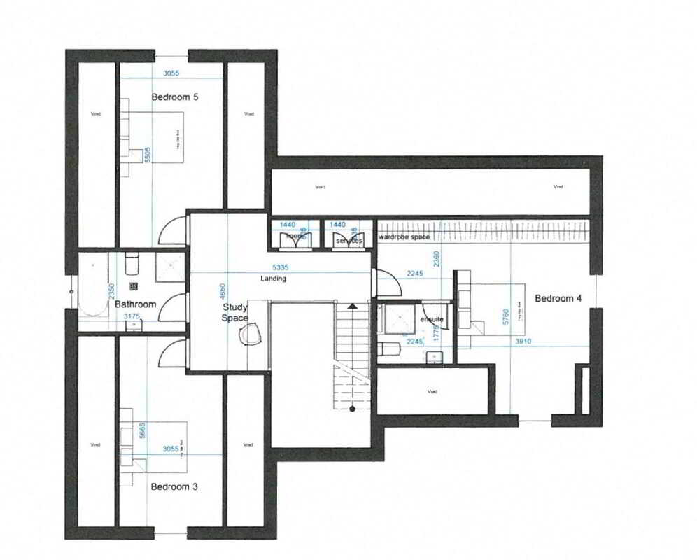
5 Bedroom Detached House for sale in Ballymoney

2 5 4
  • High energy efficient home (B rating EPC).
  • Oil high efficiency boiler with thermostatically controlled radiators (underfloor heating on the ground floor).
  • uPVC triple glazed windows.
  • Internal doors: prefinished with chrome handles.
  • Internal walls, woodwork, ceiling painted in neutral colours throughout.
  • Choice of carpet from range with underlay to stairs, landing, lounge and all bedrooms, wood finish flooring to Kitchen/Dining/Living, hall, pantry, utility room, bathrooms and ensuites.
  • Extensive electrical specification including down lighters to kitchen area, bathroom & ensuite.
  • Mains supply smoke, heat & carbon monoxide detectors.

We are delighted to offer for sale this newly constructed luxury detached family home with double garage set on a spacious rural site on the edge of the town and within walking distance to the numerous amenities Ballymoney has to offer.


This spacious contemporary new build property (circa 2,500 sqft) constructed to the highest standards offers well proportioned and flexible 5 bedroom (2 ensuite) accommodation together with lounge and feature open plan Kitchen/Dining/Living room accommodation.


This superb property is being offered for sale with a high quality turnkey specification to include underfloor heating on the ground floor, a high quality Orlee fitted kitchen, contemporary bathrooms/ensuites and wood finish flooring (to some of the rooms) amongst other features in this contemporary and highly energy efficient rural family home.


If you are looking for luxurious living on the edge of the town in a super convenient location this could be the one!


Contact us the selling agents for further details. Please note viewing is strictly by appointment only.


 


General Features


Kitchen


 


Choice of soft closing doors and drawers, worktop, matching upstand and handle to kitchen & utility area.


 


Appliances to include induction hob, extractor hood, oven, dishwasher, integrated fridge and freezer and dishwasher.


 


 


 


Bathrooms, ensuites & w.c.


 


Contemporary white sanitaryware including vanity unit to bathrooms/ensuites.


 


Thermostatically controlled shower to shower cubicles.


 


Heated towel rails.


 


Soft close toilet seat and cover.


 


 


 


Tiling


 


Choice of wall tiling from range; - tiling surround to w.c vanity unit, ensuite and bathroom vanity units – fully tiled shower cubicles and tiling to bath area.


 


 


 


External Features


 


External lighting to front and rear doors.


Low maintenance finishes including; - self – colour render – composite front and rear doors.


Seamless aluminium guttering and PVC downpipes.


Front & rear gardens levelled and topsoiled.


Bitmac parking areas and footpaths.


 


Warranty


Architects certificate.


 

Property Ref: ST0608216_986124

Share:

Similar Properties

189b Seacon Road, Ballymoney

5 Bedroom Detached House | POA

16 Ballure Heights, Corkey, Ballymena

4 Bedroom Semi-Detached Bungalow | POA

8 Ballynacree Avenue, Balnamore, Ballymoney

4 Bedroom Detached House | POA

39 Main Street, Ballymoney

Shop | £4,000pa

1a Charles Street, Ballymoney

Office | £4,200pa

McAfee Properties (Ballymoney)

Ballymoney, Ballymoney, County Antrim, BT53 6AN

028 2766 7676

How much is your home worth?

Use our short form to request a valuation of your property.

Request a Valuation

Mortgage Calculator

Amount Borrowed: £
Total Amount Repayable: £
Total Monthly Payment: £
©2025 The Guild of Property Professionals. All rights reserved. Terms and Conditions | Privacy Policy | Cookie Policy | Complaints Policy | Members Login
The Guild of Property Professionals Trading Address: 121 Park Lane, London W1K 7AG. GPEA Limited. Registered in England & Wales.  Company No: 02819824.  Registered Office Address: 2 St. Stephen's Court, St. Stephen's Road, Bournemouth, Dorset, England, BH2 6LA.  VAT Registration No: 576 8795 61
Book a Property Valuation Update Cookies Preferences