Blackawton, Totnes

Guide Price
£250,000

2 Bedroom Flat for sale in Totnes

1 2 1
  • Charming 2 Bedroom Apartment
  • Quiet Rural Position
  • Gorgeous Extensive Grounds
  • Beautifully Presented Throughout
  • Allocated Parking & Guest Parking
  • Indoor and Outdoor Swimming Pools & Tennis Court
  • Mains Electricity, Private Spring Water Supply, Private Drainage. Electric Heaters
  • 999 Year Lease From January 1998
  • £3400 p.a. Service Charge

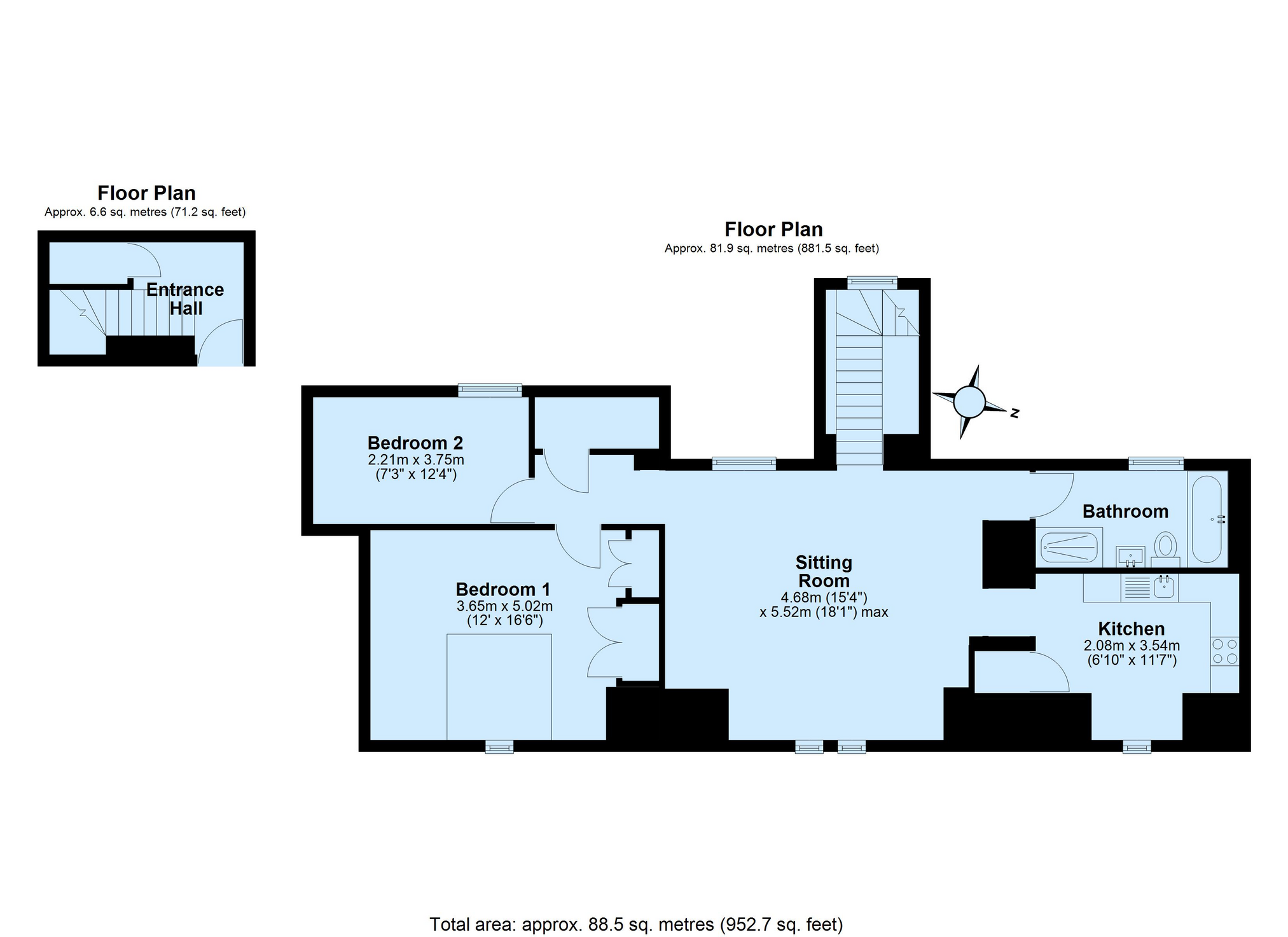
4 Sheplegh Court is a beautifully presented two bedroom apartment situated on the second floor of a wonderful country house, just a short drive from the charming River Dart town of Dartmouth, which would make an ideal holiday retreat, permanent home or investment.

Sheplegh Court is a substantial period property set within approximately 20 acres of peaceful, landscaped grounds. Originally the site of a former monastery, the property was thoughtfully converted in the 1980s into a collection of spacious apartments and cottages, all of which benefit from a good range of communal facilities.

The apartment itself retains its period feel and offers a wonderful combination of character and comfort with really pretty views across the surrounding grounds. The accommodation includes an entrance hall, a light and spacious open plan living and dining room, a stylish, well fitted and well-appointed kitchen with a good range of base and wall units and integrated appliances, two bedrooms and a modern family bathroom.

Outside, the property also benefits from an allocated parking space, as well as guest parking.

Residents of Sheplegh Court enjoy exclusive access to a range of communal amenities. These include both indoor and outdoor heated swimming pools, a sauna, a snooker room, a tennis court, a communal laundry room, and extensive grounds featuring lawns, wooded areas, and walking paths.

Located close to the attractive village of Blackawton, which offers a strong community spirit, a church, a popular local pub, and a highly regarded primary school, the property is also within easy reach of Dartmouth. This historic town provides a wide range of shopping and marina facilities and sits at the mouth of the picturesque River Dart, well known for sailing and home to the Britannia Royal Naval College. The market town of Totnes lies around nine miles to the north and provides mainline rail links to London, with a journey time of approximately three hours. Nearby attractions also include Dartmouth Golf & Country Club and Woodlands Leisure Park.4 Sheplegh Court offers an opportunity to own a comfortable home in one of South Devon’s most scenic and peaceful rural settings.

Tenure
999 year leasehold from January 1998

Service Charge
£3400 p.a.

Services
Mains electricity. Private spring water supply. Private drainage. Electric heaters

Viewing
Strictly by appointment with the Sole Agents, Marchand Petit, Dartmouth. Telephone: 01803 839190

Fixtures & Fittings
All items in the written text of these sales particulars are included in the sale. Other items are expressly excluded, regardless of inclusion in any photograph. Purchasers must satisfy themselves that any equipment included in the sale of the property is in satisfactory working order.

Important Information

  • This is a Leasehold property.
  • The annual service charges for this property is £3400

Property Ref: 2728_TSJ736868

Share:

Similar Properties

Hermitage Road, Dartmouth

3 Bedroom Terraced House | Guide Price £237,500

An end terrace family home located In a tucked away position at the end of a cul de sac in an elevated position close to...

Hermitage Road, Dartmouth

2 Bedroom Terraced House | Guide Price £225,000

A mid terraced family home located In a tucked away position at the end of a cul de sac in an elevated position close to...

Raleigh Street, Dartmouth

2 Bedroom Flat | Guide Price £215,000

A perfect town centre bolthole, on the level, situated a stone’s throw from the South Embankment, which is currently a s...

Undercliffe, Dartmouth

2 Bedroom Apartment | Guide Price £265,000

A really charming duplex apartment in a level central position within a short walk of the River Dart which has been beau...

North Embankment, Dartmouth

1 Bedroom Flat | Guide Price £275,000

A well presented ground floor apartment with a parking space in a level central position with the shops, galleries, rest...

Blackawton, Totnes

3 Bedroom Flat | Guide Price £275,000

A spacious well presented first floor apartment situated in a large country house in a peaceful rural setting in grounds...

Marchand Petit (Dartmouth)

Hauley Road, Dartmouth, Devon, TQ6 9AA

01803 839 190

How much is your home worth?

Use our short form to request a valuation of your property.

Request a Valuation

Mortgage Calculator

Amount Borrowed: £
Total Amount Repayable: £
Total Monthly Payment: £
©2025 The Guild of Property Professionals. All rights reserved. Terms and Conditions | Privacy Policy | Cookie Policy | Complaints Policy | Members Login
The Guild of Property Professionals Trading Address: 121 Park Lane, London W1K 7AG. GPEA Limited. Registered in England & Wales.  Company No: 02819824.  Registered Office Address: 2 St. Stephen's Court, St. Stephen's Road, Bournemouth, Dorset, England, BH2 6LA.  VAT Registration No: 576 8795 61
Book a Property Valuation Update Cookies Preferences