Plot 26 (Custom-Build) Tubwell Lane, Crowborough

£625,000

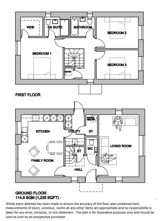
3 Bedroom Detached House for sale in Crowborough

3 2
  • Custom Build Detached House
  • 3 Double Bedrooms
  • 2 Bathrooms
  • Private Enclosed Garden
  • Driveway Parking
  • Predicted Energy Assessment: B
  • 10 Year Warranty By Buildzone
  • Lower Energy Bills
  • Passivhaus Specification
  • Super Insulated & Airtight

An opportunity to purchase a detached 3 double bedroom house built to Passivhaus standards on a Custom-Build basis, on this high-quality scheme by Cubed Homes located in the sought after town of Crowborough.



Custom choices to include external spaces/internal room options/ specification and internal fittings and flooring options. (Dependant on development timings).



Price bench-marked on the standard Cubed private specification. Alterations will be costed and the price adjusted to reflect those.



Please contact damian@cubedhomes.com or newhomes@woodandpilcher.com for any further information.

THE CUSTOM-BUILD PLOT(FURTHER INFORMATION)

THE PLOT (PLANNING REQUIREMENTS) Cubed will obtain detailed planning permission for the Plot. This can then be customised by the buyer who may choose to amend the internal floor layout and specification of the unit.

THE PLOT (PARAMETERS) The single Plot is identified as Plot 26 and as such, the size, boundaries, space for parking and amenity space are fixed by virtue of the consented properties either side of the Plot. The Plot will be fully serviced and any landscaping requirements for the overall development will be discharged.

THE PLOT (PARKING & CYCLE STORAGE) Parking space and cycle storage to standards to be provided.

THE PLOT (EXTERNAL PLOT CHOICES) The purchaser will be provided with an external specification to include such items as a patio area and lawn treatment that has been assumed in bench-marking the sale price of the completed unit. The purchaser could then make certain further choices: these would be costed and the price adjusted to take account of those changes.

THE UNIT (EXTERNAL DESIGN) A Planning Application will be obtained for a single unit. The application will take account of the design and layout of the surrounding scheme, the planning constraints encountered to date, Wealden District Council's design code and materials consented to date and the specific location of Plot 26 adjacent to Rotherfield Road.

THE UNIT (BUILDING MASS & SCALE) Based upon the main consented scheme, Cubed have submitted planning for a detached, three bedroomed house of circa.1,235 sq.ft GIA, over two storeys. With associated car-parking and amenity space.

THE UNIT (STREETSCAPE FEATURES) Given the existing consented street-scene along the road, exterior facing material is likely to be brick work. Windows are likely to be UPVC. Roof covering is likely to be tiled.

THE UNIT (INTERNAL LAYOUT OPTIONS) The purchaser, in conjunction with Cubed and their Architects will then be able to select certain limited changes to the internal layout to meet with their specific requirements (Separate rooms, sub-divided spaces etc). Options could be drawn up to assist the purchaser with the process.

THE UNIT (INTERNAL SPECIFICATION & FIXTURES AND FITTINGS) The purchaser will be offered a standard specification that would be included in the sale price for the private units. This will be used to bench-mark the price of the completed Unit. They will be offered a choice of certain internal specification and Fixtures & Fittings which will include a choice of the following: Kitchen options, Bathroom options, Tile options, Internal door, architrave and skirting options, Architectural Ironmongery options, Flooring options and Decorating options. Dependant on the timing/progress of the development.

PRICING The unit price has been bench-marked against the private units within the development and based on the standard Cubed specification, for the remaining private units, detailed above. Alterations to layout and both external & internal specification and fixtures & fittings will be costed, and the price will be adjusted to reflect those alterations and choices.

DISPOSAL- THE BUYER PROCESS 1. Applicant to agree internal layout, specification, Fixtures & Fittings and decoration options. Bench-marked price will be calculated and agreed.



2. Applicants to complete the reservation process in the normal way and provide a reservation fee to Cubed which will be held by their solicitors.



3. Solicitors will be instructed to carry out the conveyancing process on the Plot.



4. 20% of the value of the property will be payable by the buyer on exchange of contracts which (as is the case with PD sales) shall not be refundable if the customer fails to completed once the Unit has been practically completed. The exchanged contract for sale shall be evidenced to the Council pursuant to the Section 106. Agreement and shall be treated as a qualified Self-Build and Custom-Build Plot disposal for the purposes of the Section 106 Agreement regardless of whether the customer legally completes the acquisition.



5. 80% of the value of the property is payable on practical completion. The land of the Custom-Build Dwelling plot shall not transfer prior to practical completion. If the customer fails to complete the acquisition of the Plot pursuant to the sale agreement, then Cubed shall have the option to retain the deposit and dispose of the dwelling on the open market. However, the dwelling shall remain as a qualified Custom-Build Dwelling for the purposes of the Section 106 Agreement as it shall have been built (or part built if the customer terminates the sale agreement prior to practical completion for whatever reason) pursuant to the Purchasers Choices. If the sale falls through before any works are carried out above ground level and the plot is still within the 12-month marketing period, then it should be marketed and offered to other potential custom build customers, for the remainder of the 12-month marketing period, before being offered on the open market.

THE ABOVE DRAWINGS AND INFORMATION HAS BEEN PRODUCED FOR YOUR GUIDANCE ONLY. WHILST EVERY CARE HAS BEEN TAKEN, ITS ACCURACY CANNOT BE GUARANTEED. CUBED HOMES RESERVES THE RIGHT TO CHANGE THE SPECIFICATION WITHOUT PRIOR NOTICE

Important Information

  • This is a Freehold property.

Property Ref: WP3_100843038037

Share:

Similar Properties

The Farthings, Crowborough

5 Bedroom Detached House | £625,000

Offered to the market chain free, this spacious 5 bedroom detached home features generous living accommodation and a sel...

Blackness Road, Crowborough

4 Bedroom Detached House | £625,000

Offering 4 double bedrooms, 2 reception rooms and a modern kitchen is this beautifully presented detached family house....

The Farthings, Crowborough

4 Bedroom Detached House | £625,000

An exceptionally well presented 4 bedroom detached family house set to the end of a private cul-de-sac. Advantages inclu...

The Mallards, Crowborough

4 Bedroom Detached House | £630,000

++MUST BE SEEN TO BE APPRECIATED++ A chain free, beautifully presented 4 bedroom detached home built only 5 years ago an...

Beacon Road, Crowborough

4 Bedroom Link Detached House | £650,000

Offered to the market chain free is this renovated 4 bedroom Grade ll listed attached house set down a private road with...

Starfield, Crowborough

4 Bedroom Detached House | £650,000

Set at the end of a private cul-de-sac, this extended detached family home offers 4 bedrooms. Key features include 3 rec...

Wood & Pilcher (Crowborough)

Crowborough, East Sussex, TN6 1AL

01892 665666

How much is your home worth?

Use our short form to request a valuation of your property.

Request a Valuation

Mortgage Calculator

Amount Borrowed: £
Total Amount Repayable: £
Total Monthly Payment: £
©2025 The Guild of Property Professionals. All rights reserved. Terms and Conditions | Privacy Policy | Cookie Policy | Complaints Policy | Members Login
The Guild of Property Professionals Trading Address: 121 Park Lane, London W1K 7AG. GPEA Limited. Registered in England & Wales.  Company No: 02819824.  Registered Office Address: 2 St. Stephen's Court, St. Stephen's Road, Bournemouth, Dorset, England, BH2 6LA.  VAT Registration No: 576 8795 61
Book a Property Valuation Update Cookies Preferences