Wartnaby Road Ab Kettleby

Guide Price
£725,000

4 Bedroom Detached House for sale in Ab Kettleby

4 4 3
  • Four Bedroomed, Three Storey Period Residence
  • Retaining Many Original Character Features
  • Further Huge Potential for Customisation & Extension
  • Lounge, Sitting Room, Playroom, Dining Room, Home Office, Magnificent Living/Dining Kitchen, Utility/Cloakroom, Laundry Room
  • Three First Floor Bedrooms, Bathroom & Separate Shower
  • Second Floor with Fourth Bedroom
  • Brick Paved Driveway with Car Standing for Six Cars
  • Formal Walled Gardens, Extensive Top Garden & Paddock
  • Energy Rating D
  • Council Tax Band D

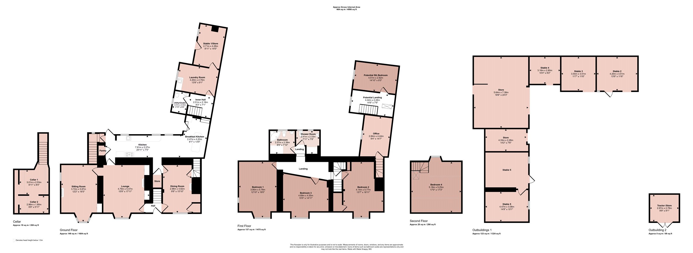
A most deceptive four bedroomed, period residence offering flexible and extensive accommodation on a plot extending to 1 acre with various stable and outbuildings, offering increased potential with extension of the existing accommodation or into other uses. The property lies in a conservation area retaining many original character features, having been further enhanced in a contemporary style. The accommodation comprises hallway, lounge, sitting room/playroom, dining room with stairs to first floor home/office, magnificent refitted open-plan living/dining kitchen with integrated range cooker, cellar storage, rear hallway leading to utility/cloakroom, further laundry room (currently used for home brewing) with access door to one of the many outbuildings. From the inner hallway a separate second stairs leads to other rooms for general modernisation which could be a fifth bedroom and en-suite if required. The main stairs leads to a split-level landing which gives access to three double bedrooms, bathroom and shower room, further return staircase to second floor leading to bedroom four. Outside is a brick paved extensive driveway (with access to 14b) with car standing for at least six vehicles, four/five stable outbuildings offering various uses with further open storage area with steps to the rear gardens and paddock. To the back of the property are formal gardens with ornamental walls, flagstone patios and lawns with stocked borders. There are extensive top gardens and paddock with potential equestrian use, double fronted tractor shed and lean-to storage. Early inspection required to fully appreciate the quality of the existing accommodation and internal character, together with further huge potential to form other customised accommodation if required.

Important Information

  • This is a Freehold property.
  • This Council Tax band for this property is: D
  • EPC Rating is D

Property Ref: BNT_BNT250673

Share:

Similar Properties

Main Street Newtown Linford

4 Bedroom Semi-Detached House | Asking Price £710,000

Field Farmhouse offers an abundance of character and charm set in a tucked away position in the heart of Newtown Linford...

Melton Road Hickling Pastures

4 Bedroom Detached House | Offers Over £699,995

Set in the heart of Hickling Pastures, this spacious 3/4 bedroom detached home offers idyllic rural living with stunning...

Westby Grantham

3 Bedroom Detached House | Guide Price £695,000

A unique, fully modernised equestrian three/four bedroom detached residence lying on a plot extending to 1.01 acres (plu...

Green Farm Court Anstey

4 Bedroom Detached House | Asking Price £729,999

A barn style, four bedroomed detached residence situated in this exclusive gated development lying between Anstey and Ne...

Melton Road Syston

4 Bedroom Detached House | Guide Price £750,000

Kirby House dates back to 1875 and provides a unique opportunity to purchase this period, four bedroomed detached reside...

Main Street Stapleton

4 Bedroom Detached House | £775,000

Paddock Barn is an individual and one off beautifully designed home with high quality modern fixtures and fittings yet h...

Bentons (Melton Mowbray)

47 Nottingham Street, Melton Mowbray, Leicestershire, LE13 1NN

01664 563892

How much is your home worth?

Use our short form to request a valuation of your property.

Request a Valuation

Mortgage Calculator

Amount Borrowed: £
Total Amount Repayable: £
Total Monthly Payment: £
©2026 The Guild of Property Professionals. All rights reserved. Terms and Conditions | Privacy Policy | Cookie Policy | Complaints Policy | Members Login
The Guild of Property Professionals Trading Address: 121 Park Lane, London W1K 7AG. GPEA Limited. Registered in England & Wales.  Company No: 02819824.  Registered Office Address: 2 St. Stephen's Court, St. Stephen's Road, Bournemouth, Dorset, England, BH2 6LA.  VAT Registration No: 576 8795 61
Book a Property Valuation Update Cookies Preferences