Strathfield Cottage, Stretton, Alfreton, DE55 6FE

£310,000
SSTC
This property listing is now SSTC

2 Bedroom Barn Conversion for sale in Alfreton

2 2 1
  • 2 bedroom semi detached barn conversion
  • Private garden with patio, decked terrace and lawn area.
  • Designated driveway for multiple vehicles
  • Beautifully styled throughout, blending modern life with countryside charm
  • Shaker kitchen with solid wood worktops, breakfast bar and Belfast sink
  • Open plan dining room with patio doors leading onto the garden
  • Stunning vaulted ceiling lounge with exposed stone wall, oak beams, log burner and patio doors onto the decked terrace
  • Timelessly styled bathroom with bath and shower
  • Tranquil location within stunning Derbyshire countryside, with easy access to neighbouring towns and cities
  • EPC rating - D. Council tax band - B. Tenure - Freehold

Welcome to Strathfield Cottage; a simply stunning two-bedroom barn conversion nestled in the heart of idyllic Stretton, set amongst rolling Derbyshire countryside, this remarkable home perfectly blends rustic charm with contemporary living, creating a peaceful haven that feels worlds away yet remains wonderfully connected.

Tucked within this sought-after pocket of Stretton, renowned for its beautiful footpaths, leafy lanes, and sweeping farmland, Strathfield Cottage is the epitome of countryside calm. From open fields dotted with wildlife to picturesque village pubs and easy access to the Peak District's most celebrated scenery, this is a location where nature leads the pace of life.

Beyond its postcard setting, the barn itself is rich with warmth and character; a truly enchanting conversion. Thoughtfully modernised while preserving its heritage, the property is bursting with original charm: exposed stone walls, oak beams, and a striking vaulted ceiling that creates a sense of drama and space. At its heart, the inviting lounge centres around a log-burning stove; perfect for cosy evenings after a countryside walk.

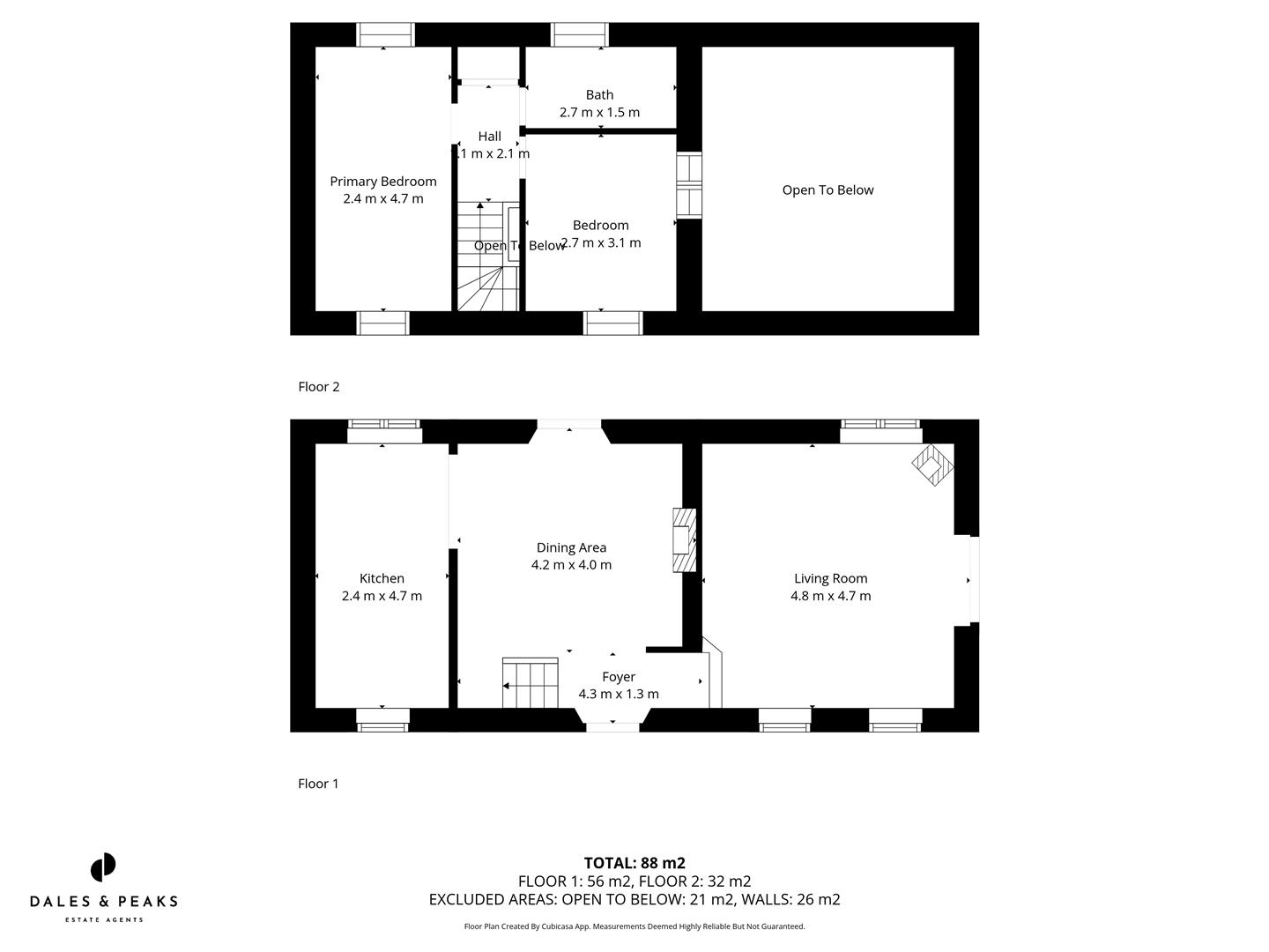
Extending to 947 sq.ft. across two floors, the home features a beautifully appointed shaker-style kitchen with solid wood worktops, Belfast sink and breakfast bar; the perfect place to gather. An open-plan dining space with French doors opening to the garden, allowing indoor and outdoor living to flow effortlessly. A spectacular living room, bathed in natural light, with floor-to-ceiling glazing and vaulted oak beams that celebrate the barn's heritage. Two generously proportioned bedrooms offering peaceful retreats and a timelessly styled bathroom fitted with both bath and shower.

Dales And Peaks Forwardmove - Please Read - Dales & Peaks is marketing this Property with the benefit of ForwardMove. Dales & Peaks has introduced ForwardMove to help speed up the sales process, minimise sale fall-throughs and give more certainty to both the Seller and the Buyer.

Purchasers will benefit from the Buyer Information Pack (BIP), which we have created with our legal partners, to give buyers more information before they agree to purchase.

The pack includes:

Property information form (TA6)
Fixtures and contents form (TA10)
Official Copy of the Register (OC1)
Title Plan (OC2)
Local Search*
Water and Drainage Search*
Coal and Mining Search*
Homescreen / Environmental Search*

(Dales & Peaks has ordered the local, drainage, coal and homescreen / environmental searches; we will add these to the BIP as they become available)

ForwardMove allows the sale process to be completed significantly quicker than a 'normal sale'. This is because the legal work, usually done in the first four to eight weeks after the sale is agreed, has already been completed. The searches, which can take up to five weeks, are ordered on the day the listing goes live and are transferable to the successful Buyer as part of their legal due diligence.

Additionally, and on behalf of the Seller, Dales & Peaks requests that the successful Buyer enters into a Reservation Agreement and pays the Reservation Agreement Fee of £595 (including VAT). This includes payment for the Buyer Information Pack and all the searches (which a buyer typically purchases separately after the sale is agreed).

Upon receipt of the signed Reservation Agreement, payment of the Reservation Agreement Fee, completion of ID and AML checks and the issuing of the Memorandum of Sale, the Seller will agree to take the Property off the market and market it as Sold Subject To Contract (SSTC).

During the Reservation Agreement period, the Seller will reject all offers and not enter into another agreement with any other buyer. The reservation period is agreed upon at the time of sale but is usually between 60 and 120 days.

The Reservation Fee is non-refundable except where the Seller withdraws from the sale. A copy of the Reservation Agreement is available on request, and Dales & Peaks advises potential buyers to seek legal advice before entering into the Reservation Agreement.

If you have any questions about the process or want to know how selling or buying with Dales & Peaks ForwardMove could benefit you, please speak to a member of the Dales & Peaks team.

Property Ref: 34299741

Share:

Similar Properties

Darley House Estate, Darley Dale, DE4 2QN

3 Bedroom Detached Bungalow | Guide Price £300,000

£300,000 - £325,000 (Guide price) Tucked away on Darley House Estate in a private and secluded spot, is this well presen...

Starkholmes Road, Matlock, DE4 3DD

3 Bedroom House | Guide Price £300,000

.. 3D TOUR .. £300,000 - £315,000 (Guide price) Situated in the highly desirable and picturesque village of Starkholmes,...

St. Johns Road, Matlock Bath, Matlock

3 Bedroom End of Terrace House | Guide Price £300,000

£300,000 - £325,000 (Guide price) A quaint 3 bedroom end terrace cottage, occupying a generous plot with beautifully pre...

New Road, Wingerworth, Chesterfield, S42 6TD

3 Bedroom Detached House | £315,000

Dating back to the late 1700's, this grade II listed former gate house to central drive, located in the sought after vil...

Settlement Drive, Van Dyk Village, Clowne, Chesterfield, S43

4 Bedroom Semi-Detached House | Guide Price £325,000

£325,000 - £350,000 (Guide price) Quietly positioned looking onto woodland, within this sought after location, an area s...

Malthouse Lane, Ashover, Chesterfield, S45

3 Bedroom Semi-Detached House | Guide Price £325,000

£325,000 - £350,000 (Guide price) Situated in the very heart of the highly sought-after village of Ashover, this beautif...

Dales and Peaks (Chesterfield)

Brampton, Chesterfield, S40 2AP

01246 567540

How much is your home worth?

Use our short form to request a valuation of your property.

Request a Valuation

Mortgage Calculator

Amount Borrowed: £
Total Amount Repayable: £
Total Monthly Payment: £
©2026 The Guild of Property Professionals. All rights reserved. Terms and Conditions | Privacy Policy | Cookie Policy | Complaints Policy | Members Login
The Guild of Property Professionals Trading Address: 121 Park Lane, London W1K 7AG. GPEA Limited. Registered in England & Wales.  Company No: 02819824.  Registered Office Address: 2 St. Stephen's Court, St. Stephen's Road, Bournemouth, Dorset, England, BH2 6LA.  VAT Registration No: 576 8795 61
Book a Property Valuation Update Cookies Preferences