The Beeches Site, The Farmhouse, Bradbourne, Ashbourne

Guide Price
£900,000

Land for sale in Ashbourne

  • Exceptional 1.5 Acre Building Plot with Full Planning Permission
  • Approved Plans for an Impressive 9,000 sq ft Country Residence
  • Triple Garage with Accommodation Above
  • Magnificent Far-Reaching Views Across the Derbyshire Countryside
  • Exclusive Hamlet Setting
  • Opportunity to Acquire Additional Land - Up to Approximately 16 Acres
  • Site Cleared and Prepared for Immediate Development
  • Both Water & Electricity Services are Connected & Available
  • Enquiries Invited via Fletcher & Company

Occupying a magnificent position within the rolling countryside of the Derbyshire Dales, The Farmhouse, Brassington Lane, Bradbourne presents a truly exceptional opportunity to create a substantial bespoke country residence within a remarkable rural setting.

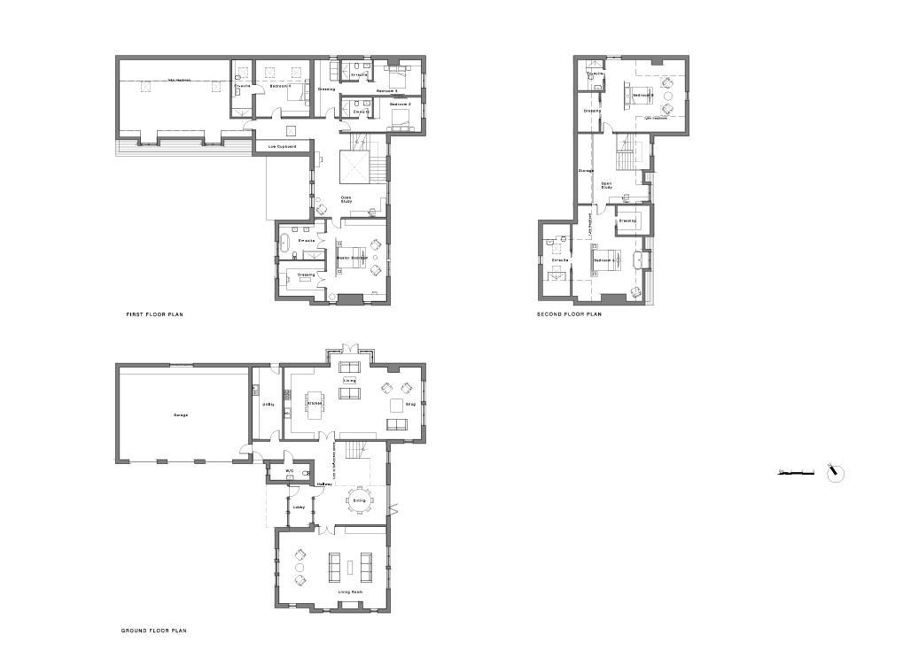
Extending to approximately 1.5 acres, this impressive parcel of land benefits from full planning permission for a striking 9,000 sq ft luxury farmhouse-style residence incorporating a triple garage with accommodation above, designed by Sitwell Homes. For those seeking a larger estate-style holding, there may also be the opportunity to acquire further adjoining land of up to approximately 16 acres, subject to separate negotiation.

The approved design has been thoughtfully conceived to combine the timeless character of a traditional Derbyshire farmhouse with the space, light and openness required for modern luxury living. The proposed accommodation centres around a grand reception hallway, leading to a series of beautifully proportioned living and entertaining spaces. The layout provides six luxurious en-suite bedrooms, alongside multiple reception rooms and a dedicated open study, offering both elegance and flexibility for family life.

A sweeping private driveway creates a striking sense of arrival, leading to the residence and triple garage, while the generous gardens and surrounding land provide a rare sense of space, privacy and connection with the surrounding landscape.

From the plot, far-reaching panoramic views stretch across unspoilt Derbyshire countryside, creating an exceptional backdrop for a home of this calibre.

Combining the tranquillity of rural living with convenient access to the nearby market town of Ashbourne, renowned as the gateway to the Peak District National Park, this remarkable plot offers the opportunity to create a truly outstanding country residence tailored entirely to the vision of its future owner.

Site Plan -

Aerial Image -

Elevations -

Property Ref: 34558836

Share:

Similar Properties

Wallstones Farm, Hazelwood, Belper, Derbyshire

5 Bedroom Detached House | Offers in region of £899,950

ECCLESBOURNE SCHOOL CATCHMENT AREA - Nestled in the picturesque hamlet of Hazelwood, Wallstones Farm presents a rare opp...

Short Avenue, Allestree Park, Derby

5 Bedroom Detached House | Offers in region of £875,000

ALLESTREE PARK & LAKE - A beautifully renovated and extremely versatile, four to six bedroom, detached family home.The p...

Avenue Road, Duffield, Belper, Derbyshire

6 Bedroom Semi-Detached House | Offers in region of £875,000

ECCLESBOURNE SCHOOL CATCHMENT AREA - Gorgeous Victorian Home - A Five/Six Bedroom Period Residence with Private Garden L...

Ashover House, Duffield Road, Darley Abbey, Derby

5 Bedroom Detached House | £925,000

ECCLESBOURNE SCHOOL CATCHMENT AREA - This is a superbly appointed, recently constructed, spacious detached residence for...

Montpelier, Quarndon, Derby

4 Bedroom Detached House | Offers in region of £975,000

ECCLESBOURNE SCHOOL CATCHMENT AREA - Beautiful four bedroom detached property located close to the charming walks over B...

Burland Green Lane, Weston Underwood, Ashbourne

4 Bedroom Detached House | £1,000,000

AN OUTSTANDING ULTRA MODERN HOME - Enjoy an enviable lifestyle within a hyper environmental property with stunning and f...

Fletcher & Company (Duffield)

Duffield, Derbyshire, DE56 4GD

01332 843390

How much is your home worth?

Use our short form to request a valuation of your property.

Request a Valuation

Mortgage Calculator

Amount Borrowed: £
Total Amount Repayable: £
Total Monthly Payment: £
©2026 The Guild of Property Professionals. All rights reserved. Terms and Conditions | Privacy Policy | Cookie Policy | Complaints Policy | Members Login
The Guild of Property Professionals Trading Address: 121 Park Lane, London W1K 7AG. GPEA Limited. Registered in England & Wales.  Company No: 02819824.  Registered Office Address: 2 St. Stephen's Court, St. Stephen's Road, Bournemouth, Dorset, England, BH2 6LA.  VAT Registration No: 576 8795 61
Book a Property Valuation Update Cookies Preferences