Churchill Tower, South Harbour Street, KA7

Offers Over
£115,000

2 Bedroom Flat for sale in Ayrshire

1 2 2
  • Stylish ground floor apartment
  • Prime location in the seaside town of Ayr
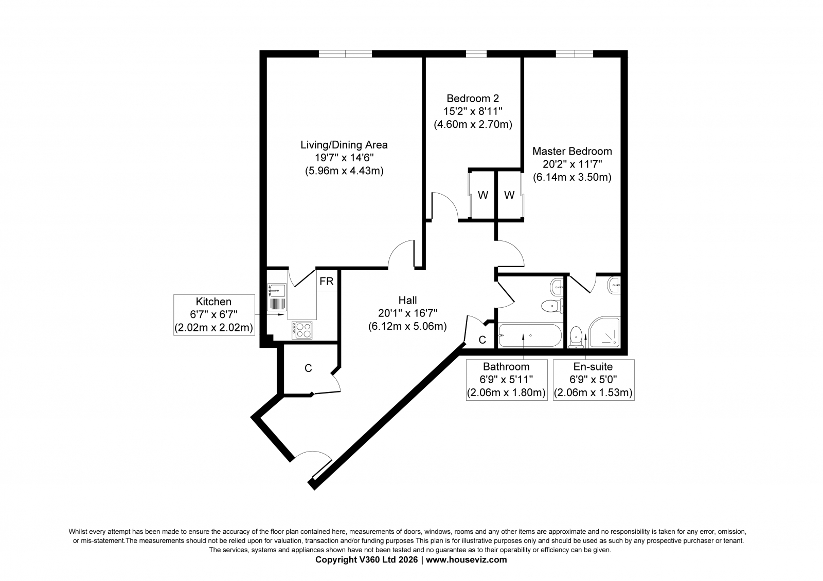
  • Spacious entrance hallway with excellent storage
  • Principal bedroom with fitted wardrobes and en suite shower room
  • Allocated parking space in residents’ secure private car park
  • Located on South Beach, within walking distance of beach, shops, and amenities

Property Matters Online are delighted to present to the market this stylish ground floor apartment, ideally positioned within the highly sought after seaside town of Ayr.

The accommodation begins with a spacious and welcoming entrance hallway, benefiting from excellent built in storage. From here, the property opens into a bright and generously proportioned lounge, which in turn provides access to the fitted kitchen, creating a comfortable and practical living space.

The apartment offers two well sized double bedrooms, both featuring fitted wardrobes. The principal bedroom further benefits from a modern en suite shower room. Completing the accommodation is a contemporary fitted bathroom with shower over bath.

Externally, the property enjoys the convenience of an allocated parking space located beneath the building within the residents secure private car park. Additional features include double glazing and gas central heating throughout.

Churchill Tower enjoys an enviable position on South Beach, placing the promenade, beach, local shops and a wide range of amenities all within easy walking distance. Ayr also benefits from excellent transport links to Glasgow via the railway station and convenient access to the A77.

This attractive apartment presents an ideal opportunity for first time buyers or those seeking a relaxed coastal lifestyle. Early viewing is highly recommended.

Viewings by appointment only.

PARTICULARS: Property Matters Ayrshire Ltd for themselves and for the sellers of this property whose agents they are, give notice that the particulars are produced in good faith, are set out as a general guide only and do not constitute any part of a contract and that no person in the employment of Property Matters Ltd has any authority to make or give any representation or warranty whatever in relation to this property. Intending purchasers must satisfy themselves, by inspection or otherwise, on all matters.

OFFERS: Offers must be submitted in Scottish legal form to the sole selling agents. Formal note of interest should be registered prior to offering. A closing date will only be notified to parties who have registered interest through their solicitors. The seller reserves the right to accept any offer at any time.

Important Information

  • This is a Freehold property.

Property Ref: prmalt_2024837217

Share:

Similar Properties

Balfour Court, Kilmarnock, KA3

3 Bedroom End of Terrace House | Offers Over £115,000

Property Matters Online aredelighted to present to the market this exceptional three-bedroom end terracedvilla, offering...

MacNichol Gardens, Kilmarnock, KA3

3 Bedroom Semi-Detached House | Offers Over £115,000

*** CLOSING DATE - WEDNESDAY 11th MARCH AT 12 NOON *** Welcome to 44 MacNicol Gardens, Kilmarnock. Property Matters Onli...

Lainshaw Avenue, Kilmarnock, KA1

3 Bedroom Flat | Offers Over £115,000

**CLOSING DATE - TUESDAY 17TH MARCH AT 12NOON**

Habbieauld Road, Kilmaurs, KA3

3 Bedroom End of Terrace House | Offers Over £119,995

Welcome to 62 Habbieauld Road, Kilmaurs. Presented to the market by Property Matters Online, this well-proportioned thre...

Foundry Wynd, Kilwinning, KA13

2 Bedroom End of Terrace House | Offers Over £119,995

*** CLOSING DATE - WEDNESDAY 4TH FEBRUARY AT 12 NOON ***

Trelawney Terrace, Stevenston, KA20

3 Bedroom Semi-Detached House | Offers Over £120,000

**CLOSING DATE - THURSDAY 26TH FEBRUARY AT 12NOON**Property Matters Online are delighted to presentto the market this ch...

Property Matters Online (Kilmarnock)

Kilmarnock, Ayrshire, KA1 1BG

01563 558877

How much is your home worth?

Use our short form to request a valuation of your property.

Request a Valuation

Mortgage Calculator

Amount Borrowed: £
Total Amount Repayable: £
Total Monthly Payment: £
©2026 The Guild of Property Professionals. All rights reserved. Terms and Conditions | Privacy Policy | Cookie Policy | Complaints Policy | Members Login
The Guild of Property Professionals Trading Address: 121 Park Lane, London W1K 7AG. GPEA Limited. Registered in England & Wales.  Company No: 02819824.  Registered Office Address: 2 St. Stephen's Court, St. Stephen's Road, Bournemouth, Dorset, England, BH2 6LA.  VAT Registration No: 576 8795 61
Book a Property Valuation Update Cookies Preferences