Castlewood, Galgorm, Ballymena, BT42 1SF

Offers in region of
£370,000
SSTC
This property listing is now SSTC

4 Bedroom Detached House for sale in Ballymena

1 4 1
  • Detached family home
  • Four bedrooms (one with en-suite shower room)
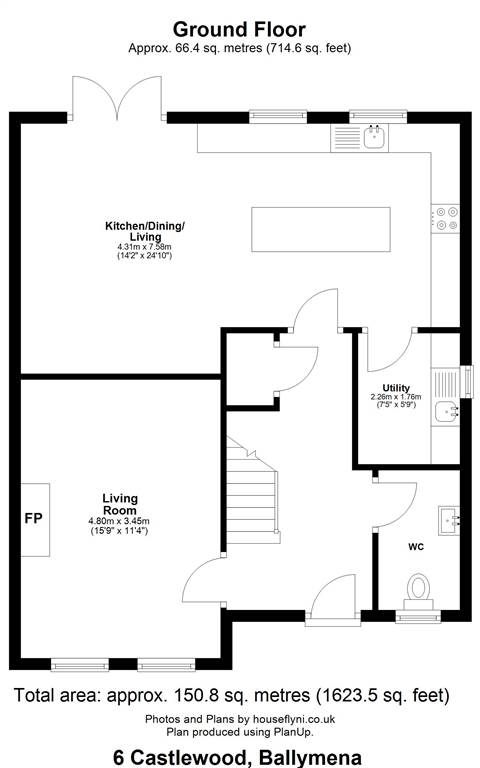
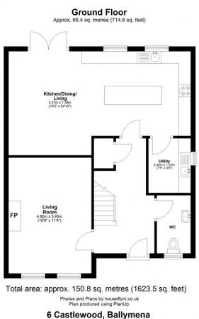
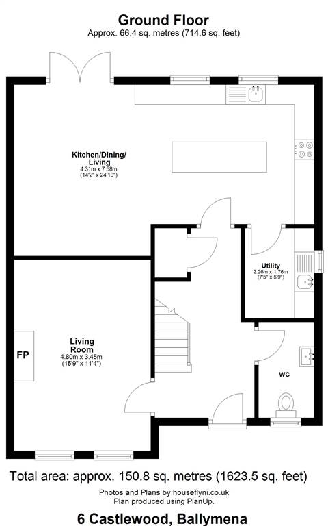
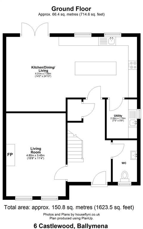
  • Living room with wall-mounted fireplace
  • Spacious kitchen/dining/living room
  • Utility room off kitchen
  • Cloakroom with LFWC
  • First floor bathroom with 4-piece suites
  • Gas heating system
  • PVC double glazed windows
  • Composite front door and PVC rear doors

Homes Independent are delighted to present to the market this exceptional detached home at 6 Castlewood, Galgorm. Nestled within one of the area’s most highly regarded and desirable developments, this stunning property offers modern family living in a peaceful yet convenient setting. The spacious interior comprises a welcoming living room with a contemporary wall-mounted electric fire, a bright and open-plan kitchen with dining and living space perfect for entertaining, utility room, ground floor WC, four well-proportioned bedrooms, one of which benefits from an en-suite shower room and a stylish family bathroom completes. Outside, the property continues to impress with a detached garage, a generous driveway providing ample parking and a fully enclosed rear garden offering both privacy and space, complete with lawn and paved patio area ideal for outdoor dining or relaxation. Perfectly positioned close to local amenities, scenic walks and highly regarded schools, this home combines style, comfort and convenience in equal measure. Homes Independent highly recommend arranging your viewing early to truly appreciate all that 6 Castlewood has to offer.

Property Ref: HIBM_HIBM5109

Share:

Similar Properties

Tullaghans Road, Dunloy, Finvoy, BT53 7DY

4 Bedroom Detached House | Offers in region of £365,000

46b Tullaghans Road is the epitome of a family dream home, crafted with exceptional care by its original owners less tha...

Church Road, Glenwherry, BT42 3EH

4 Bedroom Detached House | Offers in region of £365,000

Homes Independent are delighted to bring to the market this truly unique and beautifully renovated detached residence, s...

Sheepshill, Ballymena, BT42 1QW

4 Bedroom Detached House | Offers in region of £350,000

Homes Independent are delighted to present to the market 5 Sheepshill, a stunning detached family home located in one of...

Castlegate, Galgorm, Ballymena, BT42 1SD

4 Bedroom Detached House | Offers in region of £379,950

Nestled behind a private gated driveway, this stunning detached chalet house occupies a prominent corner site within thi...

Douglas Road, Glenwherry, BT42 4RG

4 Bedroom Detached Bungalow | Offers in region of £385,000

Homes Independent are delighted to welcome you to 41 Douglas Road which is located with-in a quiet, rural setting on the...

Quarrytown Road, Broughshane, BT43 7LB

3 Bedroom Detached House | Offers in region of £389,950

Homes Independent are thrilled to present this stunning detached chalet house, set on a beautifully maintained and priva...

Homes Independent (Ballymena)

Ballymena, Antrim, BT43 5AA

028 2565 11 11

How much is your home worth?

Use our short form to request a valuation of your property.

Request a Valuation

Mortgage Calculator

Amount Borrowed: £
Total Amount Repayable: £
Total Monthly Payment: £
©2026 The Guild of Property Professionals. All rights reserved. Terms and Conditions | Privacy Policy | Cookie Policy | Complaints Policy | Members Login
The Guild of Property Professionals Trading Address: 121 Park Lane, London W1K 7AG. GPEA Limited. Registered in England & Wales.  Company No: 02819824.  Registered Office Address: 2 St. Stephen's Court, St. Stephen's Road, Bournemouth, Dorset, England, BH2 6LA.  VAT Registration No: 576 8795 61
Book a Property Valuation Update Cookies Preferences