Weigh Out, Church Street, Barmouth

Offers in region of
£259,995

Studio Apartment for sale in Barmouth

1
  • Shop Premises
  • Prominent position on the High Street
  • Successful Business
  • Excellent income potential
  • Easy walking distance of harbour, beach and shops
  • Current EPC Rating C

An exciting opportunity to purchase a well established and successful ground floor shop, Weigh Out. Located on the High Street in the popular seaside town of Barmouth, this is an opportunity not to be missed!

Weigh Out is part of Barmouth's retail history, having been in the town for over 30 years and has been ran as a very successful shop and been voted in the Top 100 best shops in the World.

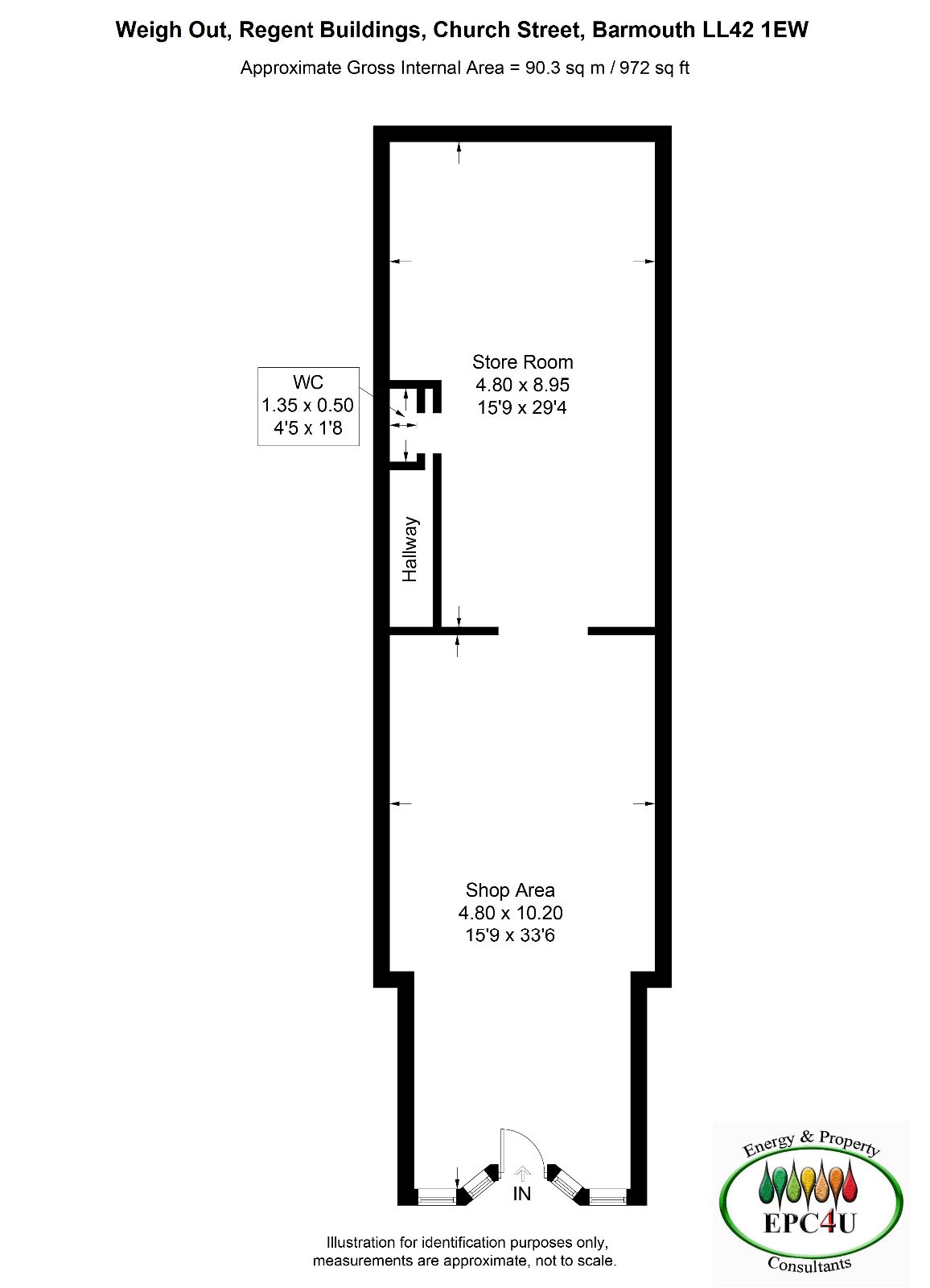
The property consists of a large shop front, with a further 2 storage and office areas to the rear together with a W.C.

For a lifestyle change or those wishing to run their own successful business, viewing is highly recommend.

Tenure: Freehold
Status: Commercial

Front door into

Main Shop Area w: 10.3m x l: 4.11m (w: 33' 10" x l: 13' 6")
Shop wide picture windows, open floor plan, stainless steel sink and drainer, utility area.

Store Room 1 w: 9.13m x l: 4.48m (w: 29' 11" x l: 14' 8")
Split in two by step.
Office and preparation area 4.37 x 4.48, concrete floor.
Rear storage area 4.76 x 4.29, concrete floor.

Corridor w: 5.87m x l: 0.81m (w: 19' 3" x l: 2' 8")

W.C.
W.C.

Services
Mains electric, water and drainage.

Important Information

  • This is a Freehold property.

Property Ref: RS2945

Share:

Similar Properties

Tyddyn Bach, Dyffryn Ardudwy LL44 2RQ

3 Bedroom Cottage | Offers in region of £259,995

Tyddyn Bach is a quaint 3 bedroomed, stone built cottage. This unique property is a sheer delight, full of charm and cha...

18 Llwyn Ynn, Talybont, LL43 2AL

3 Bedroom Bungalow | Offers in region of £255,000

18 Llwyn Ynn is a detached three-bedroom property located on the edge of a popular residential estate. The property bene...

Glyn Coed, School Road, Friog, LL38 2RJ

3 Bedroom Detached House | Offers in region of £250,000

Glyn Coed is a detached three-bedroom dormer bungalow with an additional four attic rooms, set in an elevated position w...

Ty Gwyn, South Street, Dolgellau, LL40 1NP

3 Bedroom Detached House | Offers in region of £265,000

Ty Gwyn is a detached three-bedroom property located on the outskirts of Dolgellau, enjoying attractive countryside view...

1 Glan Morgan, High Street, Barmouth LL42 1DS

3 Bedroom Flat | Offers in region of £265,000

1 Glan Morgan Shop with 3 bedroomed maisonette above, is a substantial stone terraced building under a slated roof locat...

4 Tai Newyddion, Llanfachreth, Dolgellau, LL40 2DY

4 Bedroom Semi-Detached House | Offers in region of £269,950

**NO ONWARD CHAIN**4 Tai Newyddion is a charming 4 bedroom semi-detached property, standing within the centre of the vil...

Walter Lloyd Jones & Co (Dolgellau)

Bridge Street, Dolgellau, Gwynedd, LL40 1AS

01341 422278

How much is your home worth?

Use our short form to request a valuation of your property.

Request a Valuation

Mortgage Calculator

Amount Borrowed: £
Total Amount Repayable: £
Total Monthly Payment: £
©2026 The Guild of Property Professionals. All rights reserved. Terms and Conditions | Privacy Policy | Cookie Policy | Complaints Policy | Members Login
The Guild of Property Professionals Trading Address: 121 Park Lane, London W1K 7AG. GPEA Limited. Registered in England & Wales.  Company No: 02819824.  Registered Office Address: 2 St. Stephen's Court, St. Stephen's Road, Bournemouth, Dorset, England, BH2 6LA.  VAT Registration No: 576 8795 61
Book a Property Valuation Update Cookies Preferences