8 Elmwood Avenue, BT9

Offers Over
£425,000
SSTC
This property listing is now SSTC

Commercial Property for sale in Belfast

  • Parking

The subject property is located on Elmwood Avenue, approximately 1 mile south of Belfast City Centre, which is conveniently accessed via Lisburn Road or University Road. Elmwood Avenue is an extremely popular location given it?s close proximity to Queens University, botanic gardens and a plethora of local amenities.

The property also benefits from excellent transport links, with access to the M1 motorway via the Broadway roundabout just 1 mile away, while there are multiple train stations and bus stops within walking distance.

The surrounding area contains a good mix of residential, commercial, educational and f&b uses. Occupiers in the vicinity include Queens University, Ulster Museum and Tesco Express, as well as a number of popular restaurants including Deanes at Queens, Villa Italia, A Peculiar Tea and Orto Pizza.
The property comprises a red brick mid terrace commercial property with accommodation arranged over four floors and car parking to the rear, located on an attractive tree-lined street. The ground floor is currently let as a hair salon, while the upper floors contain a number of offices which are all privately let. Internally the property is fitted out to a good standard, benefitting from carpeted floors, plastered and painted walls and fluorescent lighting.
While the property is currently arranged as a retail unit on the ground floor and offices on the upper floors, it will also be sold with the benefit of Full Planning Permission for conversion to 3 apartments (2no. 1 beds and 1no. 2 bed) under planning reference LA04/2023/4423/F.
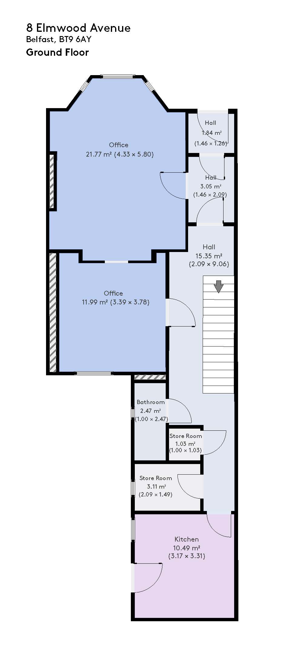
Hall 3.35m (11') x 1.46m (4'9)
.
Hall 9.06m (29'9) x 2.09m (6'10)
.
Office 8A 5.8m (19'0) x 4.33m (14'2)
.
Office 8A 3.78m (12'5) x 3.39m (11'1)
.
Kitchen 3.31m (10'10) x 3.17m (10'5)
.
Bathroom 2.47m (8'1) x 1m (3'3)
.
Store room 1.03m (3'5) x 1m (3'3)
.
Store room 1.49m (4'11) x 2.09m (6'10)
.
Office 8B 5.65m (18'6) x 3.17m (10'5)
.
Office 8C 3.76m (12'4) x 3.72m (12'2)
.
Office 8D 4.33m (14'2) x 5.98m (19'7)
.
Stairs and Landing 5.83m (19'2) x 2.1m (6'11)
.
Bathroom 1.57m (5'2) x .99m (3'3)
.
Office 8E 5.54m (18'2) x 3.29m (10'10)
.
Office 8F 3.75m (12'4) x 3.7m (12'2)
.
Office 8G 4.31m (14'2) x 6.02m (19'9)
.
Stairs and Landing 7.15m (23'5) x 2.12m (6'11)
.
Bathroom 2.25m (7'5) x .99m (3'3)
.
Office 8H 2.23m (7'4) x 4.68m (15'4)
.
Office 8H 1.59m (5'3) x 3.4m (11'2)
.
Stairs and Landing 3.82m (12'6) x 2.12m (6'11)
.
Closet 2.23m (7'4) x .85m (2'9)
.

Important Information

  • This is a Leasehold property.

Property Ref: 2988

Share:

Similar Properties

24 North Circular Road, BT15

4 Bedroom Detached House | £399,950

Discover your dream home within this beautiful period four-bedroom detached red-brick property that is perfectly situate...

230 Antrim Road, BT15

9 Bedroom Block of Apartments | £370,000

Property People are delighted to present this exceptional investment opportunity located at 230 Antrim Road, a well-main...

39 Finaghy Road South, BT10

3 Bedroom Detached House | £360,000

Beautifully Presented 3-Bedroom Detached House in a Highly Desirable Location with Driveway, Garage/Home Office, and Exc...

Site 62-86 Duncairn Gardens, BY15

House | Offers Over £595,000

Exciting residential development opportunity on a spacious 0.25-acre site! This prime location already has planning perm...

Property People (Belfast)

Belfast, Antrim, BT15 2GY

028 9074 7300

How much is your home worth?

Use our short form to request a valuation of your property.

Request a Valuation

Mortgage Calculator

Amount Borrowed: £
Total Amount Repayable: £
Total Monthly Payment: £
©2026 The Guild of Property Professionals. All rights reserved. Terms and Conditions | Privacy Policy | Cookie Policy | Complaints Policy | Members Login
The Guild of Property Professionals Trading Address: 121 Park Lane, London W1K 7AG. GPEA Limited. Registered in England & Wales.  Company No: 02819824.  Registered Office Address: 2 St. Stephen's Court, St. Stephen's Road, Bournemouth, Dorset, England, BH2 6LA.  VAT Registration No: 576 8795 61
Book a Property Valuation Update Cookies Preferences