Crow Trees Barn, Mewith, Bentham

Guide Price
£745,000

4 Bedroom Barn Conversion for sale in Bentham Lancaster

2 4 2
  • Detached barn conversion
  • Freehold
  • Council tax band F
  • Forest of Bowland with views of Yorkshire 3 Peaks
  • 4 double bedrooms
  • Open plan kitchen diner
  • 3 reception rooms
  • Carport & Parking for 4 - 5 cars
  • B4RN full fibre broadband connection
  • Immaculate gardens

Crow Trees Barn is a charming detached barn conversion located on the edge of the Forest of Bowland, just 3 miles from Bentham.

It offers spacious living accommodation including a kitchen diner, sitting room with a multi-fuel stove, second reception room, office, and four double bedrooms (one with an en-suite shower room), alongside a family bathroom.

Outside, the property features parking for 4-5 cars, a carport, and storage room, with low-maintenance front gardens and a tiered rear garden boasting patio areas and lush lawns. With its blend of charm and modern comforts, Crow Trees Barn provides comfortable living amidst the natural beauty of the Forest of Bowland.

Crow Trees Barn - Located on the edge of the Forest of Bowland, just 3 miles from Bentham, Crow Trees Barn stands as a charming detached barn conversion, occupying an elevated plot and enjoying stunning vistas. On the ground floor, you'll find a spacious kitchen diner, a welcoming sitting room with a multi-fuel stove, a second reception room, and a practical office space. Upstairs, four double bedrooms await, one with an en-suite shower room, alongside a family bathroom.

Outside, Crow Trees Barn offers parking for 4-5 cars, complete with a convenient carport and storage room. The front garden is low maintenance and features established beds and a charming cobbled yard, while the tiered rear garden boasts inviting patio areas, raised beds, and lush lawns. On clear days, the breathtaking views of the Yorkshire Three Peaks add to the property's allure.

With its blend of charm and modern comforts, Crow Trees Barn offers comfortable living amidst the natural splendour of the Forest of Bowland.

Property Information - Freehold. Council tax band F. Oil fired central heating. Compliant private drainage with easement. Mains water is via Yorkshire Water plus a spring free of charge. Mains electric. B4RN full fibre broadband connection. Access rights for track with shared ad hoc maintenance.

Location - With views in all directions, Crow Trees Barn is situated on the edge of moorland, within the Forest of Bowland Area of Outstanding Natural Beauty. The far reaching views include the famous Yorkshire Dales 3 Peaks of Ingleborough, Whernside and Pen-y-ghent, plus the Lakeland fells and Lune Valley.

The nearby market town of High Bentham provides a good range of shops, pubs and takeaways, along with a primary school, surgery, Post Office and train station on the Leeds/Lancaster line. Other local towns include Kirkby Lonsdale and Settle - both with Booths supermarkets. The A65 provides good connections for Kendal, the M6 and Skipton, and Lancaster can be reached in around 30 minutes by car.

Excellent secondary school options are available at both Settle College and QES, Kirkby Lonsdale.

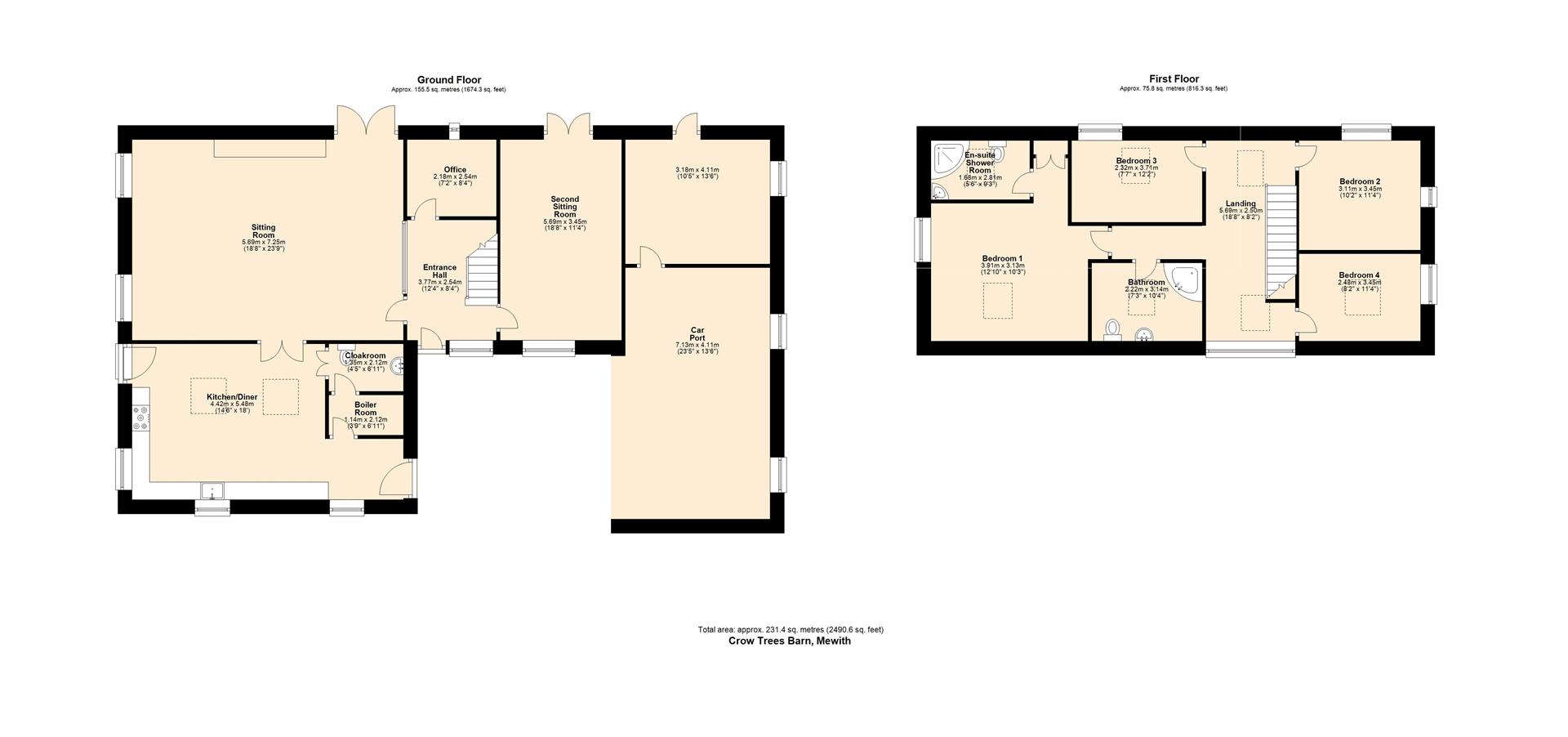
Ground Floor -

Entrance Hall - Neutral coloured carpet with underfloor heating, feature barn window and door to front cobbles, stairs to first floor.

Sitting Room - 7.25 x 5.69 (23'9" x 18'8") - Neutral coloured carpet with underfloor heating, sandstone inglenook feature fireplace with multi fuel stove, exposed beams, cupboard, two timber framed double glazed windows, timber and double glazed patio doors to rear garden.

Kitchen Diner - 5.48 x 4.42 (17'11" x 14'6") - Tiled flooring with under floor heating, range of Oak effect shaker style base and wall units, built integrated fridge and freezer, dish washer, plumbing for washing machine, electric range cooker with electric hob and brushed steel extractor hood, Belfast sink, four double glazed windows, exposed beams and trusses, two velux roof windows, feature pendant lights, storage above cloakroom housing water tanks, timber and double glazed door to side, split stable door to cobbled area at front of property.

Reception Two - 5.69 x 3.45 (18'8" x 11'3") - A versatile room, which could be utilised as a fifth bedroom or playroom. Wood flooring with underfloor heating, double glazed window to front, timber and double glazed patio doors to rear garden.

Office - 2.54 x 2.18 (8'3" x 7'1") - Carpet with underfloor heating, double glazed window to rear.

Cloakroom - 2.12 x 1.35 (6'11" x 4'5") - Tiled floor with underfloor heating, toilet, wash basin, extractor fan, consumer unit.

Boiler Room - 2.12 x 1.14 (6'11" x 3'8") - Tiled floor with underfloor heating, underfloor heating manifold, oil boiler, door to cloakroom.

First Floor -

Landing - Neutral coloured carpet, exposed beams and trusses, radiator, two velux windows, stairs to ground floor

Bedroom One - Neutral coloured carpet, exposed beams and trusses, radiator, timber framed double glazed window to side, velux window, en-suite, fitted storage cupboards.

En-Suite Shower Room - Tiled floor, toilet, wash basin, shower cubicle, heated towel rail, velux window.

Bedroom Two - Neutral coloured carpet, exposed beams and truss, radiator, dual aspect with two double glazed windows to back and side.

Bedroom Three - Neutral coloured carpet, exposed beams and truss, radiator, storage cupboard, timber framed double glazed window to back

Bedroom Four - Neutral coloured carpet, exposed beams and truss, radiator, timber framed double glazed window to side.

Bathroom - Tiled floor, exposed beams and trusses, corner bath with hand shower, toilet, wash basin, two heated towel rails, velux window.

Front - Gravel drive with cobbled parking area, established bed, entrance to kitchen via split stable door, large feature barn window and door with storm porch leading to entrance hall.

Carport - 7.21 x 4.11 (23'7" x 13'5") - Concrete flooring, single glazed windows, cupboard and worktop with single stainless sink, light and power.

Store - 4.12 x 3.18 (13'6" x 10'5") - Concrete floor, single glazed window, door to side, light and power, door to car port.

Rear Garden - Immaculately presented landscaped rear garden featuring tiered beds, steps leading to lawns, split level Indian sandstone patio, dry stone wall and hedge boundaries.

Agent Notes - Fisher Hopper has not tested services, fixtures, fittings, central heating, gas and electrical systems. If in doubt, purchasers should seek professional advice. Items in these photographs may not be included in the sale of the property.

OFFER PROCEDURE

Fisher Hopper, as agents in the sale of the property, are required to formally check the identification of prospective purchasers. In addition, purchasers may be asked to provide information regarding the source of funds as part of our offer handling process.

At the point an offer is accepted, an Onboarding Fee of £25.00 (inc. VAT) will be payable. This fee covers the legally required Anti-Money Laundering (AML) searches and secure digital verification to progress your purchase promptly and safely.

You can pay this fee securely online at:
https://shorturl.at/zAqJj

FINANCIAL ADVICE
Free and no obligation mortgage advice is available on our website. Alternatively, please contact us to arrange a call from our mortgage broker.
Your home is at risk if you do not keep up the repayments on a mortgage or other loan secured on it. Written details available upon request

MARKET APPRAISALS
If you have a property or business which needs a market appraisal or valuation, our local knowledge, experience and coverage will ensure you get the best advice. Our Guild Referral Network of over 800 specially selected offices can provide this no obligation service anywhere in the country. Call or email now to let us get you moving.

INTRODUCERS FEES
Fisher Hopper Ltd receives and introducers fee from Napthens Solicitors of £100.00 + VAT for all successful introductions.

FISHER HOPPER
Fisher Hopper is a trading name for Fisher Hopper Limited, which is registered in England No 08514050. The registered office for the company is: 5 Battalion Court, Colburn Business Park, Catterick Garrison, England, DL9 4QN. Company Director: M. Alexander
The office address for Fisher Hopper is: 43 Main Street, Bentham, Lancaster, North Yorkshire LA2 7HJ.

FLOOR PLANS
Please note, floor plans are not to scale and are for illustration purposes only. Plans are produced using PlanUp.

Property Ref: 780361_34333619

Share:

Similar Properties

East Clint, Cowgill, Dent

4 Bedroom Detached House | Offers in region of £725,000

A rare opportunity to own a historic Grade II listed detached property with planning permission granted for extensions a...

Browns Farm, Cold Cotes

4 Bedroom Detached House | Offers Over £700,000

Browns Farm is a charming double-fronted farmhouse on the southern edge of the Yorkshire Dales, enjoying an elevated pos...

Mount View, Low Bentham

4 Bedroom Detached House | Guide Price £650,000

A stunning new-build 4-bedroom detached home situated in a highly sought-after location. The property boasts an elevated...

Middle Scales, Chapel Le Dale

5 Bedroom Detached House | Offers in region of £900,000

Middle Scales - Yorkshire Dales Gem with Stunning ViewsA rare opportunity to own a characterful longhouse in Chapel le D...

Halsteads Barn, Mewith, Bentham.

5 Bedroom Barn Conversion | Offers in region of £950,000

A rare offering to the market, a substantial well presented extended barn conversion offering flexible accommodation wit...

Fisher Hopper Ltd (Bentham)

43 Main Street, Bentham, North Yorkshire, LA2 7HJ

015242 62044

How much is your home worth?

Use our short form to request a valuation of your property.

Request a Valuation

Mortgage Calculator

Amount Borrowed: £
Total Amount Repayable: £
Total Monthly Payment: £
©2025 The Guild of Property Professionals. All rights reserved. Terms and Conditions | Privacy Policy | Cookie Policy | Complaints Policy | Members Login
The Guild of Property Professionals Trading Address: 121 Park Lane, London W1K 7AG. GPEA Limited. Registered in England & Wales.  Company No: 02819824.  Registered Office Address: 2 St. Stephen's Court, St. Stephen's Road, Bournemouth, Dorset, England, BH2 6LA.  VAT Registration No: 576 8795 61
Book a Property Valuation Update Cookies Preferences