Woolsery, Bideford

£1,250,000

4 Bedroom Detached House for sale in Bideford

6 4 6
  • Four bedroom farmstead with 8.75 acres
  • Two successful holiday lets (2 bedroom and 1 bedroom)
  • 4000 SQFT of outbuildings including barns and stables
  • Natural wildlife lake
  • River and stream borders
  • Stunning rolling countryside close to Woolsery
  • Potential for glamping or campsite conversion
  • Modern extended kitchen/ conservatory
  • Roof terrace

Four bedroom farmstead with 8.75 acres
Two successful holiday lets (2 bedroom and 1 bedroom)
4000 SQFT of outbuildings including barns and stables
Natural wildlife lake
River and stream borders
Stunning rolling countryside close to Woolsery
Potential for glamping or campsite conversion
Modern extended kitchen/ conservatory
Roof terrace

Ford Mill Farm is an enchanting former farm which is now is used as a smallholding with characterful farmhouse, two established holiday lets, multiple barns and stables and over 8 acres of unspoiled Devon countryside.

Tucked away in a truly idyllic setting on the outskirts of the picturesque North Devon village of Woolsery, Ford Mill Farm offers an exceptional opportunity to embrace the rural lifestyle in one of the South West's most scenic and peaceful locations. This captivating farmstead comes complete with approximately 8.75 acres of gardens, paddocks, a spring-fed ornamental lake, smaller pond with 'Monet Bridge', stabling, and two beautifully converted holiday cottages, all nestled within a charming and private valley with stream and river borders.

Lovingly maintained and sensitively modernised, the main farmhouse dates back in parts to the 17th century and exudes timeless character, with exposed beams, natural stonework, traditional fireplaces, and generous room proportions that reflect its long agricultural heritage. In direct contrast the kitchen and interlinking conservatory as well as the first-floor veranda provides a blend between the old and modern contemporary finishes. In addition to the principal residence, the property also includes two holiday lets The Dairy and The Shippon offering scope for continued income generation or multigenerational use.

Step Inside
As you enter the main farmhouse, you're greeted by a welcoming and spacious entrance hall that leads into a series of characterful living spaces with downstairs shower room. The principal sitting room is centred around a large feature fireplace with wood-burning stove, perfect for cosy evenings. Adjacent is a second reception room, which offers flexibility as a formal dining area, snug, or study.

The heart of the home is the expansive contemporary kitchen which forms part of an extension, thoughtfully positioned to take full advantages of the grounds. With an array of fitted units, traditional range cooker, ample workspace including a kitchen island, and a generous dining area, it's an ideal space for family gatherings or entertaining guests. The kitchen also enjoys direct access to the garden via the adjacent boot room, allowing for relaxed indoor-outdoor living during warmer months. The ground floor also enjoys an additional shower room, utility room and pantry off the kitchen.

Upstairs, the main farmhouse offers four bedrooms positioned off a main landing, all with far-reaching views over the surrounding countryside. The principal suite has been fully vaulted and now features exposed wooden beams and an inter linking private en-suite bathroom as well as direct access onto a roof terrace. Further double bedroom at the opposite end as well as two bedrooms are also served by an upstsairs W.C.

Step Outside
The grounds at Ford Mill Farm are nothing short of magical. A sweeping private driveway leads past the agricutural barns and three stables, opening into a large parking area and courtyard. The farmhouse is set in beautifully maintained gardens with sweeping lawns, flower borders, vegetable plots, and sun terraces that take in the idyllic surroundings.

Beyond the formal gardens lie paddocks and prediminantly flat pasture land with lawned pathways, ideal for equestrian or smallholding use. The spring-fed lake, set within its own clearing, attracts a rich variety of wildlife and provides a serene spot for quiet reflection or informal picnics and is believed to hold carp fish. Several outbuildings, including a stable block, offer flexible space for livestock, storage, or further development, subject to the necessary consents. Running at the base of the plot is the River Torridge which at the furtherest corner has a picturesque spot which needs to be appreciated and is perfect for observing local wildlife or a quite reflection area.

Holiday Cottages
A key feature of this unique property is its established holiday accommodation, offering a valuable and proven income stream. Positioned at the rear of the main courtyard sit two charming stone-built holiday cottages, each carefully converted and fully self-contained. These cottages blend rustic charm with modern comfort, and are currently used for holiday letting throughout the year. They enjoy their own outdoor spaces, ensuring guest privacy and a truly relaxing countryside escape.

NB: The internet is on Starlink which is boasting 100mbps on download and upload is approximately 20mbps.

FARM

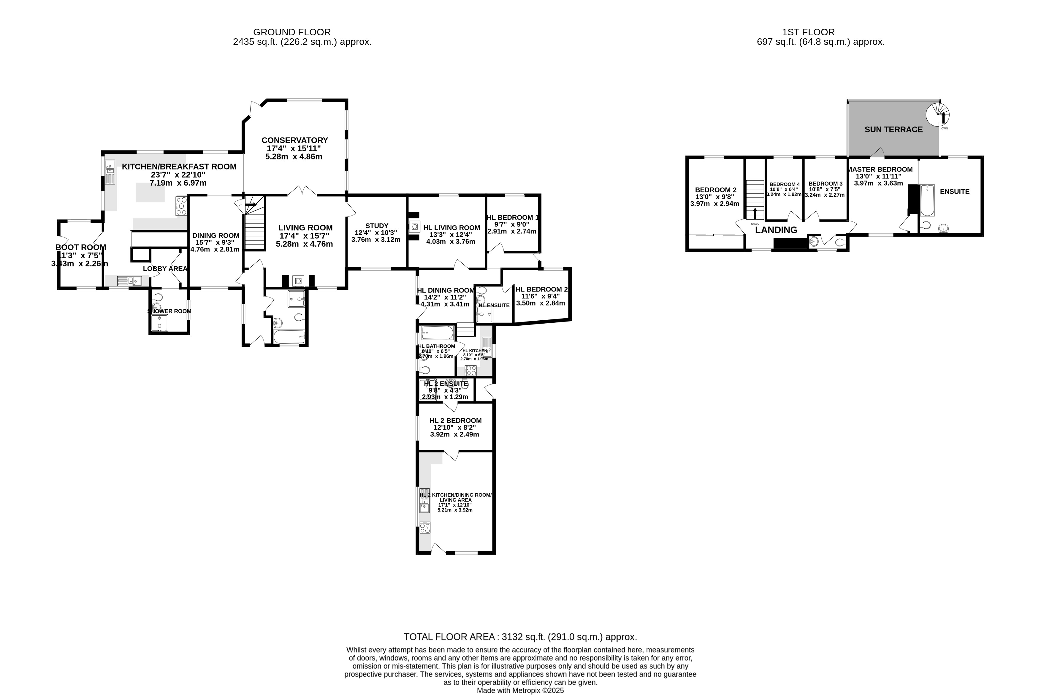
GROUND FLOOR

Entrance Hall

Bathroom

Living Room 17'4" x 15'7" (5.28m x 4.75m).

Dining Room 15'7" x 9'3" (4.75m x 2.82m).

Study 12'4" x 10'3" (3.76m x 3.12m).

Kitchen 23'7" x 22'10" (7.2m x 6.96m).

Conservatory 17'4" x 15'11" (5.28m x 4.85m).

Pantry

Boot Room 11'3" x 7'5" (3.43m x 2.26m).

Utility Area

Lobby

Shower Room

FIRST FLOOR

Landing

Master Bedroom 13' x 11'11" (3.96m x 3.63m).

Ensuite/ Dressing Area 13' x 10'5" (3.96m x 3.18m).

Bedroom Two 13' x 9'8" (3.96m x 2.95m).

Bedroom Three 10'8" x 7'5" (3.25m x 2.26m).

Bedroom Four 10'8" x 6'5" (3.25m x 1.96m).

W.C

DAIRY HOLIDAY LET

Dining Room 14'2" x 11'2" (4.32m x 3.4m).

Living Room 13'3" x 12'4" (4.04m x 3.76m).

Kitchen 9'10" x 6'8" (3m x 2.03m).

Bathroom

Bedroom One 9'7" x 9' (2.92m x 2.74m).

Bedroom Two 11'6" x 9'3" (3.5m x 2.82m).

Ensuite

SHIPON HOLIDAY LET

Open Plan Kitchen/ Living Area 17'10" x 12'10" (5.44m x 3.9m).

Bedroom 12'10" x 8'3" (3.9m x 2.51m).

Ensuite

OUTBUILDINGS

Main Barn 55' x 20' (16.76m x 6.1m).

Stable 1 13'10" x 11'10" (4.22m x 3.6m).

Stable 2/3 Workshop 24'3" x 13'10" (7.4m x 4.22m).

Car Port 20' x 17' (6.1m x 5.18m).

Store 20' x 11'5" (6.1m x 3.48m).

Agricultural Open Barn 45' x 40' (13.72m x 12.2m).

SERVICES    Mains Electric, Mains Water, Air source heat pump with Cottages on LPG

TENURE    Freehold

COUNCIL TAX    D

EPC    D

From Bideford head west on the A39 for approximately 10 miles. At Bucks Cross take the left-hand turn signposted to Woolsery. Follow this road for around 2.5 miles into the village. Upon reaching the centre of Woolsery turn left just before the primary school. Continue along this lane for approximately 1 mile and then turn right towards Ashmansworthy. Ford Mill Farm will be found set back from the lane on your left-hand side.

Property Ref: 55651_BID200354

Share:

Similar Properties

Tadworthy Road, Northam, Bideford

5 Bedroom Detached House | Guide Price £1,150,000

An exciting opportunity to acquire a substantial four / five bedroom detached residence in the sought-after coastal loca...

Sessacott, Putford, Holsworthy

5 Bedroom Detached House | £965,000

East Sessacott Farm is an incredible rural lifestyle opportunity offering in excess of 4 acres of land with a completely...

Woodtown, Alverdiscott Road, Bideford

22 Bedroom Detached House | Guide Price £900,000

DON'T MISS THIS EXCEPTIONAL PROPERTY OPPORTUNITY!Large detached residence steeped in history.

Tadworthy Road, Northam, Bideford

5 Bedroom Detached House | Guide Price £1,300,000

An exciting opportunity to acquire a substantial four / five bedroom detached residence in the sought-after coastal loca...

Webbers Bideford (Bideford)

Bideford, Devon, EX39 2JW

01237 472344

How much is your home worth?

Use our short form to request a valuation of your property.

Request a Valuation

Mortgage Calculator

Amount Borrowed: £
Total Amount Repayable: £
Total Monthly Payment: £
©2025 The Guild of Property Professionals. All rights reserved. Terms and Conditions | Privacy Policy | Cookie Policy | Complaints Policy | Members Login
The Guild of Property Professionals Trading Address: 121 Park Lane, London W1K 7AG. GPEA Limited. Registered in England & Wales.  Company No: 02819824.  Registered Office Address: 2 St. Stephen's Court, St. Stephen's Road, Bournemouth, Dorset, England, BH2 6LA.  VAT Registration No: 576 8795 61
Book a Property Valuation Update Cookies Preferences