Mount Pleasant, Bradford On Avon

£775,000

4 Bedroom Semi-Detached House for sale in Bradford On Avon

3 4 2
  • STUNNING FOUR BEDROOM, SEMI-DETACHED PERIOD HOME WONDERFULLY MAINTAINED WITH CHARACTER FEATURES THROUGHOUT STUNNING VIEWS ACROSS BRADFORD ON AVON FOUR DOUBLE BEDROOMS LARGE GARDEN WITH NUMEROUS SE...

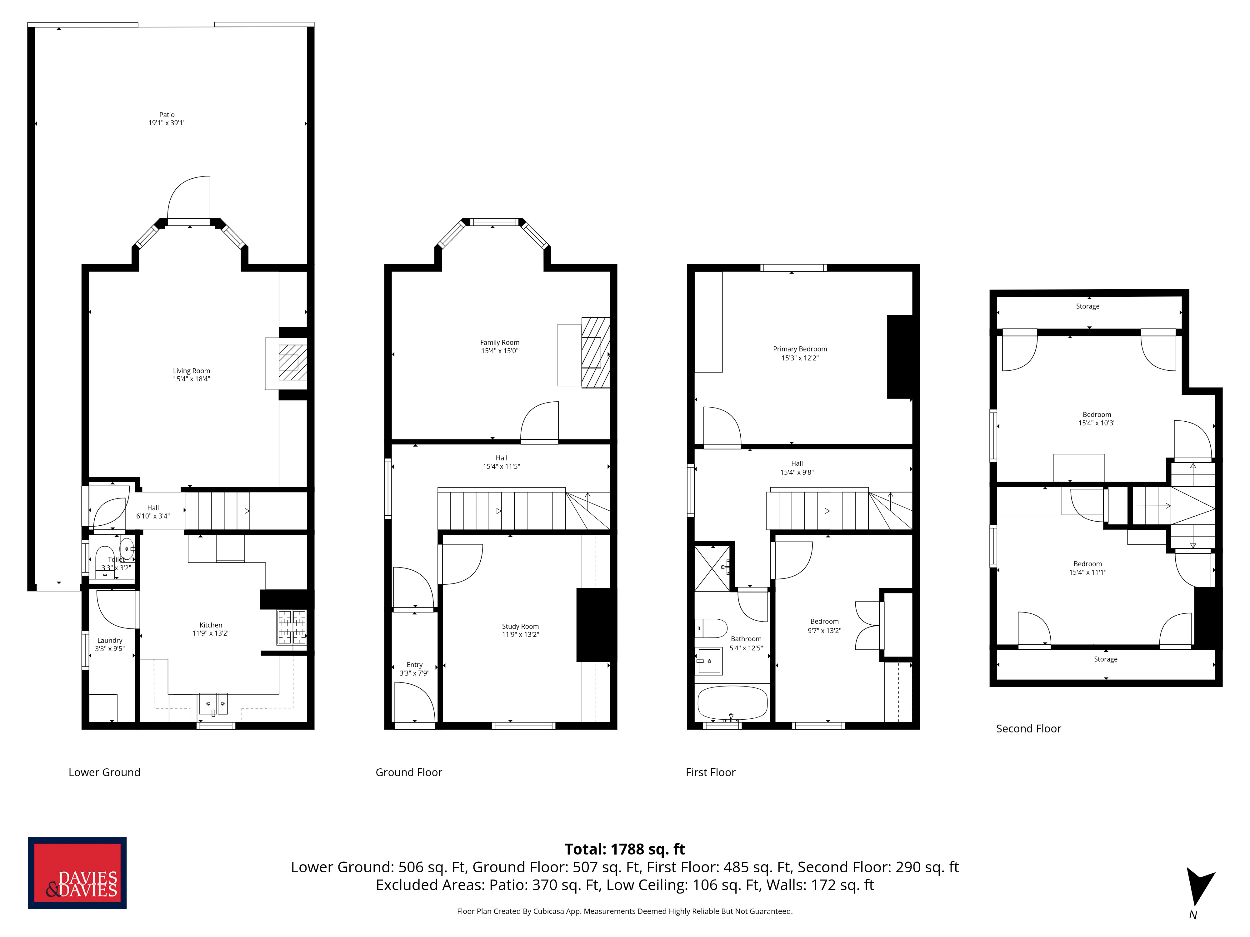
Situated in a highly sought-after central location on the Bath side of Bradford-on-Avon, this impressive four-bedroom period semi-detached home offers generous accommodation arranged over four floors, combining character features with flexible family living.

The ground floor comprises a spacious study, ideal for home working, alongside a welcoming living room/snug with an open fire and stunning views. The heart of the home lies on the lower ground floor: a well-appointed bespoke kitchen by Guild Anderson, a separate utility room, and a WC. This is complemented by a large family room featuring a log burner and direct access to the garden, creating a wonderful space for entertaining.

The south-facing garden has been landscaped to create multiple seating areas, filled with mature plants, shrubs, and a pond. The property benefits from both rear and side access, and three new timber exterior doors have recently been installed.

The first floor hosts two generous double bedrooms, including the primary bedroom which enjoys stunning elevated views across the town. This floor is served by a substantial four-piece family bathroom. The second floor provides a further two double bedrooms; both benefit from built-in storage, making them ideal for family, guests, or workspace. Notably, the first and second floors feature new double-glazed timber frame windows.

With its period charm, flexible layout, and enviable central location, this exceptional home is ideally suited to buyers seeking space and convenience within one of the area’s most desirable settings.

Location

Bradford-on-Avon is a picturesque Wiltshire town known for its charming medieval architecture, historic buildings, and scenic surroundings nestled along the River Avon. It offers a plentiful choice of artisanal coffee shops, independently owned boutiques, and restaurants, as well as a local market on Bridge Street every Thursday. The property offers easy access to the railway station and fantastic local schools.

Agents Note:

A parking permit is available for a yearly fee of £300 to secure one unallocated parking space in the community centre car park across the road. While a space is usually available, availability can vary during events. Alternatively, there is easy on-street parking nearby.

Important Information

  • This is a Freehold property.
  • This Council Tax band for this property is: E
  • EPC Rating is D

Property Ref: DDB220362

Share:

Similar Properties

The Laurels, Lower Westwood

4 Bedroom Detached House | Offers Over £750,000

A well appointed family home occupying a generous plot in a sought after village location, benefitting from convenient a...

Late Broads, Winsley

4 Bedroom Detached House | Asking Price £750,000

Situated in this exclusive cul de sac in the heart of the fine Wiltshire village of Winsley, a spacious detached family...

St. Barbaras Road, Corsham

3 Bedroom Detached House | Guide Price £700,000

A handsome detached period home situated in this idylic semi rural position, a beautiful and peaceful setting that offer...

Kingsfield Leaze, Bradford On Avon

4 Bedroom Detached House | Guide Price £800,000

A large detached family home situated in this coveted development located on the Bath side of Bradford on Avon, close to...

The Laurels, Midford

4 Bedroom Semi-Detached House | Guide Price £800,000

An elegant semi detached period home which occupies a stunning large mature plot, enjoying beautiful panoramic views, si...

Middle Stoke, Limpley Stoke

4 Bedroom Detached House | £850,000

Nestled into the hillside of this prime location on the outskirts of Bath and Bradford on Avon, Well House is an individ...

Davies & Davies (Bradford on Avon)

Bradford on Avon, Wiltshire, BA15 1JY

01225 867 555

How much is your home worth?

Use our short form to request a valuation of your property.

Request a Valuation

Mortgage Calculator

Amount Borrowed: £
Total Amount Repayable: £
Total Monthly Payment: £
©2026 The Guild of Property Professionals. All rights reserved. Terms and Conditions | Privacy Policy | Cookie Policy | Complaints Policy | Members Login
The Guild of Property Professionals Trading Address: 121 Park Lane, London W1K 7AG. GPEA Limited. Registered in England & Wales.  Company No: 02819824.  Registered Office Address: 2 St. Stephen's Court, St. Stephen's Road, Bournemouth, Dorset, England, BH2 6LA.  VAT Registration No: 576 8795 61
Book a Property Valuation Update Cookies Preferences