Beautifully presented character cottage, Breage

£525,000

3 Bedroom Cottage for sale in Breage

1 3 2
  • CHARMING DETACHED FAMILY HOME
  • SOLD WITH NO ONWARD CHAIN
  • EXTREMELY SOUGHT AFTER VILLAGE POSITION
  • BEAUTIFULLY PRESENTED THROUGHOUT
  • MODERN CONTEMPORARY KITCHEN
  • GOOD SIZE GARDEN
  • GARAGE AND OFF ROAD PARKING
  • FULL OF CHARACTER
  • COUNCIL TAX - PREVIOUSLY A BAND D, HOWEVER IS CURRENTLY ON BUSINESS RATES
  • EPC - E44 FREEHOLD TENURE

Nestled in the charming village of Breage, this beautifully presented detached character cottage offers a delightful blend of traditional charm and modern convenience. With three well-proportioned bedrooms and two bathrooms, this property is perfect for families or those seeking a peaceful retreat. Upon entering, you are greeted by a warm and inviting reception room that exudes character, making it an ideal space for relaxation or entertaining guests. The modern contemporary kitchen is a standout feature, providing a stylish and functional area for culinary enthusiasts. The cottage is set within good-sized gardens, offering ample outdoor space for gardening, play, or simply enjoying the fresh air. With off-road parking available for up to five vehicles, convenience is assured. Additionally, the property boasts a garage and a very useful storage room, catering to all your storage needs. One of the key advantages of this property is that it is sold with no onward chain, allowing for a smooth and straightforward purchase process. This charming cottage in Breage is not just a home; it is a lifestyle choice, offering a serene environment while being close to local amenities. Do not miss the opportunity to make this delightful property your own.

Price - £525,000 -

Location - The village of Breage offers a real feeling of community having a great range of facilities and amenities. There is a Public House, Social Club, Church, Village Hall, Post Office with a shop, Play Park, as well as a Primary School. Breage is nestled within the heart of the beautiful Cornish countryside and surrounded by farmland, woods and nearby National Trust Estate home to Godolphin House, with many countryside walks including Godolphin Hill and Tregonning Hill both having stunning panoramic views over South West Cornwall. Conveniently situated for the towns of Helston and Penzance as well as the popular fishing village of Porthleven with its fantastic array of restaurants. There is good access to the nearby beaches on both the North and South Coast and South West Coast Path.

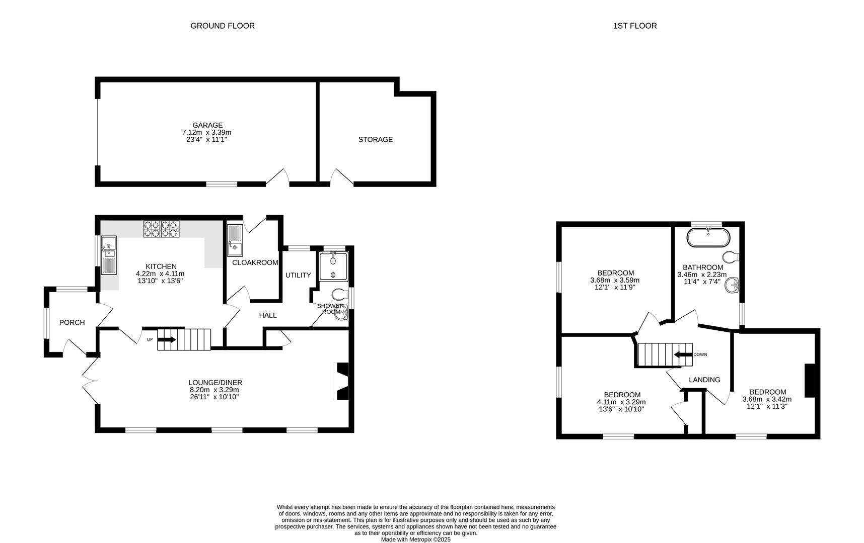
Accommodation - Entrance hall
Kitchen
Lounge dining room
Boot room
Utility room
Shower room
Bedroom
Bedroom
Bedroom
Bathroom

Outside - The property affords wonderfully presented gardens with a good size lawn area to the front elevation, complimented with stone walling, established hedging and a range of flowers & plants. Good size driveway laid to stone chippings, with parking for several vehicles. The rear garden is low maintenance with access leading round the rear and side of the property for maintenance.

Garage - Good size garage equipped with power and light. Adjoining the garage is an incredibly useful storage room.

Services - Mains water and electricity. Private drainage. Oil fired central heating.
Freehold tenure.

Rights Of Way - Our clients have informed us that they own the driveway from the road to their property, and the neighbouring property has a right of access over the start of it.

Council Tax Band - Our client has informed us that the property was previously rated at Band D - However it is currently exempt as it's on business rates.

Anti Money Laundering Regulations - Purchasers - It is a legal requirement that we receive verified ID from all buyers before a sale can be instructed. We will inform you of the process once your offer has been accepted.

Proof Of Finances - Before agreeing a sale, we will require proof of your financial ability to purchase. We will inform you of what we require prior to agreeing a sale.

Broadband & Mobile Phone Coverage - To check the broadband coverage for this property please visit https://www.openreach.com/fibre-broadband. To check mobile phone coverage please visit https://checker.ofcom.org.uk/

What3words - ///pacemaker.dare.payout

Property Ref: 33760726

Share:

Similar Properties

Mullion, Immaculate bungalow

3 Bedroom Bungalow | Guide Price £525,000

Occupying an exceptional coastal setting, Marconi's Reach enjoys sweeping panoramic views across open countryside toward...

Beautiful family cottage, Constantine

3 Bedroom Cottage | Guide Price £510,000

Positioned on the outskirts of the charming village of Constantine, this immaculately presented detached cottage offers...

Detached home with incredible sea views, Perranuthnoe

3 Bedroom Detached House | Guide Price £500,000

Situated in the charming village of Perranuthnoe, this is a rare opportunity to acquire a delightful detached house with...

Crowan, Barn Conversion set within approx 4 acres

2 Bedroom Barn Conversion | Guide Price £535,000

Converted in 2004 by the current owner, this charming barn conversion offers a unique blend of character and comfortable...

Modern Home Near Village Centre, Porthleven

4 Bedroom Detached House | Guide Price £535,000

This modern four bedroom reversed level house has been cleverly designed to maximise space and views. Situated within a...

Light and spacious bungalow, Connor Downs

4 Bedroom Detached Bungalow | Guide Price £555,000

Located in the area of Greenbank, Connor Downs, this delightful four bedroom detached bungalow offers a perfect blend of...

The Mather Partnership (Helston)

Helston, Cornwall, TR13 8AA

01326 565016

How much is your home worth?

Use our short form to request a valuation of your property.

Request a Valuation

Mortgage Calculator

Amount Borrowed: £
Total Amount Repayable: £
Total Monthly Payment: £
©2026 The Guild of Property Professionals. All rights reserved. Terms and Conditions | Privacy Policy | Cookie Policy | Complaints Policy | Members Login
The Guild of Property Professionals Trading Address: 121 Park Lane, London W1K 7AG. GPEA Limited. Registered in England & Wales.  Company No: 02819824.  Registered Office Address: 2 St. Stephen's Court, St. Stephen's Road, Bournemouth, Dorset, England, BH2 6LA.  VAT Registration No: 576 8795 61
Book a Property Valuation Update Cookies Preferences