Horseman Side, Brentwood

£2,000,000

4 Bedroom Detached House for sale in Brentwood

3 4 2

Guide Price £2,000,000 to £2,250,000 to include consented barn for conversion.

This distinguished Grade II Listed home is set within a stunning plot of approximately 4.5 acres, complete with formal gardens, a picturesque lake, and two substantial barns, one of which benefits from planning permission to convert to a three bedroom dwelling of 1,580 sq ft with separate vehicular access (Brentwood Council Ref: 25/00715/FUL). Just four miles from Brentwood High Street and the M25 (J28), it provides countryside living with exceptional convenience.

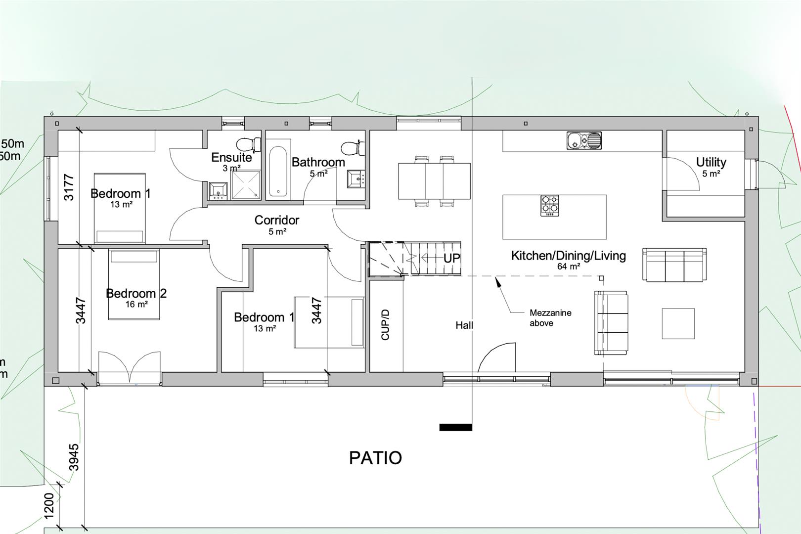
The interiors combine historic character with contemporary elegance. The reception spaces are generous and versatile, with exposed timbers and fine joinery retained throughout. A welcoming hallway/sitting room features one of the home's two magnificent Inglenook fireplaces, while the second forms a striking focal point in the beautifully proportioned living room, complete with wood-burner. Beyond, there are four further reception areas including a formal dining room and a study. At the heart of the home, the kitchen has been designed with a stylish shaker finish and central island, complemented by integrated appliances and direct views over the gardens. The adjoining breakfast area opens seamlessly to the terrace, while a utility and cloakroom complete the ground floor.

Upstairs, the broad landing leads to four double bedrooms. The principal suite is particularly impressive, featuring a dressing area, exposed beams, and a red-brick fireplace. A recently fitted bathroom with freestanding tub and walk-in shower, together with a separate vaulted shower room, serve the remaining bedrooms.

Property Ref: 588921_34187103

Share:

Similar Properties

Ongar Road, Kelvedon Hatch, Brentwood

4 Bedroom Detached House | Guide Price £2,000,000

Set within 1.5 acres of beautifully landscaped grounds, this exceptional Grade II listed farmhouse dates back to the 16t...

Ongar Road, Kelvedon Hatch, CM15

4 Bedroom House | Guide Price £2,000,000

Set within 1.5 acres of beautifully landscaped grounds, this exceptional Grade II listed farmhouse dates back to the 16t...

Church Street, Burstead Grange Church Street, CM11

4 Bedroom House | Guide Price £2,000,000

GUIDE PRICE £2,000,000 - £2,200,000 An outstanding example of a fine Essex Barn, with accommodation in excess of 4,500 s...

Fyfield Road, Willingale, CM5

5 Bedroom Not Specified | Guide Price £2,250,000

Introducing Salters Barn | 4,785 sq ft | 3 acres | Guide Price £2,750,000 - £3,000,000 This stunning triple height Napol...

Avenue Road, Ingatestone

5 Bedroom Detached House | £2,450,000

Built in 1906 with later additions, 'Littlecote' is a fine Edwardian home, extending to approximately 4,000 sq ft of imm...

Avenue Road, Ingatestone, CM4

5 Bedroom House | £2,450,000

Built in 1906 with later additions, 'Littlecote' is a fine Edwardian home, extending to approximately 4,000 sq ft of imm...

Period Homes (Ingatestone)

High Street, Ingatestone, Essex, CM4 9DW

01277 288000

How much is your home worth?

Use our short form to request a valuation of your property.

Request a Valuation

Mortgage Calculator

Amount Borrowed: £
Total Amount Repayable: £
Total Monthly Payment: £
©2025 The Guild of Property Professionals. All rights reserved. Terms and Conditions | Privacy Policy | Cookie Policy | Complaints Policy | Members Login
The Guild of Property Professionals Trading Address: 121 Park Lane, London W1K 7AG. GPEA Limited. Registered in England & Wales.  Company No: 02819824.  Registered Office Address: 2 St. Stephen's Court, St. Stephen's Road, Bournemouth, Dorset, England, BH2 6LA.  VAT Registration No: 576 8795 61
Book a Property Valuation Update Cookies Preferences