Richmond Park Road, Clifton, Bristol, BS8

Offers in excess of
£2,000,000
SSTC
This property listing is now SSTC

6 Bedroom Semi-Detached House for sale in Bristol

3 6 3
  • Stunning Family Home
  • Great Clifton Location
  • Generous Accommodation Throughout
  • 6 Double Bedrooms, 3 Bathrooms
  • Lovely Kitchen/Dining/Orangery
  • Two Further Reception Rooms
  • Large Clifton Garden
  • Off Street Parking

A stunning 6 bedroom semi-detached grade II listed family home, set in a quiet and convenient central Clifton location, offering beautifully proportioned accommodation. Other benefits include a wealth of original features, off street parking, a lovely secluded, sizeable private family garden. Currently configured with a self-contained one bedroom flat.

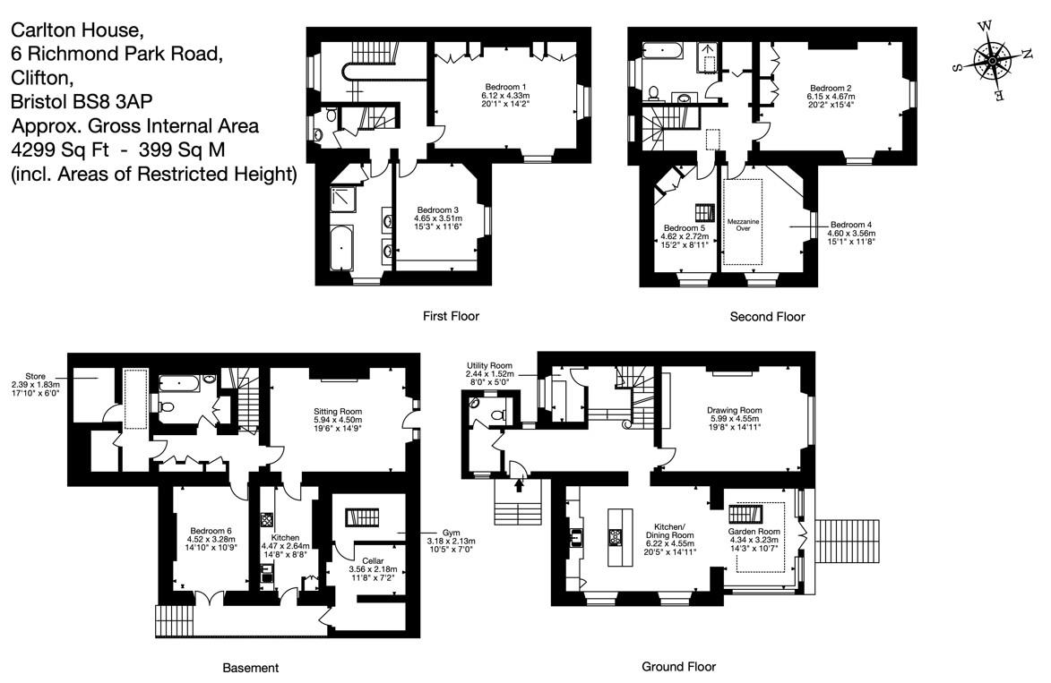
Summary Of Accommodation - Built circa 1841 with an elegant Bath stone facade occupying a corner position within a desirable, backwater close to Clifton Village, this handsome residence offers character filled accommodation arranged over four floors. Some stunning original features are on offer including intricate ceiling mouldings, beautiful fireplaces, lovely original tessellated tiling to the elegant entrance hallway, working shutters to large sash windows and a wonderful, particularly light stone cantilevered staircase. The configuration and separate external entrances offer an incoming purchaser true flexibility with the option of self-containment to the lower ground floor, which is currently arranged as a spacious one bedroom apartment, to provide a rental income or to house a nanny or dependent relative. Alternatively the lower ground floor could easily be 'taken back' into the house (subject to the necessary consents) to provide further family accommodation. Other predominant attributes include five well proportioned bedrooms served by a bathroom and a shower room to the first and second floor, and a beautifully proportioned and light kitchen and an elegant living room to the hall floor. Further to this the kitchen opens on to a stunning (recently added) Orangery, offering a light and spacious further reception area. Beneath this there is a cleverly arranged wine cellar accessed via an electrical hatch door in the floor of the orangery. Double doors from this room allow access to the stunning garden via some elegant stone steps.

In summary, this house represents a truly rare opportunity for those that require a stunning Clifton town residence, in superb condition, adorned with such carefully retained features from this much celebrated period of early Victorian architecture.

Location - Carlton House is located a short walk from the vibrant Clifton Village, with its wide range of boutiques, cafés, bars, and restaurants, it is also ideally located for the easy access to the University and the fashionable Queen's Road. The property is particularly well served by both state and private schooling; Christchurch Primary School is within a few minutes' walk, and Clifton College, Bristol Grammar School and Clifton High School are also only a short walk from the property.

Bristol has a popular cultural and music scene, catering for all tastes and genres and is famed for its green, open spaces such as the 400 Acre Durdham Downs and The Ashton Court Estate, across the famous Suspension Bridge which includes mountain bike trails and bridle paths. For those seeking more energetic pastimes, there are golf courses close by and sailing and windsurfing at Baltic Wharf, and even surfing at "The Wave."

For the commuter, the A4 has a direct link to the commercial centre, and indeed the motorway networks M5 and M4. Bristol Temple Meads train station provides an extensive service to many cities nationwide, and the city's international airport flies connects to many European Cities.

Useful Information - Tenure - Freehold and free
Services - All mains services
Local authority - Bristol City Council
Council tax band - Main house - G. Basement flat - C
Listing - Grade II listed
Viewings - Strictly by prior arrangement with sole agents Hydes of Bristol - 0117973 1516

Important Note - Hydes of Bristol and any joint agents give notice that (i) they have no authority to make or give representations or warranties in relation to the property. These particulars do not form part of any offer or contract and must not be relied upon as statements or representations of fact. (ii) Any areas, distances or measurements are approximate. The text, photographs and plans are for guidance only and are not necessarily comprehensive. It should not be assumed that the property has all the necessary planning, building regulations or other consents and Hydes of Bristol have not tested any services, equipment or facilities. Purchasers must satisfy themselves by inspection or otherwise. (iii) In accordance with the consumer protection from unfair trading regulations, please note that the working condition of these services, or kitchen appliances has not been checked by the Agents but at the time of taking particulars we were informed that all were in working order. Please also note that current government legislation demands that as selling agents for this property, Hydes of Bristol require written evidence of the origin/source of finance for funding for any prospective purchaser wishing to purchase this property. This confirmation shall be required prior to the vendor entering into any contract of sale and our instructions from the vendor are to this effect.

Property Ref: 14213_31783966

Share:

Similar Properties

Percival Road, Clifton, Bristol, BS8

7 Bedroom House | Guide Price £1,950,000

A rare oppurtunity to purchase a substantial (4,136 sq ft) semi-detached Edwardian family home, with a particulalry larg...

Norland Road, Clifton, Bristol, BS8

5 Bedroom House | Guide Price £1,925,000

BUYER INTRODUCED BY HYDES OF BRISTOL - A generous, beautiful, and elegant Edwardian family home with versatile accommoda...

Eastfield, Westbury-on-Trym, Bristol, BS9

5 Bedroom Detached House | Guide Price £1,900,000

An impressive four bedroom detached Georgian town home tucked away, enjoying a private and secluded setting within exten...

Stoke Bishop, Bristol, BS9

House | Guide Price £2,100,000

SOLD OFF MARKET BY HYDES OF BRISTOL - A rare opportunity to purchase a stunning detached home which has been sympathetic...

West Mall, Clifton, Bristol, BS8

7 Bedroom House | Offers in excess of £2,350,000

OFFERS ARE INVITED BETWEEN £2,350,000 & £2,800,000. A fine Grade II* listed Georgian town house (c.1843) forming part of...

The Paragon, Clifton, Bristol, BS8

6 Bedroom House | Guide Price £2,500,000

A fine Grade II* listed Georgian town house (c.1809-1814) forming part of this iconic, Bath stone Clifton terrace with t...

Hydes (Clifton)

28 Princess Victoria Street, Clifton, Bristol, BS8 4BU

0117 9731516

How much is your home worth?

Use our short form to request a valuation of your property.

Request a Valuation

Mortgage Calculator

Amount Borrowed: £
Total Amount Repayable: £
Total Monthly Payment: £
©2025 The Guild of Property Professionals. All rights reserved. Terms and Conditions | Privacy Policy | Cookie Policy | Complaints Policy | Members Login
The Guild of Property Professionals Trading Address: 121 Park Lane, London W1K 7AG. GPEA Limited. Registered in England & Wales.  Company No: 02819824.  Registered Office Address: 2 St. Stephen's Court, St. Stephen's Road, Bournemouth, Dorset, England, BH2 6LA.  VAT Registration No: 576 8795 61
Book a Property Valuation Update Cookies Preferences