Sneyd Park, Bristol

Guide Price
£1,850,000
SSTC
This property listing is now SSTC

6 Bedroom House for sale in Bristol

3 6 3
  • Spectacular six bedroom house
  • Prized location next to The Downs
  • Manicured, landscaped gardens
  • Luxurious specification
  • No onward chain

A highly desirable six bedroom Victorian residence enviably located on the very edge of Bristol's Downs and The Avon Gorge within the much sought after Sneyd Park. Springfort House was originally constructed for the wealthy "Lycett" family in 1870 who were the eminent steel builders in Bristol.

Today the house is a stunning family home that has been much loved and improved by the current owner over the last twenty years and underwent a "no expense spared", comprehensive refurbishment only ten years ago. An enormous amount of time and attention to detail has been invested over time resulting in a truly unique, handsome family home.

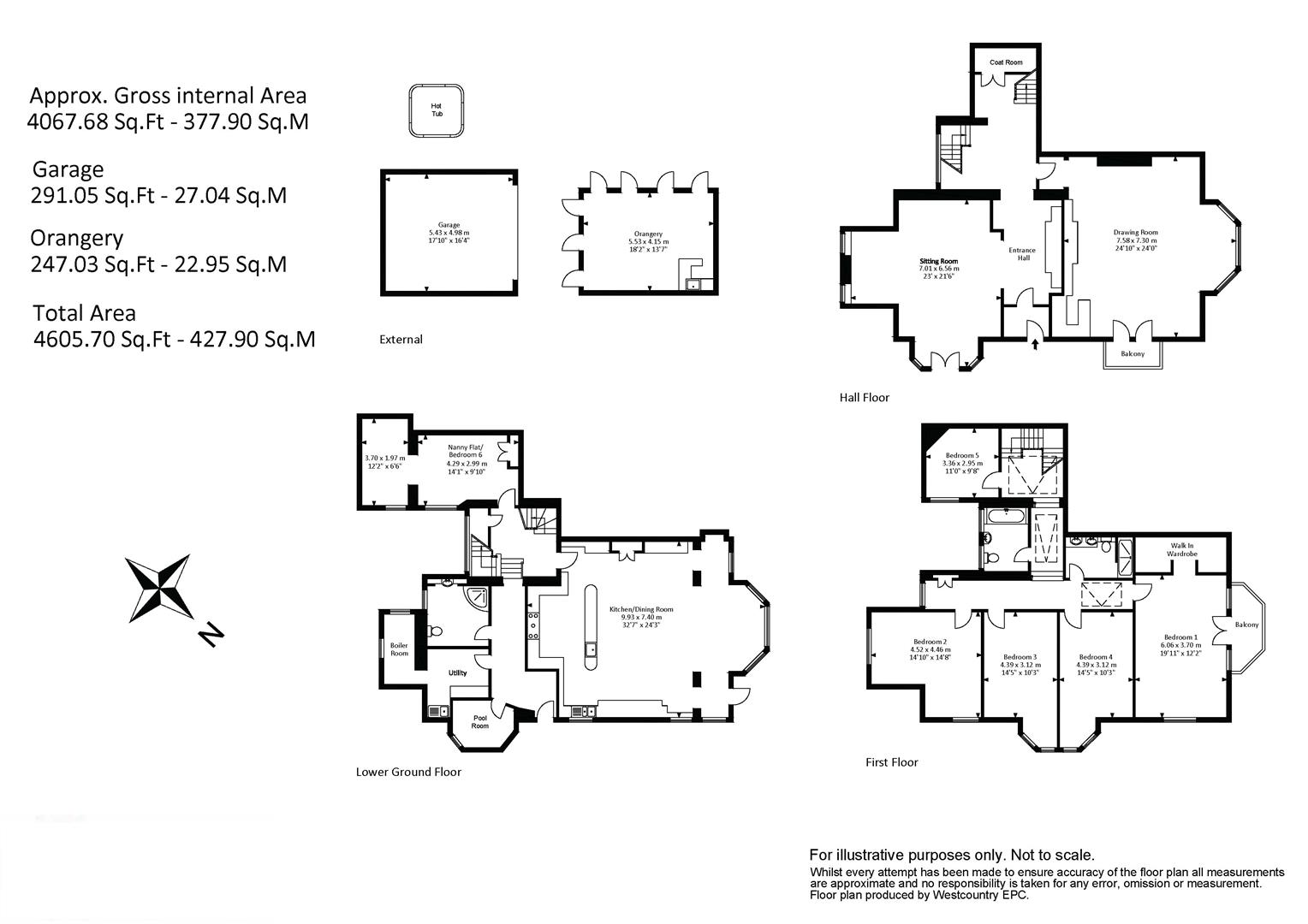
Summary Of Accommodation - Pockets of beauty are evident at every corner, with beautiful murals and hand printed marble effect woodwork, block painted wall paper and bespoke carpentry and cabinet work in almost every room. From the gated gravel drive accessed from a private road, the house is set back with a high degree of privacy. Stone steps lead up to the front door, and the hall floor welcomes you with two stunning reception rooms and a magnificent entrance hall, complete with a marble floor and rich period features prevalent throughout so much of the house.

The drawing room is exquisite; dual aspect with a private balcony overlooking the garden it has a fabulous built-in full width wall cabinet and bar area, with underfloor heating as well as stunning period features, high ceilings and a retained fully working fire place with a marble surround.

The sitting room is an elegant space to welcome guests, with twin windows enjoying views up to The Downs, and a pair of French doors with steps leading down to the driveway and garden terraces - perfect for summer drinks parties.

The lower ground floor provides the impressive kitchen and dining room with high ceilings that present a dramatic effect, enhanced hand block-painted wall paper and a stone tiled floor. This is a wonderful entertaining space and a "cook's kitchen" has a wealth of granite work surfaces and a state-of-the-art Falcon range cooker. There is also a custom built granite dining table and to the rear of the kitchen, an informal seating area that has been crafted to fit into the triple sash bay window and direct access to a sunken dining terrace.

Over the first floor are four generous double bedrooms and two family bathrooms. The master bedroom is a wonderfully private space at the end of the landing with a delightful dual aspect, and a decked balcony affording views over the tree canopy of the University's Botanical Gardens. A dual use walk in wardrobe provides plenty of space for storage.

Bedroom two has wonderful views south across The Downs, with bedrooms three and four providing excellent family space. These all share two beautifully finished family bath / shower rooms - the shower room boasting a walk-in shower finished in tumbled marble, and the
bathroom providing a relaxing space to unwind at the end of the day.

Over the half-landing lies a fifth bedroom, currently used as a study, and along the lower ground floor lies a sixth bedroom or nanny flat, complete with its own snug forming an ideal teenagers' den or room for an au-pair. This bedroom has access to a superb shower room complete with an oversize shower.

Orangery - A fabulous orangery has been built to overlook the gardens, with seven doors opening out on to the paved terrace. This is a superb ancillary space to relax in/work in or entertain in throughout the year. In the summer, throw all the doors open and turn on the air-con - whilst in the winter hunker down with the heater (the air-conditioning has a reversible heat pump) on and watch the birds feed outside. A built-in bar provides a welcome break complete with power for a fridge and fully drained sink unit with running water.

Outside - The garden has been thoughtfully landscaped and presents several paved dining terraces with one dining terrace alongside the level synthetic lawn, setting the scene for weekend parties and barbecues, and a lower terrace coming off the kitchen, perfect for al-fresco summer dinner parties adorned with a beautiful mural of the Tuscan countryside. In addition, a bespoke, eight person Jacuzzi adjoins the house for all the family to relax and enjoy together.

The whole garden is illuminated by an array of outside lighting creating the perfect balance between security and atmosphere.

The double garage provides space for two cars, with a fabulous clock tower above and internally has access to both power and light.

Location - Saville Road in Sneyd Park is without doubt amongst one of the city's most highly regarded residential addresses being situated on the very edge of the open expanse of Clifton's Downs that form 400 acres of inner city openness. The Downs create a natural division between the subject property and the historic suburb Clifton as well as a dramatic viewpoint across the Avon Gorge (an area of outstanding natural beauty and special scientific interest). Sneyd Park offers many practicalities over and above some of the neighbouring residential areas especially for those seeking gardens and ease of car parking. This particularly convenient position offers a choice of extensive local amenities at either Whiteladies Road (within half a mile) or Henleaze (around three quarters of a mile). Bristol city centre is within two miles and can be accessed by a regular bus service that passes within only a few hundred yards of the subject property. Access to the national motorway network can be found within two and a half miles to junction three of the M32 and three miles to junction 18 of the M5. The M5 also provides access to the extensive regional shopping centre at Cribbs Causeway. Bristol City centre is within three miles with a regular commuter rail service from Temple Meads to London Paddington and Bristol International Airport is around ten miles away offering daily flights to Europe. The area is particularly well served for schooling in both the state and private sectors.

Other Information - VIEWING: Strictly by prior appointment with Hydes Of Bristol.
TENURE: We are advised the property is Freehold and Free.
SERVICES: We understand all mains services are connected to the property.
LOCAL AUTHORITY: Bristol City Council (9222000) w: www.bristol.gov.uk
COUNCIL TAX BAND: Band G (£3,435.04 pa) for 2020/2021

Important Note - Hydes Of Bristol and any joint agents give notice that (i) they have no authority to make or give representations or warranties in relation to the property. These particulars do not form part of any offer or contract and must not be relied upon as statements or representations of fact. (ii) Any areas, distances or measurements are approximate. The text, photographs and plans are for guidance only and are not necessarily comprehensive. It should not be assumed that the property has all the necessary planning, building regulations or other consents and Hydes Of Bristol have not tested any services, equipment or facilities. Purchasers must satisfy themselves by inspection or otherwise. (iii) In accordance with the consumer protection from unfair trading regulations, please note that the working condition of these services, or kitchen appliances has not been checked by the Agents but at the time of taking particulars we were informed that all were in working order. Please also note that current government legislation demands that as selling agents for this property, Hydes Of Bristol require written evidence of the origin/source of finance for funding for any prospective purchaser wishing to purchase this property. This confirmation shall be required prior to the vendor entering into any contract of sale and our instructions from the vendor are to this effect.

Property Ref: 29869349

Share:

Similar Properties

Mortimer Road, Clifton, Bristol, BS8

7 Bedroom Semi-Detached House | Guide Price £1,850,000

A superb seven-bedroom Victorian family house of some 4,380 square feet (407 m2) with accommodation arranged over three...

Burwalls Road, Leigh Woods, Bristol, BS8

4 Bedroom Detached House | Guide Price £1,595,000

The Croft is a superb four double bedroom detached family home, built in 2016, forming part of the unique and exclusive,...

Grange Road, Clifton, Bristol, BS8

7 Bedroom House | Guide Price £1,555,000

An absolutely stunning (circa 3,454 sq ft) 6/7 bedroom Victorian townhouse presented in superb condition, conveniently l...

Canynge Square, Clifton, Bristol, BS8

5 Bedroom Town House | POA

OFFERS INVITED BETWEEN £1,875,000 AND £2,075,000 - An impressive 4/5 bedroom Grade II listed town house situated in Clif...

Eastfield, Westbury-on-Trym, Bristol, BS9

5 Bedroom Detached House | Guide Price £1,900,000

An impressive four bedroom detached Georgian town home tucked away, enjoying a private and secluded setting within exten...

Norland Road, Clifton, Bristol, BS8

5 Bedroom House | Guide Price £1,925,000

BUYER INTRODUCED BY HYDES OF BRISTOL - A generous, beautiful, and elegant Edwardian family home with versatile accommoda...

Hydes (Clifton)

28 Princess Victoria Street, Clifton, Bristol, BS8 4BU

0117 9731516

How much is your home worth?

Use our short form to request a valuation of your property.

Request a Valuation

Mortgage Calculator

Amount Borrowed: £
Total Amount Repayable: £
Total Monthly Payment: £
©2026 The Guild of Property Professionals. All rights reserved. Terms and Conditions | Privacy Policy | Cookie Policy | Complaints Policy | Members Login
The Guild of Property Professionals Trading Address: 121 Park Lane, London W1K 7AG. GPEA Limited. Registered in England & Wales.  Company No: 02819824.  Registered Office Address: 2 St. Stephen's Court, St. Stephen's Road, Bournemouth, Dorset, England, BH2 6LA.  VAT Registration No: 576 8795 61
Book a Property Valuation Update Cookies Preferences