Carnalbanagh Road, Broughshane, BT42 4NX

Offers in region of
£325,000
SSTC
This property listing is now SSTC

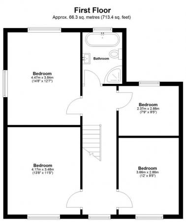
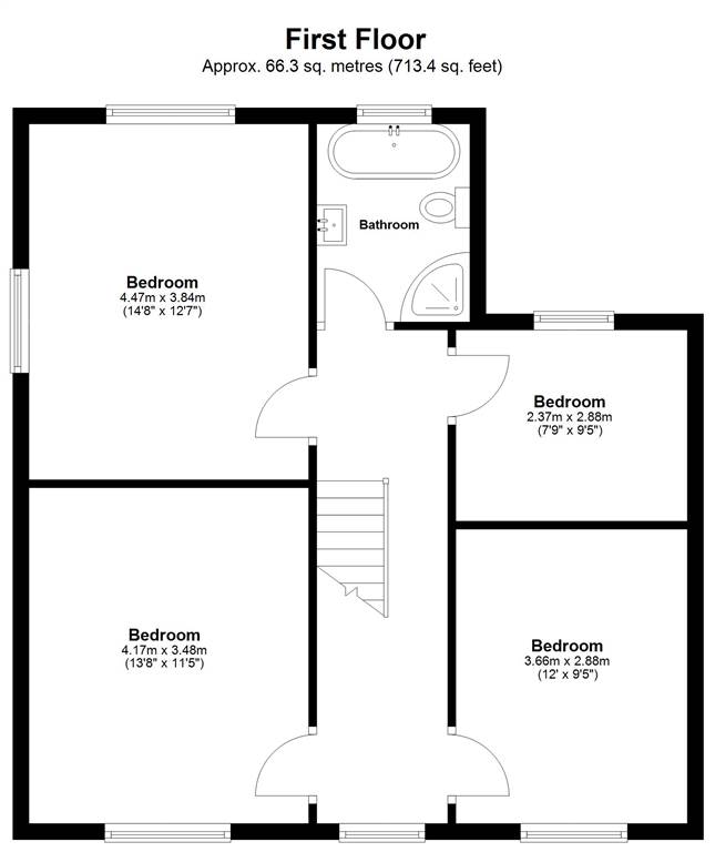
4 Bedroom Detached House for sale in Broughshane

2 4 1
  • Detached house with paddock
  • Four bedrooms
  • Living room with wood burning stove
  • Reception room (optional fifth bedroom)
  • Kitchen/dining room
  • Utility room/WC
  • First floor bathroom with 4-piece white suite
  • Oil fired central heating system
  • PVC front door
  • Hardwood door to rear

Homes Independent are delighted to present for sale this exceptional property at 179 Carnalbanagh Road, Broughshane. Set on approximately 0.65 acres, this impressive home offers everything a buyer could wish for, including a detached house, spacious outbuildings, a large garage and a paddock. The main residence comprises four well-proportioned bedrooms, a bright living room with a wood-burning stove, and an additional reception room that could also be used as a fifth bedroom if desired. There is also a utility room with a ground floor WC and a modern first-floor bathroom. Adding further appeal, the property includes a detached annex cottage offering two bedrooms, a shower room and an open-plan kitchen, dining and living area – perfect for extended family, guests or potential rental income. Enjoying stunning panoramic views of Slemish Mountain, this idyllic countryside property truly offers the best of rural living. Don’t miss out – contact Homes Independent today to arrange your viewing.

Property Ref: HIBM_HIBM5148

Share:

Similar Properties

Shellinghill Road, Cullybackey, Ballymena, BT42 1NF

3 Bedroom Detached House | Offers in region of £325,000

This exceptional detached dwelling is set on a generous and mature plot of approximately 1 acre. This listing offers a u...

Shellinghill Lane, Cullybackey, BT42 1FX

4 Bedroom Detached House | Offers in region of £325,000

Homes Independent are delighted to present this attractive detached residence, nestled in a quiet and highly desirable a...

Parklands, Ballymena, BT43 6FD

4 Bedroom Detached House | Offers in region of £325,000

Homes Independent are delighted to present this truly stunning split-level bungalow set in a quiet cul-de-sac within the...

Shankbridge Road, Kells, BT42 3DL

3 Bedroom Detached House | Offers in region of £335,000

Set on what can only be described as a truly special and private rural site, Homes Independent are delighted to bring to...

Sheepshill, Ballymena, BT42 1QW

4 Bedroom Detached House | Offers in region of £350,000

Homes Independent are delighted to present to the market 5 Sheepshill, a stunning detached family home located in one of...

Church Road, Glenwherry, BT42 3EH

4 Bedroom Detached House | Offers in region of £365,000

Homes Independent are delighted to bring to the market this truly unique and beautifully renovated detached residence, s...

Homes Independent (Ballymena)

Ballymena, Antrim, BT43 5AA

028 2565 11 11

How much is your home worth?

Use our short form to request a valuation of your property.

Request a Valuation

Mortgage Calculator

Amount Borrowed: £
Total Amount Repayable: £
Total Monthly Payment: £
©2025 The Guild of Property Professionals. All rights reserved. Terms and Conditions | Privacy Policy | Cookie Policy | Complaints Policy | Members Login
The Guild of Property Professionals Trading Address: 121 Park Lane, London W1K 7AG. GPEA Limited. Registered in England & Wales.  Company No: 02819824.  Registered Office Address: 2 St. Stephen's Court, St. Stephen's Road, Bournemouth, Dorset, England, BH2 6LA.  VAT Registration No: 576 8795 61
Book a Property Valuation Update Cookies Preferences