Bray Shop, Callington - Cornwall

£1,200,000
Sold
This property listing is now Sold

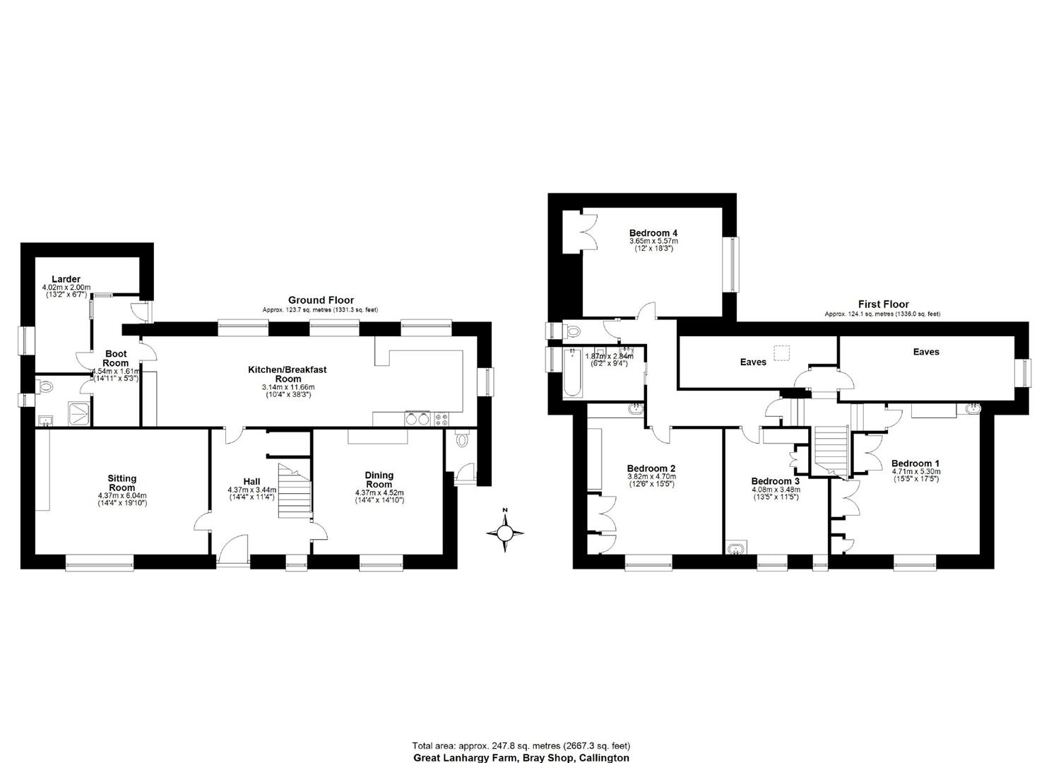
4 Bedroom Detached House for sale in Callington

4 2
  • 20 Acre residential farm
  • Secluded character 4 Bedroom house
  • Impressive traditional barns with potential
  • Livestock and storage buildings
  • Countryside views

Secluded 20 acre residential farm, with a character 4 bedroom house, impressive courtyard of traditional barns with potential. Livestock and general purpose buildings and quality grassland. Countryside views.

Great Lanhargy is quietly located on the edge of the rural village of Bray Shop , 8 miles to the South of Launceston which offers a variety of shops, supermarkets and a range of educational facilities and easy access to the A30. Plymouth 17 miles to the South East offer a more comprehensive range of educational, cultural, recreational and shopping facilities.

Great Lanhargy is located in a peaceful and secluded setting in a popular livestock area and extends to approximately 18 acres of productive level or gently sloping grassland with a character 4 bedroom house which requires some modernisation and updating. To the rear of the house is an impressive courtyard of traditional barns with potential for conversion and livestock and general purpose buildings.

Garden - At the front of the house is a level lawn garden with flower bed borders stocked with mature shrubs and trees enclosed within stone walls.

The Land - The land extends to approximately 18 acres (7.28ha) in a ring fence. The land is enclosed within traditional Cornish bank hedges with some post and wire fences. Private and mains water supply to the land. A public footpath crosses the land.

Buildings - To the rear of the house is an impressive courtyard of substantial traditional barns all with potential for conversion.

Two Storey Traditional Barn: - 23.88m x 5.79m (78'4" x 19'0") -

Two Storey Traditional Barn: - 23.98m x 6.48m (78'8" x 21'3") -

Two Storey Traditional Barn: - 20.98m x 6.58m (68'10" x 21'7") -

Single Storey Traditional Barn - 15.80m x 7.75m (51'10" x 25'5") -

Covered Yard: - 6.27m x 6.12m (20'7" x 20'1") -

Livestock And General Purpose Building: - 26.09m x 23.14m (85'7" x 75'11") -

Lean-To Store - 19.28m x 4.85m (63'3" x 15'11") -

Traditional Barn / Garage: - 4.93m x 7.65m (16'2" x 25'1") -

Single Storey Traditional Barn: - 8.38m x 7.49m (27'6" x 24'7") -

Workshop / Machinery Store: - 13.49m x 9.68m (44'3" x 31'9") -

Services - Water - Private (Mains supply available)
Drainage - Private
Electricity - Mains
Telephone and Broadband - BT connection
Heating - Oil Fired Central Heating
Council Tax - Band D
Sale Completed - 10th January 2023

Tenure - The property is offered for sale freehold with vacant possession on completion.

Local Authority - Cornwall Council, County Hall, Treyew Road, Truro, Cornwall TR1 3AY

Viewing Arrangements - Strictly by arrangement with D R Kivell Country Property 01822 810810
All viewings are to be accompanied without exception. Walking the land unaccompanied is strictly forbidden, as this is a working livestock farm.

Agent's Notes - None of the services or appliances, plumbing, heating or electrical installations have been tested by the selling agent. Any maps used on the details are to assist identification of the property only and are not an indication of the actual surroundings, which may have changed since the map was printed. None of the statements contained in these particulars as to this property are to be relied on as statements or representations of fact. There are numerous power points throughout the property although not individually listed. All figures, measurements, floor plans and maps are for guidance purposes only. They are prepared and issued in good faith and are intended to give a fair description of the property but do not constitute any part of any offer or contract. The property is sold subject to and with the benefit of all outgoings, rights of way, easements and wayleaves there may be, whether mentioned in these general remarks and stipulations or particulars of sale or not.

Property Ref: 9200_31756739

Share:

Similar Properties

Doddiscombsleigh, Exeter - Devon

4 Bedroom Equestrian | £1,200,000

The Owners said - "Outstanding professional service from D. R. Kivell country property agent. After deciding to sell our...

Yelverton, Devon

6 Bedroom Country House | £1,200,000

The Owners said "Having decided to downsize after 36 years, we could not have selected a better agent in D. R. Kivell Co...

Thornbury, Holsworthy - Devon

4 Bedroom Detached House | £1,200,000

Impressive and very well presented 4 bedroom house, 3 popular holiday letting cottages, 3 fishing / wildlife lakes in 13...

Mary Tavy, Tavistock - Devon

4 Bedroom Farm | £1,210,000

Well located 86 acre residential stock farm in a popular and sought-after area on the western fringes of Dartmoor. Chara...

South Hill, Callington - Cornwall

6 Bedroom Country House | £1,250,000

Well presented, characterful 6 bedroom converted barn and 2 holiday cottages in 10.78 acres. Extensive characterful acco...

South Hill, Callington - Cornwall

6 Bedroom Country House | £1,250,000

*SOLD* Well presented, characterful 6 bedroom converted barn and 2 holiday cottages in 10.78 acres. Extensive characterf...

D. R. Kivell Country Property (Tavistock)

Tavistock, Devon, PL19 0NW

01822 810810

How much is your home worth?

Use our short form to request a valuation of your property.

Request a Valuation

Mortgage Calculator

Amount Borrowed: £
Total Amount Repayable: £
Total Monthly Payment: £
©2025 The Guild of Property Professionals. All rights reserved. Terms and Conditions | Privacy Policy | Cookie Policy | Complaints Policy | Members Login
The Guild of Property Professionals Trading Address: 121 Park Lane, London W1K 7AG. GPEA Limited. Registered in England & Wales.  Company No: 02819824.  Registered Office Address: 2 St. Stephen's Court, St. Stephen's Road, Bournemouth, Dorset, England, BH2 6LA.  VAT Registration No: 576 8795 61
Book a Property Valuation Update Cookies Preferences