High Street, Huntingdon, Cambridgeshire.

Guide Price
£525,000
SSTC
This property listing is now SSTC

Not Specified for sale in Cambridgeshire

  • Residential Development Site.
  • Planning permission granted the conversion of a Listed building to 4 apartments & 2 new build mews houses.
  • Potential for a title split.
  • Sited within Huntingdon Town Centre.
  • 20 minute walk to Huntingdon Train Station / Fast lines to London in under 50 minutes.
  • Five off road car parking spaces.
  • Offered with no chain and vacant possession.
  • Quick access onto the A14 road network / Cambridge a 30 minute drive.
  • Viewing strictly by the selling agent Oliver James.
  • Call 01480 458 762 For More Details.

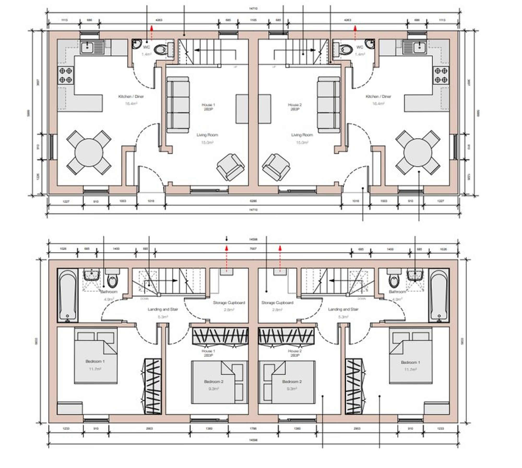
A unique opportunity to acquire a development site in a town centre location with Planning Permission and Listed Building Consent granted to convert no.’s 148-150 High Street Huntingdon into four self-contained residential apartments comprising;

Flat No 1: 62 sq.metres - 2 bedroom / 1 bathroom.

Flat No 2: 37 sq.metres - 1 bedroom / 1 bathroom.

Flat No 3: 45 sq.metres - 1 bedroom / 1 bathroom.

Flat No 4: 78 sq.metres - 3 bedroom / 1 bathroom.

To the north of the existing car park permission has been granted for two new 2-bed dwellings; Old Bridge Mews. The semi-detached buildings will be built on an east-west axis and are 1.5 storeys with dormers constructed within the pitched roof.

House 1: 70 sq.metres - 2 bedroom / 1 bathroom.

House 2: 70 sq.metres - 2 bedroom / 1 bathroom.

There will be 5 car parking spaces serving the development.

The scheme has been thoughtfully designed to preserve the special architectural and historic interest of the heritage asset while securing a sustainable and beneficial long-term use.

Important Information

  • This is a Freehold property.
  • This Council Tax band for this property is: D

Property Ref: 421367b9-902b-412b-9687-093a065636fb

Share:

Similar Properties

Mill Road, Stilton, Cambridgeshire.

4 Bedroom Detached House | £525,000

Offering panoramic views over open countryside to the rear, this modernised and extended home is sited on a large corner...

Tower Close, Ramsey, Cambridgeshire.

4 Bedroom House | Guide Price £500,000

Constructed in 2000, an executive detached family home of 1542 sq/ft / 143 sq/metres on a corner plot of 0.16 acres situ...

Lingmoor, Stukeley Meadows, Huntingdon.

4 Bedroom Detached House | Offers Over £500,000

Offers invited between £500,000 to £525,000. An executive home sited in a quiet cul-de-sac location with double garaging...

Tawny Crescent, Hartford, Huntingdon.

4 Bedroom Detached House | Offers in excess of £550,000

Tucked away in a quiet cul-de-sac location with a southerly facing rear garden, this spacious four bedroom, / three bath...

Bythorn, Cambridgeshire.

3 Bedroom Detached House | Offers Over £550,000

A detached home providing 1,819 sq.ft / 169 sq.metres of well planned accommodation, double garaging with room and en-su...

Clarke Crescent, Sawtry, Cambridgeshire.

5 Bedroom Detached House | £550,000

Elegant 5 bedroom / 3 bathroom detached home overlooking open countryside. No onward chain.

Oliver James Property Sales & Lettings (Huntingdon)

1 George Street, Huntingdon, Cambridgeshire, PE29 3AD

01480 458762

How much is your home worth?

Use our short form to request a valuation of your property.

Request a Valuation

Mortgage Calculator

Amount Borrowed: £
Total Amount Repayable: £
Total Monthly Payment: £
©2026 The Guild of Property Professionals. All rights reserved. Terms and Conditions | Privacy Policy | Cookie Policy | Complaints Policy | Members Login
The Guild of Property Professionals Trading Address: 121 Park Lane, London W1K 7AG. GPEA Limited. Registered in England & Wales.  Company No: 02819824.  Registered Office Address: 2 St. Stephen's Court, St. Stephen's Road, Bournemouth, Dorset, England, BH2 6LA.  VAT Registration No: 576 8795 61
Book a Property Valuation Update Cookies Preferences