High Street, Cambridgeshire, PE29

£225,000

Not Specified for sale in Cambridgeshire

  • Residential Development Site.
  • Planning permission granted for 2 new build mews houses.
  • Sited within Huntingdon Town Centre.
  • 20 minute walk to Huntingdon Train Station / Fast lines to London in under 50 minutes.
  • Off road parking spaces.
  • Quick access onto the A14 road network / Cambridge a 30 minute drive.
  • Offering great rental investment potential.
  • Viewing strictly by the selling agent Oliver James.
  • Offered with no chain and vacant possession.
  • Call 01480 458 762 For More Details.

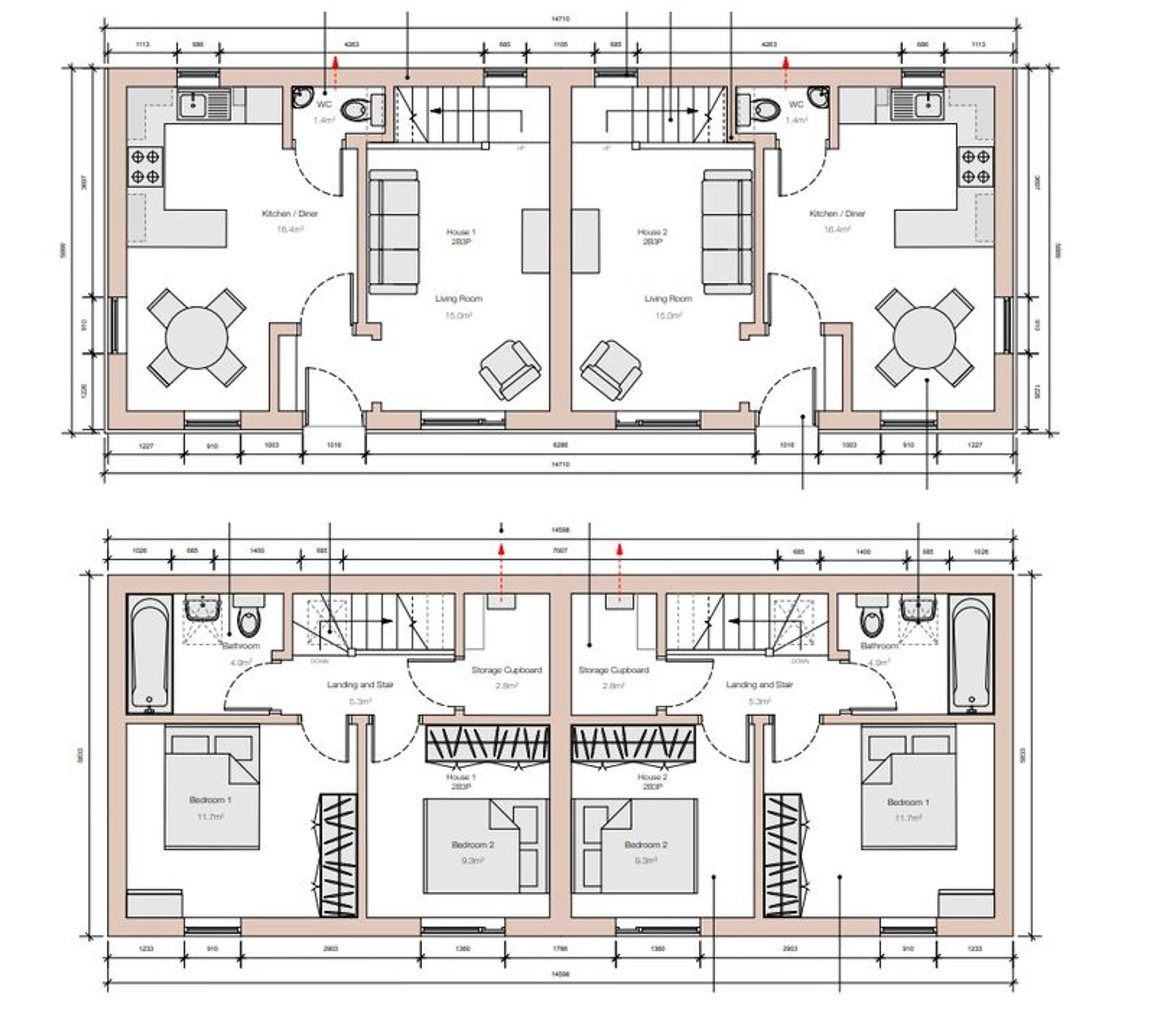
A unique opportunity to acquire a development site in a town centre location with Planning Permission for two new 2-bed dwellings; Old Bridge Mews. The semi-detached buildings will be built on an east-west axis and are 1.5 storeys with dormers constructed within the pitched roof.

House 1: 70 sq.metres - 2 bedroom / 1 bathroom.

House 2: 70 sq.metres - 2 bedroom / 1 bathroom.

There will be car parking provided within the scheme.

The scheme has been thoughtfully designed to preserve the special architectural and historic interest of surrounding buildings while securing a sustainable and beneficial long-term use.

Important Information

  • This is a Freehold property.
  • This Council Tax band for this property is: D

Property Ref: 78796d4e-dc58-402b-8dae-f1e1427eb8d5

Share:

Similar Properties

Robertson Way, Sapley, Huntingdon.

2 Bedroom End of Terrace House | Offers in excess of £225,000

A well presented home with single garaging sited a short walk away from local amenities. Offered with no chain.

Falstaff Way, Hartford, Huntingdon.

3 Bedroom End of Terrace House | £225,000

Overlooking a pleasant communal green to the front, an end-of-terrace home requiring some updating, offered with no onwa...

Stanch Hill Road, Sawtry, Huntingdon.

2 Bedroom House | Asking Price £220,000

An attractive two bedroom terraced home of 556 sq/ft / 51 sq/metres with refitted kitchen and driveway parking for two v...

Middlefield Road, Sawtry, Huntingdon.

2 Bedroom Bungalow | Asking Price £235,000

A well-proportioned bungalow with driveway parking and good size rear garden in a central village location. Offered with...

South Street, Huntingdon, Cambridgeshire.

3 Bedroom Detached House | £235,000

### CASH BUYERS ONLY ### A quirky, detached, period home with a courtyard garden and small driveway providing parking fo...

Ashton Gardens, Huntingdon, Cambrideshire.

3 Bedroom End of Terrace House | Guide Price £235,000

Offered with no chain, an end of terrace home with single garaging, sited just a short walk from the town centre and tra...

Oliver James Property Sales & Lettings (Huntingdon)

1 George Street, Huntingdon, Cambridgeshire, PE29 3AD

01480 458762

How much is your home worth?

Use our short form to request a valuation of your property.

Request a Valuation

Mortgage Calculator

Amount Borrowed: £
Total Amount Repayable: £
Total Monthly Payment: £
©2025 The Guild of Property Professionals. All rights reserved. Terms and Conditions | Privacy Policy | Cookie Policy | Complaints Policy | Members Login
The Guild of Property Professionals Trading Address: 121 Park Lane, London W1K 7AG. GPEA Limited. Registered in England & Wales.  Company No: 02819824.  Registered Office Address: 2 St. Stephen's Court, St. Stephen's Road, Bournemouth, Dorset, England, BH2 6LA.  VAT Registration No: 576 8795 61
Book a Property Valuation Update Cookies Preferences