Orchard Grove, Chalfont St Peter, SL9

£783,500
SSTC
This property listing is now SSTC

4 Bedroom Semi-Detached House for sale in Chalfont St Peter

3 4 3
  • Four bedroom semi-detached house
  • Extended
  • Stunning kitchen / diner / family room
  • Master bedroom with ensuite
  • Four double bedrooms
  • Contemporary design and layout

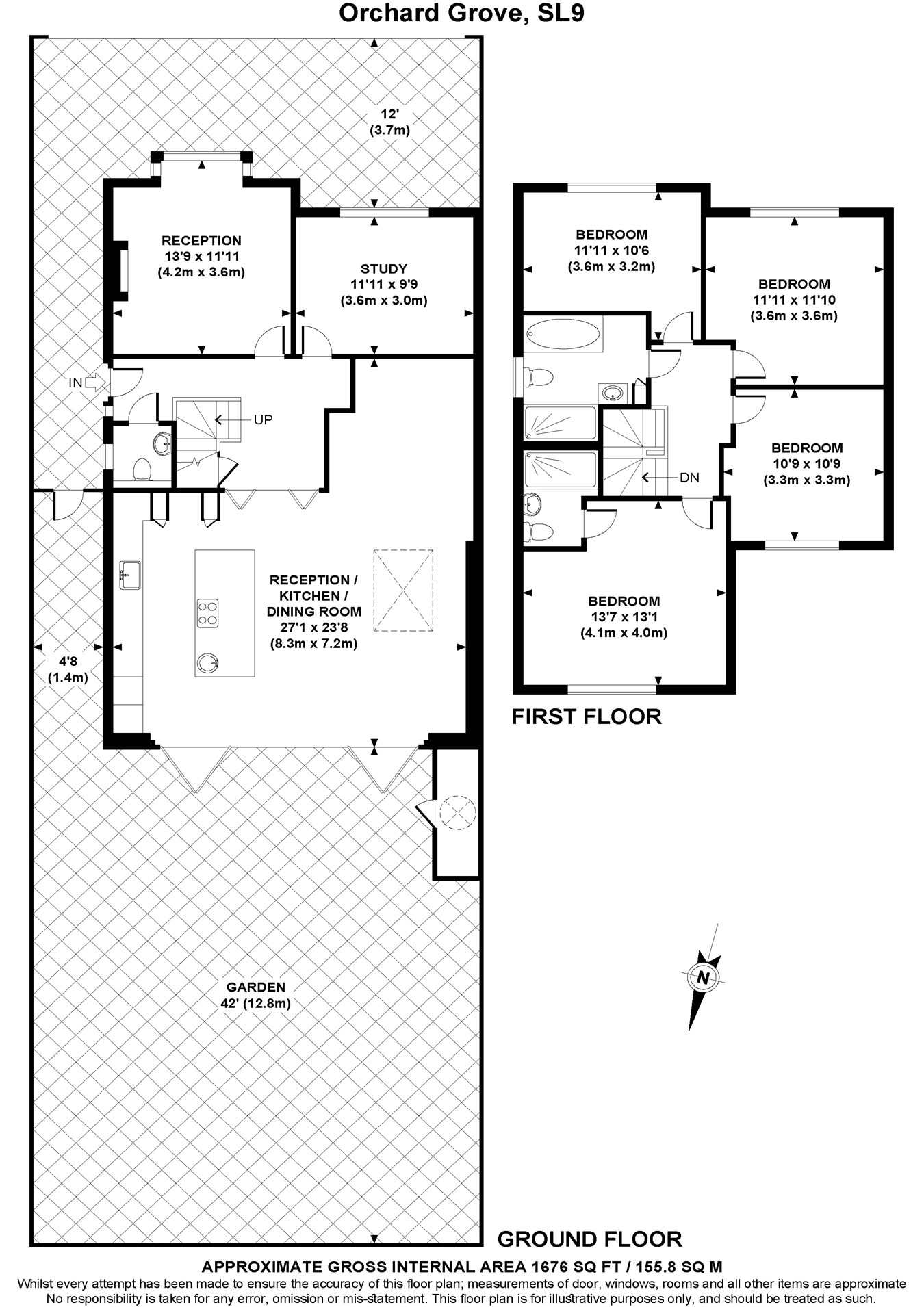
This stunning four DOUBLE bedroom, extended semi detached house offers bright, spacious and flexible accommodation, amounting to approx. 1676 sq ft (155.8 sqm). Situated in a highly sought after residential road on the Gold Hill Common side of the vilage, the property is beautifully presented thoughout with the accommodation carefully planned to create a modern way of living with contemporary styling. There is off street parking to the front of the property and a private garden to the rear. Viewing highly recommended. All local amenities, including schools, Chalfont St Peter Village and transport links are all nearby.

Upon entering the property there is a good size hallway with ground floor cloakroom and storage. To the front of the property there are two reception rooms, the living room which has a feature fireplace and front aspect bay window, plus the study which also overlooks the front of the house. However, the real hub of this home is the rear section of the house which encompasses a beautiful, fitted kitchen, dining area, plus sitting area. This room has a lantern window, plus full width bi-folding doors opening out to the garden, both contributing an abundance of light to the room. The kitchen is fitted with an extensive range of units and includes an island unit with inset hob, sink, plus breakfast bar. There are a range of high-quality integrated appliances, and the dining area has a feature exposed brick wall with space for an inset LED TV, with the lantern window above.

Moving to the first floor, the master bedroom overlooks the rear of the property and has an ensuite shower room. The three further bedrooms are also of a double size and the family bathroom with modern suite completes the first floor accommodation.

To the front of the property there is off street parking and to the rear the garden extends to more than 40' and is mainly laid to lawn with patio area.

Orchard Grove is convenient for access to local amenities and transport links. Gerrards Cross is less than 1.5 mile from the property and provides a wider range of shopping facilities and Mainline station with fast trains into London Marylebone in approximately 22 minutes. Central London is easily accessible by road via the M40 (J1A) and M25 (J16) plus access to Heathrow and Gatwick Airports. Should you wish to access the tube network directly, Amersham (approx. 6.5 miles), Chalfont & Latimer (within 6 miles) and Gerrards Cross station is a 20 minute level walk away from the property. All tube stations are all easily accessible.

Buckinghamshire is renowned for its education system, with an excellent choice of state and independent schools, including Dr Challoners High School for Girls and Dr Challoners Grammar School for Boys. Chalfont St Peter Infant School, Church of England Academy and Community College are all nearby.

The area is also well served for sporting facilities with The Buckinghamshire, Gerrards Cross and Denham Golf Courses within the area. Lawn tennis is available at Gerrards Cross and Beaconsfield.

Important Information

  • This is a Freehold property.

Property Ref: 462746_28346688

Share:

Similar Properties

Lower Road, Chalfont St Peter, Gerrards Cross, SL9

3 Bedroom Detached House | Guide Price £775,000

Hilton King and Locke are delighted to bring to market this delightful three double bedroom detached property set just m...

Layters Avenue, Chalfont St Peter, Gerrards Cross, SL9

3 Bedroom Semi-Detached House | Offers in region of £775,000

Exceptional Redevelopment Opportunity with Planning Permisson and Building Regulations Approved. An outstanding opportun...

Harvil Road, Harefield, Uxbridge, UB9

3 Bedroom Semi-Detached House | £745,000

*Planning Approval Received to Build Attached House to Existing Property - Planning ref: 39392/APP/2024/397*Priory Cotta...

Pond Lane, Chalfont St Peter, Gerrards Cross, SL9

4 Bedroom Semi-Detached House | £850,000

A stunning extended four bedroom semi detached house situated in a highly sought after cul-de-sac location. The property...

Ravensmead, Chalfont St Peter, Gerrards Cross, SL9

3 Bedroom Detached House | Guide Price £850,000

Hilton King and Locke are delighted to bring to market this superb three bedroom detached house which is situated in a h...

Amersham Road, Chalfont St Peter, SL9

4 Bedroom Detached House | £850,000

A spacious, well-balanced four bedroom detached home with room to grow and the convenience of London within easy reach.T...

Hilton King & Locke (Chalfont St Peter)

20 Market Place, Chalfont St Peter, Buckinghamshire, SL9 9EA

01753 480060

How much is your home worth?

Use our short form to request a valuation of your property.

Request a Valuation

Mortgage Calculator

Amount Borrowed: £
Total Amount Repayable: £
Total Monthly Payment: £
©2026 The Guild of Property Professionals. All rights reserved. Terms and Conditions | Privacy Policy | Cookie Policy | Complaints Policy | Members Login
The Guild of Property Professionals Trading Address: 121 Park Lane, London W1K 7AG. GPEA Limited. Registered in England & Wales.  Company No: 02819824.  Registered Office Address: 2 St. Stephen's Court, St. Stephen's Road, Bournemouth, Dorset, England, BH2 6LA.  VAT Registration No: 576 8795 61
Book a Property Valuation Update Cookies Preferences