Fairclose, Combe St Nicholas, Chard, Somerset, TA20

£525,000

4 Bedroom Detached House for sale in Chard

1 4 2

A Spacious and Versatile Four-Bedroom Detached Chalet Bungalow with Panoramic Views � South Somerset

Set on the edge of a thriving South Somerset village, this well-presented four-bedroom detached chalet bungalow enjoys an enviable position with open countryside views to the front and woodland to the rear, offering both scenic surroundings and a high degree of privacy.

The property provides flexible accommodation arranged over two floors, ideal for family living, multi-generational households, or those seeking adaptable space.

The ground floor features two generously sized bedrooms, served by a well-appointed main bathroom. Upstairs are two further double bedrooms, including a spacious principal suite with en-suite bathroom.

At the heart of the home is a triple-aspect, L-shaped lounge, complete with a cosy wood burner and plenty of natural light. This welcoming space flows through to a large conservatory, which enjoys lovely views over the rear garden and makes an ideal space for entertaining or relaxing year-round.

The fitted kitchen includes a selection of integrated appliances and offers good storage and workspace, while a separate utility area is located to the rear of the double garage.

The double garage itself is well-equipped with two electric roll-up doors, light, and power. At the rear, a door leads to a versatile garden room, currently used as a potting shed, which opens directly onto the garden � perfect for gardening enthusiasts or additional hobby space.

Outside, the property enjoys gardens to all four sides, creating a private and tranquil setting. A gated driveway provides ample off-street parking and leads to the garage.

The grounds are thoughtfully landscaped and include areas of lawn, paved seating areas, and an abundance of flower beds planted with a wide variety of mature shrubs and plants. Additional features include ponds, wooden storage buildings, and charming garden pathways � making the outdoor space as functional as it is beautiful.

This rarely available home combines countryside living with excellent access to village amenities and must be viewed to be fully appreciated.

Tenure: Freehold
Council Tax Band: E
EPC Rating: D

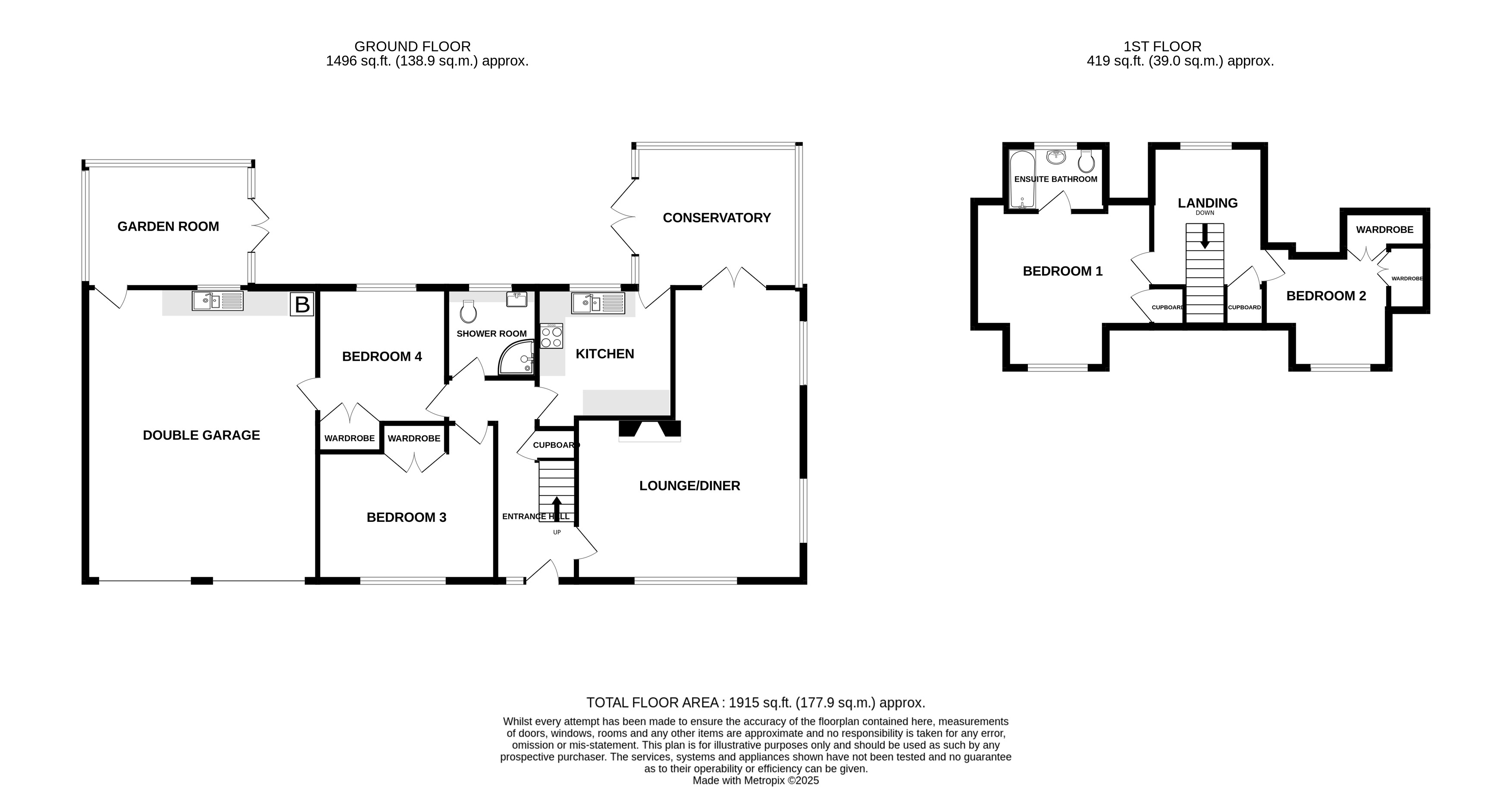
Accommodation comprises:
Ground Floor: Entrance hall, lounge/diner, conservatory, kitchen, down stairs shower room, two ground floor bedrooms.
First Floor: Main bedroom with ensuite bathroom and second bedroom.

Situation & Amenities    The property is tucked away along a private lane on the outskirts of the popular South Somerset Village of Combe St Nicholas, however within easy reach of the general village facilities on offer, on the southern edge of the Blackdown Hills AONB.

Located approximately 5 minutes from the A303 it makes an attractive location for those looking to commute to Taunton, Yeovil, Honiton & Exeter.

An attractive village green set in the heart of the village is close to the Village shop & Post Office, a well-regarded and successful Primary School Ofsted rated 'Good' in 2022, The Green Dragon pub, Playground and Recreation Area, Football Club. All other day-to-day facilities can be found in nearby Chard and Ilminster.
The village enjoys a host of social clubs and further groups such as art group, folk dance club, hand bell ringing, history group and horticultural society to name a few.
A bus service connects to the County Town of Taunton and also the local market town of Chard.
The Dorset coast with beautiful coastal towns and beaches is less than a 40 minute drive away.

Entrance Hall    uPVC main entrance door with side windows into entrance hall. Stairs rising to first floor, understairs storage cupboard and doors to all principle rooms.

Lounge/Diner 20'10" (6.36m) x 17'5" (5.30m) narrowing to 9'7" (2.91m). Fireplace with inset wood burner, radiator, wall lights, Two double glazed windows to the side aspect, double glazed window to the front aspect and double glazed double doors opening into the conservatory.

Conservatory 12'6" x 10'10" (3.8m x 3.3m). Of brick and uPVC double glazed construction. Radiator and double doors opening out to rear garden. Further door into kitchen.

Kitchen 10'5" (3.18m) x 10' (3.06m) narrowing to 8'11" (2.71m). Fitted with a range of matching wall and base units set beneath worktops with inset ceramic one and a half bowl sink and drainer. Inset elevated double oven, inset electric hob and integrated fridge. Radiator, spotlights, double glazed window to the rear aspect. Doors to conservatory and entrance hall.

Bedroom Three 13'11" (4.24m) x 11'6" (3.51m) narrowing to 9'11" (3.03m). Built-in storage cupboard, radiator and double glazed window to the front aspect.

Bedroom Four/Reception Room 10'5" x 9'11" (3.18m x 3.02m). Built-in cupboard, radiator and double glazed window to the rear aspect. Door and step into double garage.

Shower Room    Fitted with a three-piece suite comprising corner shower cubicle with mains shower, back-to-wall W.C. and inset wash hand basin with fitted storage. Heated towel rail, tiled splashbacks and opaque double glazed window to the rear aspect.

First Floor Landing    Spacious landing with space for desk/study area. Built-in storage cupboard, radiator and double glazed window to the rear aspect. Doors to all principal rooms.

Bedroom One 13'8" (4.17m) x 11'10" (3.61m) narrowing to 9'7" (2.92m) (irregular shape). Built-in storage cupboard, radiator, wall lights, television point. Double glazed window to the front aspect with views across fields and countryside. Door to ensuite bathroom.

Ensuite Bathroom    Fitted with a three-piece suite comprising panelled bath with mains shower and screen over, low-level W.C. and pedestal wash hand basin. Radiator, spotlights, extractor, tiled splashbacks and opaque double glazed window to the rear aspect.

Bedroom Two 9'7" (2.92m) narrowing to 7'5" (2.26m) x 9'5" (2.86m) (irregular shape). Radiator, television point, built-in linen cupboard. Further built-in cupboard with radiator, slated shelving and access to eaves. Double glazed window to the front aspect with views across fields and countryside.

Double Garage 17'10" x 22'7" (5.44m x 6.88m). Two electric roll up doors, light and power. Utility area with wall and base units with inset sink and drainer. Space and plumbing for washing machine, space for tumble dryer, space for freezer. Floor mounted central heating boiler. Double glazed window to the rear aspect. Personal door out to garden room.

Garden Room 12'9" x 9'7" (3.89m x 2.92m). Of uPVC double glazed construction with double doors out to rear garden.

Outside    The property is approached via a private lane with gates opening into the driveway providing off street parking whilst giving access to the main entrance door. The front garden is made up of an area laid to raised planting with feature pond. A wooden gate gives access through to the side garden housing a wooden storage shed with path leading to the rear.
The rear garden is made up of an area laid to lawn enclosed by areas of paving providing excellent seating and entertaining areas. There are a variety of raised flower beds throughout the rear garden well stocked with mature planting. The rear garden enjoys a lovely private outlook overlooking woodland.

Property Information    Services
Mains water and electric. Private drainage. Oil Central heating.

Broadband and Mobile Coverage
Superfast Broadband is available in this area and mobile signal should be available indoors from two major providers and outdoors from all four major providers. Information supplied by ofcom.org.uk

Access
There is a right of access across a small section of the front garden outside of the low level walling giving access to a gate leading into the adjoining woodland.



Important Information

  • This is a Freehold property.

Property Ref: 131978_PFE230153

Share:

Similar Properties

Monmouth Court, Chard, Somerset, TA20

4 Bedroom Detached House | £495,000

A substantial immaculately presented four bedroom detached family home situated in a corner plot location with double ga...

Wambrook, Chard, Somerset, TA20

4 Bedroom Detached Bungalow | Guide Price £495,000

Occupying an elevated rural location in South Somerset this recently refurbished four bedroom detached bungalow enjoys a...

Fore Street,, Tatworth,, Somerset,, TA20

3 Bedroom Detached House | £490,000

Situated in the popular village of Tatworth, a charming three bedroom detached home blending character with comfortable...

Forton Lane, Forton, Somerset, TA20

5 Bedroom Detached House | £585,000

A beautifully presented five bedroom detached Period cottage with garage, carport, parking and grounds situated in the r...

Poltimore Lane, Combe St Nicholas, Chard, Somerset, TA20

4 Bedroom Detached House | Guide Price £600,000

A charming and spacious four-bedroom detached home, set within approximately 0.45 acres of beautifully maintained ground...

Burridge, Axminster, Devon, EX13

3 Bedroom Detached House | £600,000

Tucked away in the heart of the countryside, this charming detached cottage offers the perfect blend of traditional char...

Paul Fenton Estate Agents (Chard)

34 Fore Street, Chard, Somerset, TA20 1PT

01460 68222

How much is your home worth?

Use our short form to request a valuation of your property.

Request a Valuation

Mortgage Calculator

Amount Borrowed: £
Total Amount Repayable: £
Total Monthly Payment: £
©2025 The Guild of Property Professionals. All rights reserved. Terms and Conditions | Privacy Policy | Cookie Policy | Complaints Policy | Members Login
The Guild of Property Professionals Trading Address: 121 Park Lane, London W1K 7AG. GPEA Limited. Registered in England & Wales.  Company No: 02819824.  Registered Office Address: 2 St. Stephen's Court, St. Stephen's Road, Bournemouth, Dorset, England, BH2 6LA.  VAT Registration No: 576 8795 61
Book a Property Valuation Update Cookies Preferences