Development Land, Birkin Lane, Wingerworth, Chesterfield, S42 6LL

£300,000

Plot for sale in Chesterfield

  • Single building plot for 1 detached eco home
  • Planning permission granted
  • North East Derbyshire Council - ref 22/01145/RM
  • Stunning rural location surrounded by glorious Derbyshire countryside
  • Close to village amenities
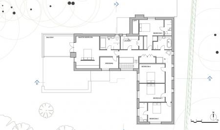
  • Overall accommodation 6083 sqft including garages
  • Fantastic location on the edge of the Peak District National Park and within close proximity to amenities

A truly unique opportunity to build your dream home in this stunning rural location. With planning consent granted for the erection of a large detached dwelling.

Local authority : North East Derbyshire Council
Planning ref : 22/01145/RM

Overall accommodation : 6083 sqft including garage.

Situated in this idyllic, rural location, on the outskirts of Wingerworth Village and a stones throw from Ashover and surrounding amenities, is this approximately 1/2 acre plot of land with full planning for the construction of an impressive 6083 sqft 5 bedroom, 4 bathroom detached eco home.

Property Ref: 33929258

Share:

Similar Properties

Starkholmes Road, Matlock, DE4 3DD

3 Bedroom House | Guide Price £300,000

.. 3D TOUR .. £300,000 - £315,000 (Guide price) Situated in the highly desirable and picturesque village of Starkholmes,...

Norton Avenue, Somersall, Chesterfield, S40 3NG

2 Bedroom Detached Bungalow | Guide Price £300,000

£300,000 - £350,000 (Guide price) Set back from the road in a generous plot, located at the head of a quiet cul-de-sac i...

Damson Croft, Hollingwood, Chesterfield, S43 2HY

5 Bedroom Detached House | Guide Price £300,000

£300,000 - £325,000 (Guide price) An attractive, beautifully styled and practically upgraded 5 bedroom detached family h...

Strathfield Cottage, Stretton, Alfreton, DE55 6FE

2 Bedroom Barn Conversion | £310,000

Welcome to Strathfield Cottage; a simply stunning two-bedroom barn conversion nestled in the heart of idyllic Stretton,...

New Road, Wingerworth, Chesterfield, S42 6TD

3 Bedroom Detached House | £315,000

Dating back to the late 1700's, this grade II listed former gate house to central drive, located in the sought after vil...

Maple Close, South Normanton, Derbyshire, DE55

4 Bedroom Detached House | £325,000

Forming part of an exclusive development of substantial detached homes, this impressive four-bedroom family residence oc...

Dales and Peaks (Chesterfield)

Brampton, Chesterfield, S40 2AP

01246 567540

How much is your home worth?

Use our short form to request a valuation of your property.

Request a Valuation

Mortgage Calculator

Amount Borrowed: £
Total Amount Repayable: £
Total Monthly Payment: £
©2026 The Guild of Property Professionals. All rights reserved. Terms and Conditions | Privacy Policy | Cookie Policy | Complaints Policy | Members Login
The Guild of Property Professionals Trading Address: 121 Park Lane, London W1K 7AG. GPEA Limited. Registered in England & Wales.  Company No: 02819824.  Registered Office Address: 2 St. Stephen's Court, St. Stephen's Road, Bournemouth, Dorset, England, BH2 6LA.  VAT Registration No: 576 8795 61
Book a Property Valuation Update Cookies Preferences