East Foscote, near Grittleton

£1,100,000

4 Bedroom Barn Conversion for sale in Chippenham

2 4 2
  • Period barn conversion
  • Rural setting down a leafy country lane
  • Large garden plus a 0.84 acre paddock
  • 4 bedrooms
  • Large kitchen/dining/family room
  • Further spacious living room
  • Private gated parking and garage
  • Beautifully presented with period features

Description


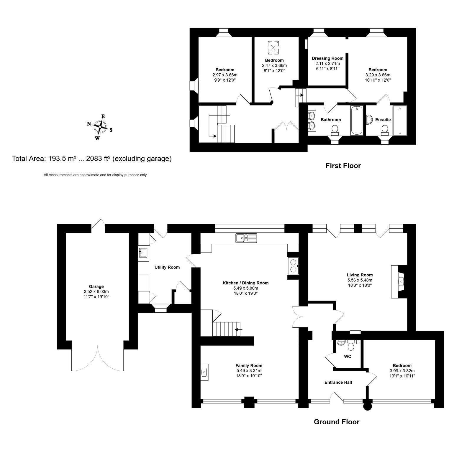
This excellent period barn conversion is situated down a quiet country lane within a rural setting comprising just a handful of other properties. Situated 1 mile from the village of Grittleton, The Old Granary is believed to date back to the 1700s as part of of Neeld Estate. The property is tastefully presented throughout offering superb family-sized accommodation whilst externally it has the great addition of a large garden plus a 0.84 acre paddock. 
 
The accommodation extends to over 2,000 sq.ft. arranged over two floors. At the heart of the ground floor there is a wonderful open plan kitchen/dining/family room. The traditional timber fitted kitchen features an Aga while the family room has a cosy wood-burning stove. The separate living room boasts charming arched windows and doors spilling out the garden, alongside a matching fireplace. Adjoining the kitchen is a useful utility/boot room with rear access. There is a downstairs double bedroom whilst upstairs there are three further bedrooms. The principal bedroom is accompanied by both a dressing room and en-suite. The family bathroom has been recently updated. 
 
The Old Granary is set behind natural stone walling and timber gates opening to a large parking forecourt complete with an attached garage. The rear garden is a fantastic feature of the property laid mostly to lawn with an orchard at the foot and a seating area overlooking a pond. A private path leads directly from the garden to the paddock. There is also the benefit from a vehicular right of way into the paddock. The paddock suits a range of needs perfect for a smallholder seeking the good life. 
 
In February 2024, planning permission was granted to create a first floor extension over the garage adding another bedroom, dressing room and en-suite. (Planning reference: PL/2023/08573)

Situation


The property is rurally located at East Foscote located 1 mile outside of the popular village of Grittleton. Grittleton is a delightful North Wiltshire village with amenities including The Neeld Arms public house, Church, tennis and cricket clubs whilst the neighbouring larger village of Yatton Keynell has a post office/store, doctors surgery, and provides Outstanding Ofsted rated Primary School, By Brook Valley. Both Malmesbury and Chippenham are within a 10-minute drive and have a comprehensive range of facilities plus secondary schooling. The cultural cities of Bath and Bristol are about 25 minutes by car whilst for those needing to travel further afield, there are frequent inter-city train services at Chippenham and the M4 (Junction 18) is about 5 minutes' drive away providing access to London, the south and the Midlands.

Additional Information


The property is Freehold with oil-fired central heating, private drainage, mains water and electricity.  Broadband is available and there is good mobile phone coverage with some limitations. Information taken from the Ofcom mobile and broadband checker, please see the website for more information. Wiltshire Council Tax Band G. 

Important Information

  • This is a Freehold property.
  • This Council Tax band for this property is: G

Property Ref: 2775_1030989

Share:

Similar Properties

Sevington, Near Grittleton

3 Bedroom Detached House | £1,100,000

Set within beautiful gardens extending to about 0.8acre, an exceptional detached barn conversion offering around 2,190 s...

Cross Hayes Lane, Malmesbury

5 Bedroom Terraced House | £1,100,000

This intriguing Grade II listed period house is wholly unique with awe-inspiring architecture blending old and new. Vers...

Crudwell, near Malmesbury

4 Bedroom Detached House | £1,025,000

This beautiful Grade II Listed detached house boasts magnificent grounds and gardens of 1.44 acres plus outbuildings inc...

Easton Town, Sherston

4 Bedroom Detached House | Guide Price £1,125,000

A substantial detached 4 bedroom period house with a self-contained annexe and a large garden, situated on the edge of t...

Foundry Road, Malmesbury

6 Bedroom Detached House | £1,150,000

An impressive, unique detached house quietly positioned in a tucked away location close to the centre of Malmesbury.

West Foscote, Grittleton

4 Bedroom Barn Conversion | £1,175,000

Rurally located within a unique small collection of former period farm buildings, this beautiful Grade II Listed barn co...

James Pyle & Co (Sherston)

Swan Barton, Sherston, Wiltshire, SN16 0LJ

01666 840886

How much is your home worth?

Use our short form to request a valuation of your property.

Request a Valuation

Mortgage Calculator

Amount Borrowed: £
Total Amount Repayable: £
Total Monthly Payment: £
©2025 The Guild of Property Professionals. All rights reserved. Terms and Conditions | Privacy Policy | Cookie Policy | Complaints Policy | Members Login
The Guild of Property Professionals Trading Address: 121 Park Lane, London W1K 7AG. GPEA Limited. Registered in England & Wales.  Company No: 02819824.  Registered Office Address: 2 St. Stephen's Court, St. Stephen's Road, Bournemouth, Dorset, England, BH2 6LA.  VAT Registration No: 576 8795 61
Book a Property Valuation Update Cookies Preferences