Development Plot adjacent to Forest Lodge

Guide Price
£500,000

Land for sale in Cinderford

  • Plot with permission for seven homes
  • Five three-bed homes
  • Two two-bed homes
  • To be a mixture of semi-detached and terraced properties
  • Within Royal Forest of Dean
  • Woodland views
  • Near well-appointed town
  • AP0045/24/REF

This development plot, measuring approximately half an acre, has planning permission for seven houses, each with its own garden and off-road parking. There would be two pairs of semi-detached properties and a terrace of three homes, all set within a well-appointed village in the Forest of Dean.

Location

Ruspidge lies on the eastern fringe of the Royal Forest of Dean - a place of timeless beauty and untamed nature. These woodlands offer 24,000 acres of magnificent countryside, award-winning picnic sites, family cycle routes and gorgeous walks, as well as a huge selection of outdoor pursuits.

The village of Ruspidge offers a convenience store, a recreation ground, and a public house - The New Inn. The nearby town of Cinderford, approximately one mile away, gives a wealth of amenities such as three primary schools, a high school, a college, plus various supermarkets, shops, public houses, leisure facilities and the Forest of Dean Community Hospital.

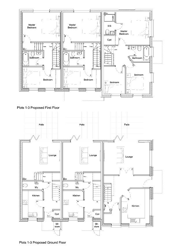
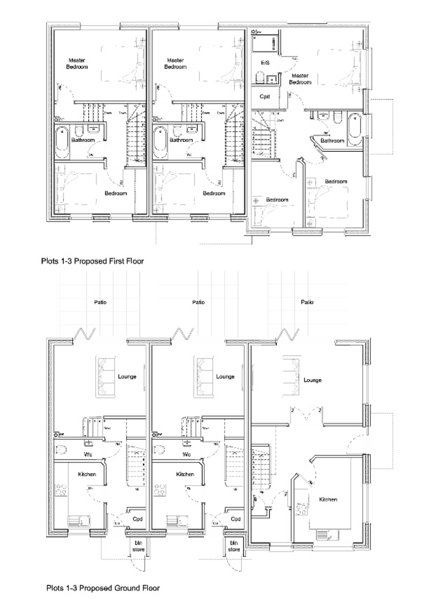
The Plans at a Glance

The properties would be a mixture of 2x two-bedroom homes and 5x three-bedroom homes, all of which would boast delightful views over the surrounding wooded hills.

Presently, the plot is surrounded by a large stone wall, affording privacy and securty. Once constructed, the semi-detached properties would all have three-bedrooms and be set on three levels; the ground floor would accommodate an entrance hall, cloakroom, kitchen and the master bedroom with an en-suite shower room. The lower ground floor would feature a sitting room. The top floor would house two additional double bedrooms and a family bathroom.

The terraced properties would be arranged over two storeys; two would be two-bedroom properties, and the largest end-terrace home would have three bedrooms. Of the two-bedroom houses, each would have a ground floor complete with a reception hall, a cloakroom, a kitchen and a sitting room. The top floor would include two double bedrooms plus a family bathroom. The three-bedroom property, meanwhile, would have a ground floor with a reception hall, a built-in cupboard, a kitchen and a sitting room. The top floor would feature a master bedroom with an en-suite shower room, two additional double bedrooms, and a family bathroom.

All homes would have access to a mains gas, electricity, water and drainage supply. There would also be fibre broadband (FTTC) and telephone line availability. There would, however, be the potential to upgrade the internet to a high-speed fibre direct to the premises (FTTP) service, as this has been done at the neighbouring property, Forest Lodge.

The entrance into the development would be from Buckshaft Road, but there would be another private road leading to the three rear properties.

The Planning Inspectorate granted permission for the development (AP0045/24/REF) on August 27 2025, upon an appeal.

 

Property Ref: 101453002844

Share:

Similar Properties

Ross-on-Wye, Small Cul-de-Sac Eco Home

4 Bedroom Detached House | £499,500

This newly constructed eco-home has been finished to exacting standards and boasts an open-plan dining kitchen, a separa...

Ross-on-Wye, Small Cul-de-Sac, Great Value Eco Home

4 Bedroom Detached House | £475,000

Move in ready, chain free and with integrated appliances and finished carpeted rooms etc, This newly constructed eco-hom...

Sellack, Detached House, Country Setting

3 Bedroom Detached House | Offers Over £450,000

Views of uninterrupted countryside stretch in every direction from this charming detached Edwardian country home, where...

Hoarwithy, Cottage & Small Paddock

3 Bedroom Detached House | £550,000

Tranquil and idyllic countryside surround this delightful detached, three-bedroom cottage which is set within the Wye Va...

Goodrich, Deceptively Spacious Period Home

3 Bedroom Detached House | Offers Over £550,000

This charming stone-built country home is set within the heart of a highly sought-after village which lies at the base o...

Ashfield Crescent, Detached House Corner Plot

4 Bedroom Detached House | Guide Price £550,000

This generously proportioned four-bedroom home enjoys a prime location, just under half a mile from the heart of a pictu...

Hamilton Stiller (Ross on Wye)

Ross on Wye, Herefordshire, HR9 7DY

01989 563 525

How much is your home worth?

Use our short form to request a valuation of your property.

Request a Valuation

Mortgage Calculator

Amount Borrowed: £
Total Amount Repayable: £
Total Monthly Payment: £
©2026 The Guild of Property Professionals. All rights reserved. Terms and Conditions | Privacy Policy | Cookie Policy | Complaints Policy | Members Login
The Guild of Property Professionals Trading Address: 121 Park Lane, London W1K 7AG. GPEA Limited. Registered in England & Wales.  Company No: 02819824.  Registered Office Address: 2 St. Stephen's Court, St. Stephen's Road, Bournemouth, Dorset, England, BH2 6LA.  VAT Registration No: 576 8795 61
Book a Property Valuation Update Cookies Preferences