Four bedroom detached cottage

Guide Price
£1,250,000

4 Bedroom Detached House for sale in Colchester

3 4 2
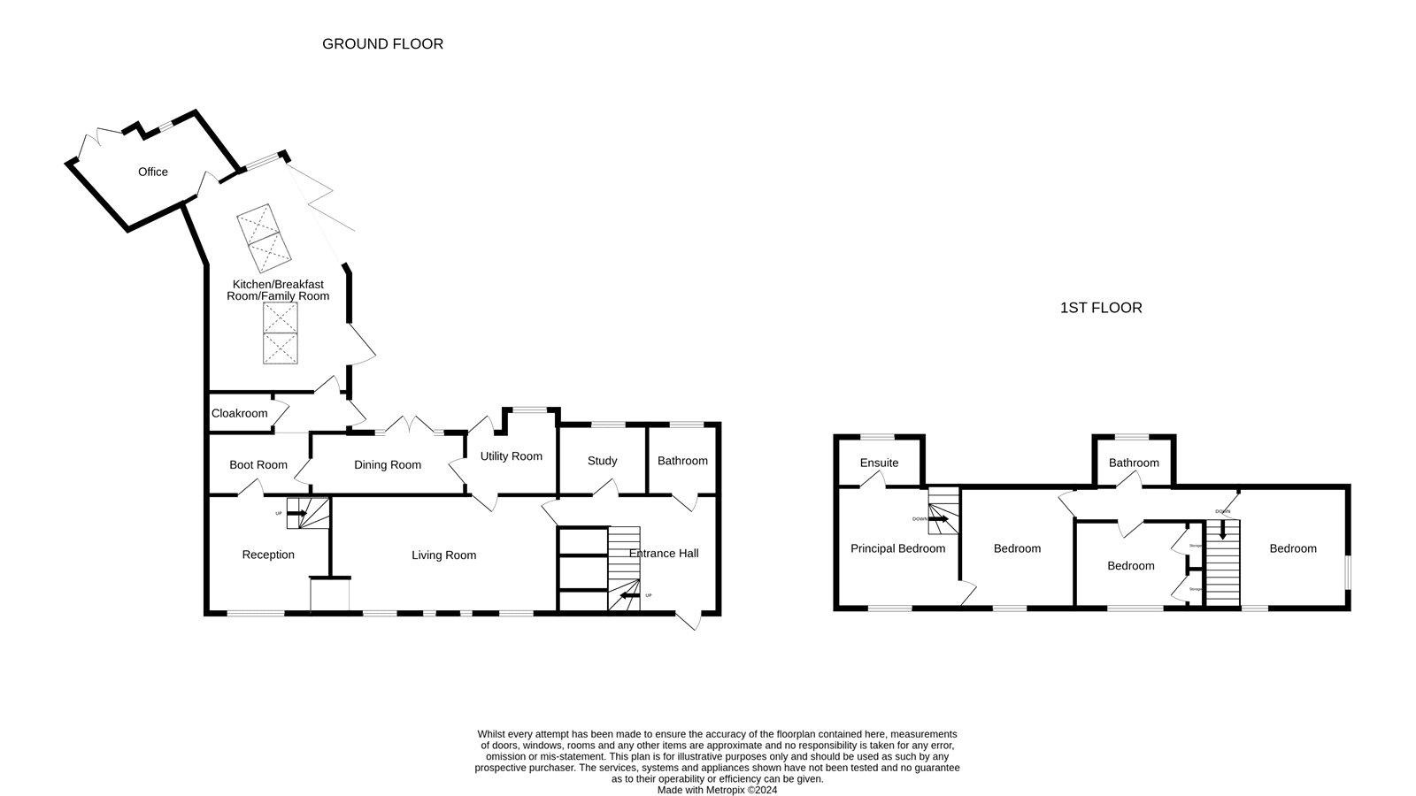
  • Grade II listed C18 cottage Contemporary extension Three reception rooms Kitchen and utility room Boot room and WC Study Four bedrooms Cartlodge Plot of 0.25 acres (STS)

Commanding an outstanding position in the very heart of Dedham, this Grade II listed property masterfully combines historical elegance with contemporary design, creating a captivating family residence. Set on a quarter acre plot (STS), this family home features a striking modern extension that enhances its original centuries-old architecture, perfectly blending traditional charm with modern-day amenities. Upon entering, the property reveals a welcoming entrance hall that leads to a series of well-proportioned reception rooms, with windows strategically placed to maximize both views and light.

The sitting room, characterized by its exposed wooden timbers and brick fireplaces, offers a tranquil retreat. Additionally, for those who enjoy formal dining, a dedicated dining room, replete with further exposed brickwork and timbers, offers space to enjoy the company of family and friends.

Central to the home's charm is the expansive kitchen, breakfast, and family room. This modern extension, crafted with a contemporary aesthetic, boasts vaulted ceilings accented by striking wooden trusses, a roof lantern and large glass doors that offer panoramic views of the enchanting garden. The harmonious juxtaposition between old and new is evident in this room above all others in this architecturally alluring house.

The kitchen itself offers sleek cabinetry, enhanced by a substantial island, providing a luxurious space for culinary exploration and social gatherings. This area serves as the vibrant heart of the home, where daily activities and family interactions merge effortlessly with style and functionality. An area accommodating casual dining / breakfast leads effortlessly into a family area which is enhanced by an inset contemporary wood burner which provides both additional warmth and ambience during the cooler months.

The ground floor also accommodates further living spaces that provide practical solutions for everyday living, including a playroom, study and garden room.

On the first floor, the principal bedroom, with its own access from the ground floor, benefits from an ensuite bathroom, and is a haven of relaxation, offering privacy and comfort.

Three further characterful bedrooms share use of the family bathroom, with each space maintaining this home's blend of heritage and modernity.

The exterior space of this property is spread across a generous plot, with the garden serving as a private retreat that complements the architectural heritage and modern additions of the home, featuring lush lawns bordered by mature trees that provide both privacy and a serene natural environment. The garden is thoughtfully designed to accommodate both relaxation and recreation, making it an ideal space for family activities and quiet contemplation. A charming path meanders through the garden, leading to various focal points including a secluded seating area ideal for outdoor dining or simply enjoying the peaceful surroundings.

Important Information

  • This is a Freehold property.
  • This Council Tax band for this property is: F
  • EPC Rating is D

Property Ref: DDH240025

Share:

Similar Properties

Four bedroom detached farmhouse

4 Bedroom Detached House | Guide Price £1,250,000

Situated in the sought-after village of Copford, near Colchester, this distinguished Grade II listed farmhouse occupies...

Four bedroom detached house

4 Bedroom Detached House | Guide Price £1,100,000

Set within approximately 1.97 acres (STS) of wraparound grounds, this beautifully presented country home enjoys a peacef...

Five bedroomed house

5 Bedroom Detached House | Guide Price £890,000

Rare opportunity to acquire a substantial property comprising a five bedroomed family home and an established kennels an...

Four bedroom detached house

4 Bedroom Detached House | Guide Price £1,500,000

Situated on the outskirts of Dedham and within the Dedham Vale National Landscape, this outstanding home offers sublime...

Six bedroom house

6 Bedroom Detached House | Guide Price £1,950,000

Enjoying a glorious location in the heart of Dedham, this beautifully appointed home offers exceptional living space in...

Kingsleigh Estate Agents (Dedham)

Dedham, Essex, CO7 6DE

01206 940123

How much is your home worth?

Use our short form to request a valuation of your property.

Request a Valuation

Mortgage Calculator

Amount Borrowed: £
Total Amount Repayable: £
Total Monthly Payment: £
©2026 The Guild of Property Professionals. All rights reserved. Terms and Conditions | Privacy Policy | Cookie Policy | Complaints Policy | Members Login
The Guild of Property Professionals Trading Address: 121 Park Lane, London W1K 7AG. GPEA Limited. Registered in England & Wales.  Company No: 02819824.  Registered Office Address: 2 St. Stephen's Court, St. Stephen's Road, Bournemouth, Dorset, England, BH2 6LA.  VAT Registration No: 576 8795 61
Book a Property Valuation Update Cookies Preferences