Old Highway, Colwyn Bay

Offers Over
£600,000

3 Bedroom House for sale in Colwyn Bay

3
  • Detached Family Home in Elevated Location
  • Stunning Panoramic Mountain Hill Views
  • Gardens & Grounds Extending to 5 Acres or thereabouts
  • Excellent Potential for Re-Development
  • 3 Double Bedrooms, Master En Suite Shower
  • 2 Receptions, Fitted Kitchen Breakfast
  • Utility Room, Cloakroom & Bathroom
  • Gas C.H, Double Glazing, Freehold
  • Council Tax Band E
  • Energy Rating D66 Potential C78.

Nestled in the picturesque area of Old Highway, Colwyn Bay, this DETACHED 3 BEDROOM family home offers a unique opportunity for those seeking both space and potential. Set within approximately five acres of beautifully maintained gardens and grounds, this property is perfect for families who appreciate the great outdoors and desire a tranquil lifestyle. The home boasts an excellent elevated position, providing stunning panoramic views of the Conwy Mountains, the distant hills to the Little Orme in Penrhyn Bay. These breathtaking vistas create a serene backdrop for everyday living, making it an ideal retreat from the hustle and bustle of city life. With ample room for expansion, this property presents excellent potential for those looking to extend the main dwelling or explore redevelopment opportunities. The generous grounds offer a blank canvas for your imagination, whether you envision a larger family home or additional outdoor amenities. Conveniently located, the property is just a short drive from Mochdre village, where you can find local shops and amenities. Additionally, easy access to the A55 ensures that you are well-connected to the surrounding areas, including the town centres of Colwyn Bay and Llandudno. This delightful family home is a rare find, combining spacious living with the beauty of nature and the potential for future development. It is an opportunity not to be missed for those looking to create their dream home in a stunning location. Council Tax Band E. Freehold. EPC Rating D66 Potential C78. Ref CB7834

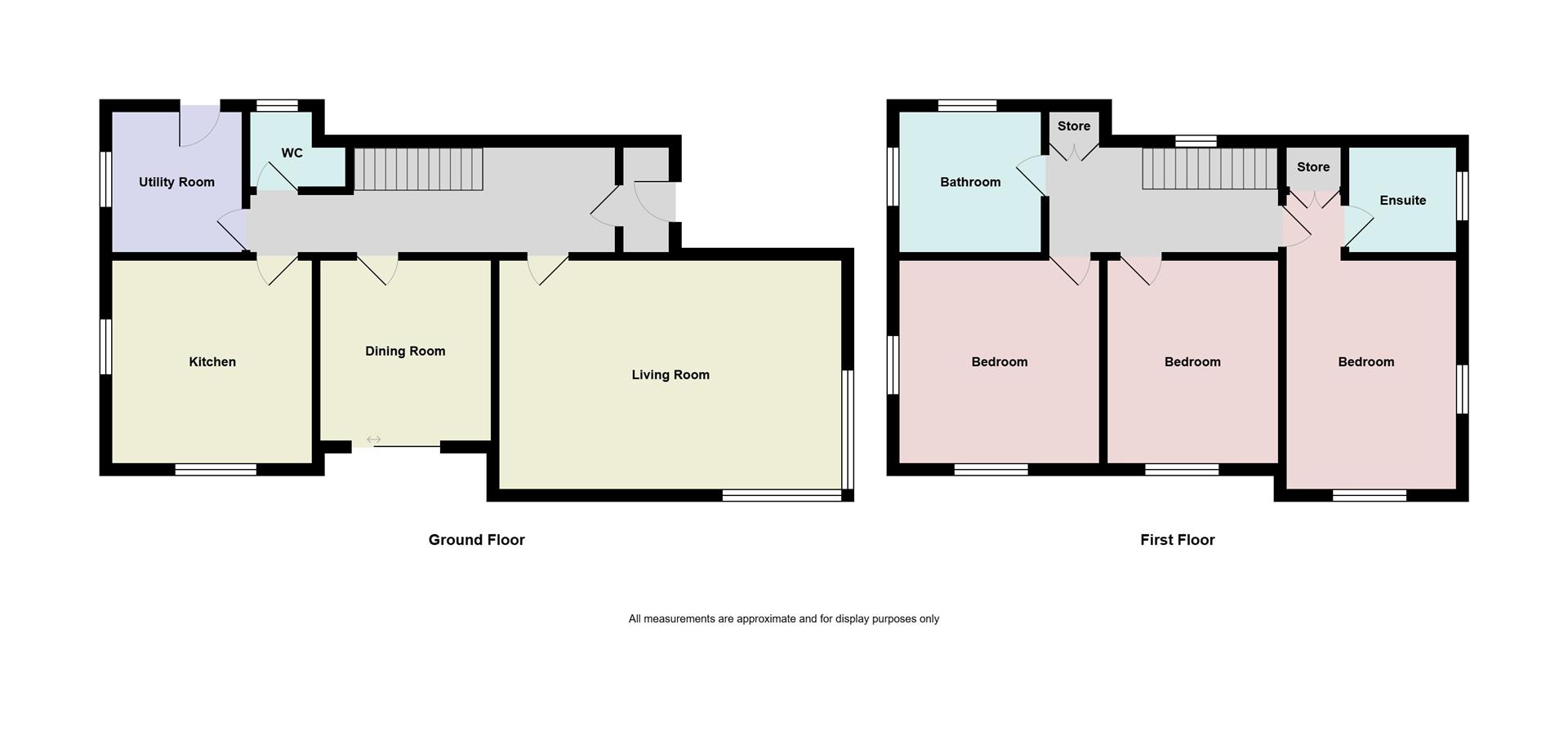
Entrance Porch - Glazed inner door

Long Hallway - 6.20m x 1.93m (20'4 x 6'4) - Laminate flooring, central heating radiator

Cloakroom - W.C, wash hand basin, double glazed

Lounge - 6.32m x 4.27m (20'9 x 14) - Pine fireplace surround, open coal fire and tiled inset, 3 double glazed windows overlooking the mountain hill views, coved ceilings, 2 central heating radiators, glazed double doors to

Dining Room - 3.58m x 3.12m (11'9 x 10'3) - Central heating radiator, coved ceilings, double glazed patio doors, mountain , hill views

Kitchen Breakfast Room - 3.91m x 3.58m (12'10 x 11'9) - Maple style base cupboards and drawers with bronze style work top surfaces, 2 double glazed windows, tiled floor, stainless steel sink unit, cooker extractor hood, 8 ring gas Countrychef range, tiled surround, wall cupboards, central heating radiator

Utility Room - 2.59m x 2.57m (8'6 x 8'5) - Double glazed window, plumbing for washing machine, Worcester gas central heating boiler

Landing - Stairway off the Hall to First Floor and Landing, double door linen cupboard, double glazed, central heating radiator

Master Bedroom - 4.3m x 3.30m (14'1" x 10'9") - Central heating radiator, 2 double glazed windows overlooking the mountain and hill views, 2 double door wardrobes, 2 single glazed wardrobes, top cupboards and dressing table

En Suite Shower Room - 2.08m x 1.9m (6'9" x 6'2") - Shower cubicle and unit, w.c, wash hand basin, w.c, half tiled walls, heated towel radiator, double door wardrobe cupboard

Bedroom 2 - 3.91m x 3.6m (12'9" x 11'9") - Central heating radiator, 2 double glazed window overlooking the mountain and hill views

Bedroom 3 - 3.91m x 3.10m (12'10 x 10'2) - Double glazed window, central heating radiator, fine mountain and hill views

Bathroom - 2.57m x 2.54m (8'5 x 8'4) - Panel bath, shower taps and screen, pedestal wash hand basin, w.c, mainly tiled walls, 2 double glazed windows, central heating radiator

Outside - The property is approached by a long driveway off The Old Highway with plenty of outside parking space, room for garaging and extending subject to planning. Long mature grounds to the side of the house extending to woodland and stream, natural shrubbery and ferns, all in all extending to approximately 5 acres.

Agents Note - Viewing Arrangements By appointment with Sterling Estate Agents on 01492-534477 e mail sales@sterlingestates.co.uk and web site www.sterlingestates.co.uk

Market Appraisal; Should you be thinking of a move and would like a market appraisal of your property then contact our office on 01492-534477 or by e mail on sales@sterlingestates.co.uk to make an appointment for one of our Valuers to call. This is entirely without obligation. Why not search the many homes we have for sale on our web sites - www.sterlingestates.co.uk or alternatively www.guildproperty.co.uk These sites could well find a buyer for your own home.

Money Laundering Regulations - In order to comply with anti-money laundering regulations, Sterling Estate Agents require all buyers to provide us with proof of identity and proof of current address. The following documents must be presented in all cases: Photographic ID (for example, current passport and/or driving licence), Proof of Address (for example, bank statement or utility bill issued within the previous three months). On the submission of an offer proof of funds is required.

Property Ref: 28786_33615570

Share:

Similar Properties

Coed Pella Road, Colwyn Bay

7 Bedroom Detached House | £595,000

This impressive DETACHED RESIDENCE of exceptional proportions boasts immense character and a rich history, dating back t...

Ffordd Groesffordd, Glan Conwy, Colwyn Bay

5 Bedroom Detached House | £595,000

On the outskirts of the charming village of Glan Conwy, this splendid DETACHED HOUSE, which was constructed back in the...

Colwyn Avenue, Rhos On Sea, Colwyn Bay

8 Bedroom Guest House | £595,000

Occupying a superb position just yards from the Marine Drive promenade and beach, Beachmount Holiday Apartments is a sub...

Copthorn Road, Colwyn Bay

4 Bedroom Detached House | Guide Price £655,000

In a market where demand for quality homes is high, this superb DETACHED 4 BEDROOM EXECUTIVE RESIDENCE is a welcome addi...

Cherry Tree Lane, Colwyn Bay

5 Bedroom Detached House | Guide Price £695,000

Of immense character and appeal, a stunning DETACHED 5 BEDROOM architecturally designed residence of quality set in matu...

Queens Drive, Colwyn Bay

5 Bedroom Detached House | Guide Price £695,000

A truly outstanding DETACHEED 5 BEDROOM FAMILY RESIDENCE of exceptional style set in mature grounds in one of the fashio...

Sterling Estate Agents & Valuers (Colwyn Bay) (Colwyn Bay)

Colwyn Bay, North Wales, LL29 7AA

01492 534477

How much is your home worth?

Use our short form to request a valuation of your property.

Request a Valuation

Mortgage Calculator

Amount Borrowed: £
Total Amount Repayable: £
Total Monthly Payment: £
©2025 The Guild of Property Professionals. All rights reserved. Terms and Conditions | Privacy Policy | Cookie Policy | Complaints Policy | Members Login
The Guild of Property Professionals Trading Address: 121 Park Lane, London W1K 7AG. GPEA Limited. Registered in England & Wales.  Company No: 02819824.  Registered Office Address: 2 St. Stephen's Court, St. Stephen's Road, Bournemouth, Dorset, England, BH2 6LA.  VAT Registration No: 576 8795 61
Book a Property Valuation Update Cookies Preferences