Carnkie, Charming, spacious cottage in peaceful location

Guide Price
£535,000

4 Bedroom Detached House for sale in Cornwall

1 4 1
  • SEMI-DETACHED COTTAGE IN RURAL LOCATION
  • COSY LIVING ROOM WITH WOOD BURNER + BRIGHT CONSERVATORY
  • FOUR BEDROOMS WITH SPACIOUS, FLEXIBLE LIVING LAYOUT
  • MASTER SUITE WITH EN-SUITE, DRESSING ROOM & PRIVATE BALCONY
  • GARDENS WITH POND, MATURE PLANTS & SUMMER HOUSE
  • 33' WORKSHOP + DOUBLE GARAGE FOR STORAGE OR PROJECTS
  • AMPLE PARKING
  • EPC- 40- E
  • COUNCIL TAX BAND- D
  • FREEHOLD TENURE

Situated in the rural hamlet of Carnkie, this semi detached character cottage presents a unique opportunity to acquire a home that combines traditional charm with practical living spaces. The property offers four bedrooms, a single bathroom, and a reception room, all set within generous private gardens. This is a home designed for those seeking a peaceful Cornish lifestyle, without compromising on convenience or space.
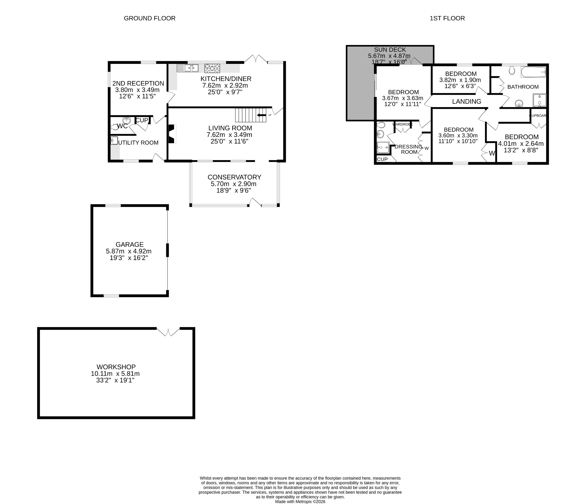
The ground floor accommodation is thoughtfully laid out, beginning with a welcoming conservatory, living room with wood burner and a kitchen/dining room. Practicality is further enhanced by a utility room and a convenient cloakroom as well as an extra reception room.
Ascending to the first floor, you will find four well proportioned bedrooms. The master bedroom is a particular highlight, featuring an en-suite shower room and a dressing room. This master suite also benefits from doors opening onto a decked balcony, an ideal spot for enjoying the morning sun or a quiet evening. A further first floor bathroom serves the remaining bedrooms. The property also includes a substantial 33' workshop and a double garage, offering significant potential for hobbies, storage, or further development, subject to any necessary planning permissions or consents.
The outdoor space is a standout feature of this cottage. The large gardens offer a good degree of privacy and include a pond, mature shrubs, trees and a variety of plants, adding colour and interest throughout the seasons. A decked seating area provides the perfect setting for outdoor dining and socialising, while a charming summer house offers an additional retreat within the garden. Ample parking is available, a practical consideration for any family home.
This property is ideally suited for buyers seeking a characterful home in a rural setting, offering both space and privacy. Its flexible living arrangements and extensive outdoor areas make it an appealing choice for families or those desiring room for hobbies and outdoor pursuits.
Location – The Village of Carnkie is located approximatley 8 miles from Helston and approximately 8 miles from the harbour town of Falmouth. The nearby village offers a highly regarded public house. A regular bus service runs through the village and Halwin Primary School is approximately half a mile away with Helston providing further primary and secondary schooling together with many other amenities including Cinema, Supermarkets and Leisure Centre.
Accommodation
ConservatoryLiving RoomKitchen/Dining RoomReception RoomUtility RoomCloakroomMaster Bedroom with En-Suite Shower Room & Dressing RoomBedroom TwoBedroom ThreeBedroom FourFamily Bathroom
Double Garage - With up and over doors, power and light connected.
Parking – Ample on the drive.
Outside – Outside, the property truly excels with its generous outdoor space. The expansive gardens feature a pond, mature trees, shrubs, and a variety of seasonal planting, creating a colourful and tranquil setting throughout the year. A decked seating area is ideal for outdoor dining and entertaining, while a charming summer house provides a peaceful retreat. In addition, the property benefits from a substantial 33-foot workshop and a double garage, offering excellent potential for hobbies, storage, or further development (subject to the necessary permissions), along with ample parking for convenience.
Services – Mains water and electricity. Private drainage. LPG Heating.
Rights of Way – Our client has advised us that they have a right of away through the garden of the neighbouring property.
Planning Information – Our client has advised that the planning application under reference number PA24/01752 is currently under appeal.
Council Tax Band – D
What3Words – ///loses.convinced.sketch
Anti Money Laundering Regulations – Purchasers- It is a legal requirement that we receive verified ID from all buyers before a sale canbe instructed. We will inform you of the process once your offer has been accepted.
Proof of Finances- Before agreeing a sale, we will require proof of your financial ability to purchase. We will inform you of what we require prior to agreeing a sale.
Broadband & Mobile Phone Coverage- To check the broadband coverage for this property please visit https://www.openreach.com/fibre-broadband. To check mobile phone coverage please visit https://checker.ofcom.org.uk/

Important Information

  • This is a Freehold property.
  • This Council Tax band for this property is: D

Property Ref: 499926

Share:

Similar Properties

Modern Home Near Village Centre, Porthleven

4 Bedroom Detached House | Guide Price £535,000

This modern four bedroom reversed level house has been cleverly designed to maximise space and views.

Beautifully presented character cottage, Breage

3 Bedroom Cottage | Guide Price £525,000

Nestled in the charming village of Breage, this beautifully presented detached character cottage offers a delightful ble...

The Lizard, Versatile bungalow with no chain

3 Bedroom Detached Bungalow | Guide Price £525,000

Located in the heart of one of Cornwall’s most popular coastal villages, this versatile bungalow offers spacious and fle...

Nancledra, Well proportioned family home

3 Bedroom Detached House | Guide Price £550,000

Situated on a popular and quiet cul de sac and set within an Area of Outstanding Natural Beauty and a Dark Sky Park, thi...

Light and spacious bungalow, Connor Downs

4 Bedroom Detached Bungalow | Guide Price £555,000

Located in the area of Greenbank, Connor Downs, this delightful four bedroom detached bungalow offers a perfect blend of...

Gorgeous property with two studios, Manaccan

4 Bedroom Detached House | Guide Price £568,000

Nestled in idyllic countryside, this enchanting traditional cottage exudes charm and offers a blend of characterful feat...

The Mather Partnership (Helston)

Helston, Cornwall, TR13 8AA

01326 565016

How much is your home worth?

Use our short form to request a valuation of your property.

Request a Valuation

Mortgage Calculator

Amount Borrowed: £
Total Amount Repayable: £
Total Monthly Payment: £
©2026 The Guild of Property Professionals. All rights reserved. Terms and Conditions | Privacy Policy | Cookie Policy | Complaints Policy | Members Login
The Guild of Property Professionals Trading Address: 121 Park Lane, London W1K 7AG. GPEA Limited. Registered in England & Wales.  Company No: 02819824.  Registered Office Address: 2 St. Stephen's Court, St. Stephen's Road, Bournemouth, Dorset, England, BH2 6LA.  VAT Registration No: 576 8795 61
Book a Property Valuation Update Cookies Preferences