Site Adjacent @, 1 Derryola Bridge Road, Aghalee, Craigavon

£124,950

Land for sale in Craigavon

We`re excited to bring you a rare and final opportunity to secure the last remaining site in this beautiful, mature countryside setting just outside Aghalee only minutes from Lough Neagh and the A26 commuter link.


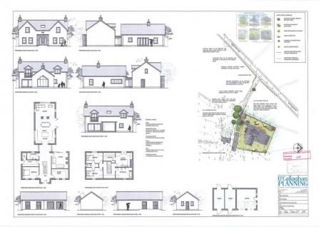
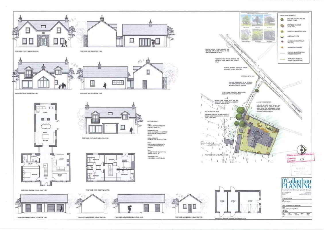
Set on approx. 0.4 acres, and with Full Planning Permission already granted, this site is ready for your vision to come to life.
Plans are in place for a fabulous four-bedroom detached home, designed with modern living in mind:

Two generous reception rooms

Open plan kitchen, living and dining area

Dedicated study/home office

Ground floor utility and shower room/WC

Nestled among mature trees for privacy and charm

Perfect for anyone looking to self-build in a peaceful, sought-after location, this setting offers the best of both worlds countryside tranquillity with great connectivity.


One site has already sold don`t miss your chance to secure the last one!

Location: Derryola Bridge Road, Aghalee

Directions: Travelling north along Derryola Bridge Road with Lough Neagh on your left, the site is set back from the road just before the junction with Derryola Island Lane.

Enjoying road frontage and with the benefit of Full Planning Approval (Application LA08/2019/0803/F for `Erection of 1 no. replacement dwelling with the retention of the original dwelling as a domestic store` and Application LA08/2022/1127/F), this most attractive setting will appeal to a wide range of purchasers seeking an opportunity to develop a new home in a highly sought after `out-of-town` address.

Notice
Please note we have not tested any apparatus, fixtures, fittings, or services. Interested parties must undertake their own investigation into the working order of these items. All measurements are approximate and photographs provided for guidance only.

Property Ref: 736298_1022520

Share:

Similar Properties

30 Antrim Road, Lurgan, Craigavon

2 Bedroom Semi-Detached House | Offers in excess of £124,950

5 Tarry Drive, Lurgan, Craigavon

3 Bedroom Bungalow | Offers in excess of £122,500

6 Pearson Terrace, Lurgan, Craigavon

2 Bedroom Semi-Detached House | £119,950

82 William Street, Lurgan, Craigavon

Not Specified | Offers in excess of £130,000

57 Allenhill Park, Lurgan, Craigavon

3 Bedroom Semi-Detached House | Offers in excess of £135,000

19 Hillcrest Manor, Craigavon

3 Bedroom Semi-Detached House | £140,000

Kingham Property Specialists (Lurgan)

41 North Street, Lurgan, County Armagh, BT67 9AG

028 3834 8383

How much is your home worth?

Use our short form to request a valuation of your property.

Request a Valuation

Mortgage Calculator

Amount Borrowed: £
Total Amount Repayable: £
Total Monthly Payment: £
©2025 The Guild of Property Professionals. All rights reserved. Terms and Conditions | Privacy Policy | Cookie Policy | Complaints Policy | Members Login
The Guild of Property Professionals Trading Address: 121 Park Lane, London W1K 7AG. GPEA Limited. Registered in England & Wales.  Company No: 02819824.  Registered Office Address: 2 St. Stephen's Court, St. Stephen's Road, Bournemouth, Dorset, England, BH2 6LA.  VAT Registration No: 576 8795 61
Book a Property Valuation Update Cookies Preferences