Newcastle Road, Madeley, CW3

Offers in region of
£200,000
SSTC
This property listing is now SSTC

2 Bedroom Terraced House for sale in Crewe

2 2 1
  • A beautiful terraced home in Madeley offering stylish and practical living throughout.
  • Two double bedrooms and a contemporary bathroom allows plenty of space to relax and unwind.
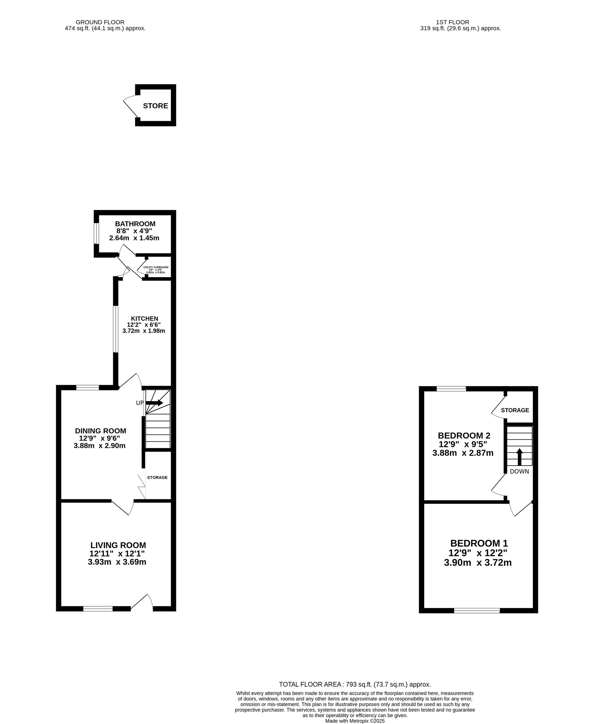
  • A living room, dining room and kitchen keeps thing comfortable and convenient.
  • Outside, enjoy a generously sized garden with both lawn and patio, along with a rear driveway accessed via Mill Lane.
  • Located in Madeley, enjoy excellent amenities, schools and travel links close by.

Blooming with charm and style, this two-bedroom terraced home is a true beauty, blending timeless period character with fresh, contemporary flair. Step inside and you’ll soon see why this might just be our favourite pick of the bunch!

Through the front door, a welcoming living room flows seamlessly into a characterful dining area, both blossoming with elegant wood floors, stylish features and modern accents. Perfect for curling up with a book or entertaining guests, these versatile spaces are designed to make life flourish. The kitchen is a real show-stopper, with granite countertops, ample storage and a bright, functional layout to make any budding chef’s heart bloom. Just off this space, the ground-floor bathroom really makes a statement with a walk-in shower, chic tiling and a vertical botanical feature wall that adds a touch of tranquility. Upstairs, you’ll find two generously sized double bedrooms. Both are bathed in natural light thanks to large windows, with neutral décor and plush carpeting creating a petal-soft, restful retreat. The second bedroom even comes with built-in storage, the perfect little bonus!

Step outside to discover a south-east facing garden in full bloom, boasting a lush lawn, mature shrubs and patio spaces perfect for alfresco dining or simply soaking up the sunshine. Beyond the garden lies a gravel driveway, accessed via Mill Lane, with power ready for an EV charger , adding a modern touch that’s future-ready. Set in the heart of Madeley, Rosedene offers not just kerb appeal but a bouquet of nearby amenities, schools and travel links.

Life’s better when it’s in full bloom, come and see Rosedene for yourself. Call today to arrange your viewing and pick this rose while you can!

Important Information

  • This is a Freehold property.
  • This Council Tax band for this property is: B

Property Ref: ca35966c-93aa-4e3a-8db6-b9504824293f

Share:

Similar Properties

Bishops Court, Eccleshall, ST21

3 Bedroom Terraced House | Offers Over £200,000

Calling all renovators! Bishop’s Court, an end terrace with 3 beds, needs your magic touch. The spacious living & dining...

Kings Avenue, Market Drayton, TF9

4 Bedroom Terraced House | Offers in excess of £200,000

Regal family home with great potential in Market Drayton. Ample parking, spacious living areas, potential for contempora...

Hollies Brook Close, Gnosall, ST20

2 Bedroom Semi-Detached House | £180,000

Blank canvas home ready for your creative touch! Living room, kitchen, 2 bedrooms, family bathroom, rear garden, drivewa...

Hollies Brook Close, Gnosall, ST20

2 Bedroom Semi-Detached House | £210,000

Like a blank canvas, this charming semi-detached home in Gnosall is ready for its next artist. With NO UPWARD CHAIN, it’...

Stafford Street, Market Drayton, TF9

1 Bedroom Apartment | Offers in region of £210,000

100% ownership, Charming 1-bed over 60's apt in Market Drayton. Tranquil setting with a social community & events. Loung...

Market Fields, Eccleshall, ST21

3 Bedroom End of Terrace House | £220,000

Charming 3-bed end terrace in Eccleshall. Entrance porch, spacious living area, open kitchen/diner, master with built-in...

James Du Pavey Estate Agents (Eccleshall)

Eccleshall, Staffordshire, ST21 6BH

01785 851886

How much is your home worth?

Use our short form to request a valuation of your property.

Request a Valuation

Mortgage Calculator

Amount Borrowed: £
Total Amount Repayable: £
Total Monthly Payment: £
©2025 The Guild of Property Professionals. All rights reserved. Terms and Conditions | Privacy Policy | Cookie Policy | Complaints Policy | Members Login
The Guild of Property Professionals Trading Address: 121 Park Lane, London W1K 7AG. GPEA Limited. Registered in England & Wales.  Company No: 02819824.  Registered Office Address: 2 St. Stephen's Court, St. Stephen's Road, Bournemouth, Dorset, England, BH2 6LA.  VAT Registration No: 576 8795 61
Book a Property Valuation Update Cookies Preferences