Oakfield Road, Croydon

£275,000
SSTC
This property listing is now SSTC

2 Bedroom End of Terrace House for sale in Croydon

1 2 1
  • Vacant
  • No Chain
  • 2 parking spaces
  • West Croydon transport links
  • Freehold house over 3 floors
  • Great first time buyer property
  • Great investment property
  • Sold with fridge/freezer, hob and oven
  • Ample storage
  • End of terrace

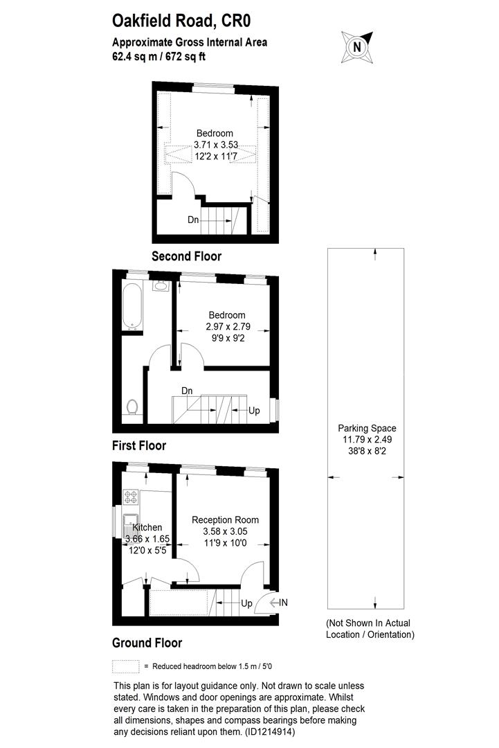
Nestled on the charming Oakfield Road in Croydon, this delightful end-terrace house offers a perfect blend of comfort and convenience. Spanning an impressive 603 square feet, this freehold property, converted in 1996, is an ideal choice for first-time buyers or investors.

The house features two well-proportioned bedrooms, providing ample space for relaxation and rest. The layout is thoughtfully designed, split over three floors, which enhances the sense of space and privacy. The ground floor boasts a welcoming reception room, perfect for entertaining guests or enjoying quiet evenings at home.

One of the standout features of this property is the rare parking availability for two vehicles, a true gem in the bustling area of West Croydon. This added convenience makes daily life easier, especially in a location where parking can often be a challenge.

The property is well-connected with excellent transportation links, making it easy to commute to central London and beyond. Whether you are a professional seeking quick access to the city or a family looking for a friendly neighbourhood, this house meets all your needs.

For the investor the rental price could be between £1,600 and £1,800 giving a 7% upwards yield.

In summary, this charming two-bedroom end-terrace house on Oakfield Road is a fantastic opportunity for those looking to settle in a vibrant area with great amenities and transport options. Don't miss your chance to make this lovely property your new home.

Property Ref: 653536_33986145

Share:

Similar Properties

Wisbeach Road, Croydon

Flat | £165,000

Nestled on Wisbeach Road in the vibrant area of Croydon, this charming purpose-built flat offers a delightful living spa...

Luna Road, Thornton Heath

4 Bedroom House | £2,300pcm

Newly refurbished 4 bedroom house with garage and large gardenCroydon Council Tax Band E £1692.00Deposit 5 weeks at £2,6...

Howard Road, London

3 Bedroom Terraced House | £2,150pcm

Nestled on Howard Road in London, this charming terraced house offers a delightful blend of modern living and family-fri...

Silverleigh Road, Thornton Heath

Commercial Property | £375,000

Commercial property with a unique opportunity for those seeking a versatile space in a vibrant community. Spanning an im...

Smitham Bottom Lane, Purley

5 Bedroom Detached House | Offers in excess of £990,000

Nestled in the desirable area of Smitham Bottom Lane, Purley, this stunning freehold detached house offers a perfect ble...

Drummonds Property (Thornton Heath)

Thornton Heath, Surrey, CR7 8RY

0208 138 1990

How much is your home worth?

Use our short form to request a valuation of your property.

Request a Valuation

Mortgage Calculator

Amount Borrowed: £
Total Amount Repayable: £
Total Monthly Payment: £
©2025 The Guild of Property Professionals. All rights reserved. Terms and Conditions | Privacy Policy | Cookie Policy | Complaints Policy | Members Login
The Guild of Property Professionals Trading Address: 121 Park Lane, London W1K 7AG. GPEA Limited. Registered in England & Wales.  Company No: 02819824.  Registered Office Address: 2 St. Stephen's Court, St. Stephen's Road, Bournemouth, Dorset, England, BH2 6LA.  VAT Registration No: 576 8795 61
Book a Property Valuation Update Cookies Preferences