- Substantial Charming Rural Home
- Set In Approximately 2 Acres
- 5 bedrooms, 2 With An En Suite
- 4 Reception Rooms
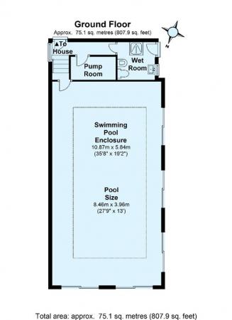
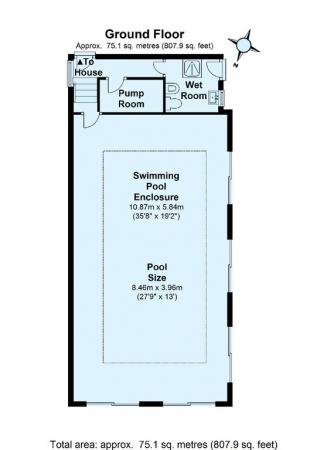
- Indoor Heated Swimming Pool
- Garage And Extensive Parking
- Annex Potential
- Pretty Rural Position Just Outside Of Dartmouth
- Mains Electricity & Water. Private Drainage
- Oil Fired Central Heating
 
                                 
                                 
                                 
                                 
                                 
                                 
                                 
                                 
                                 
                                 
                                 
                                 
                                 
                                 
                                 
                                 
                                 
                                 
                                 
                                 
                                 
                                 
                                 
                                 
                                 
                                 
                                                 
                                                     
                                                     
                                                     
                                                     
                                                     
                                                     
                                     
                                     
                                     
                                     
                                     
                                     
                                     
                                     
                                     
                                     
                                     
                                     
                                     
                                     
                                     
                                     
                                     
                                     
                                     
                                     
                                     
                                     
                                     
                                    