Broad Hill, Defford

Asking Price
£1,475,000
Under Offer
This property listing is now Under Offer

4 Bedroom Detached House for sale in Defford

2 4 2
  • Detached contemporary farmhouse set in approx. 16-acres with stables, menage and substantial barns/outbuildings
  • Two barns previously had class Q planning (now expired) W/19/02742/GPDQ
  • Stunning location with panoramic countryside views to Bredon Hill
  • Extended four bedroom farmhouse (planning approved for a further two storey extension - W/22/02509/HP)
  • Contemporary open plan kitchen/sitting/family room with bi-fold doors onto South Easterly facing garden with glorious views
  • Utility room; office/snug; four double bedrooms - master with en-suite; family bathroom and ground floor w.c.
  • Garden/land extends to the rear and both sides of the property
  • Substantial metal barn, stables with tack room and recently resurfaced menage
  • NO CHAIN
  • **THIS PROPERTY CAN BE VIEWED 7-DAYS A WEEK**

**A CONTEMPORARY DETACHED FARMHOUSE SET IN APPROX. 16 ACRES WITH STABLES, MENAGE AND SUBSTANTIAL BARNS AND OUTBUILDINGS** Extended and fully refurbished with picturesque views over open countryside to Bredon Hill. The heart of this family home is the open plan kitchen/sitting/family room which is full of natural light with two sets of bi-fold door which open onto a south-easterly patio seating area to enjoy the views. The kitchen area is fitted with an extensive range of units with central island and has integrated appliances including American style fridge freezer. The property has a good sized entrance hall; utility room with w.c. and snug/office/play room. On the first floor are four double bedrooms - master with en-suite and dressing area plus a family bathroom. The lawned rear garden is enclosed by hedging with the land extending to the side of the property/garden with stables, tack room, menage and metal barn. PLANNING PERMISSION WAS GRANTED IN APRIL 2023 FOR A TWO STOREY EXTENSION - PLANNING APPLICATION W/22/02509/HP. THE TWO BARNS TO THE NORTH FURTHEST FROM THE HOUSE DID HAVE PLANNING PERMISSION FOR Q-CONVERSION TO RESIDENTIAL ALTHOUGH THIS IS NOW EXPIRED. NO ONWARD CHAIN.

Front

Broad Hill Farm has gated access onto a drive leading to the front of the property. The drive provides ample parking and has further gated access leading the barn, stables and land. The property has an Oak framed open porch.
Step down to side of the property with access into the utility room. This area leads to a decked seating area and into the South Easterly rear garden.

Entrance Porch

Open oak framed porch.

Entrance Hall

Obscure double glazed entrance door with side window. Feature wood panelling with wall lights. Double cloaks/storage cupboard (housing underfloor heating controls, fuse box etc.). Stairs rising to the first floor with storage area below. Ceramic tiled floor. Down lights to ceiling.

Superb open plan kitchen/dining/family room

This room is the heart of this contemporary family home. Extended and full of natural light with picturesque views over surrounding countryside to Bredon Hill. The sitting area has two sets of double glazed bi-fold doors which open onto a patio seating area overlooking the South-Easterly facing garden. It has two lantern roof lights, ceramic tiled floor and down lights. The kitchen area is fitted with an extensive range of modern dark blue wall and base units surmounted by granite work surface with upstands. The central island also has extensive storage with fitted with cupboards and drawer units. One and a half bowl sink with mixer tap. Integrated appliances include: Twin 'eye level' oven/grill with warming drawer; NEFF induction hob with extractor; dishwasher and American style fridge freezer. Tiled floor. Down lights to ceiling.

Snug/Office/Play Room

Double glazed French doors with side windows to the rear aspect. Fitted storage unit. Tiled floor. Down lights to the ceiling.

Utility Room

Obscure double glazed stable door to the side aspect and double glazed window to the rear. Fitted with an extensive range of units with sink unit (with mixer and filter taps) and pet washing sink/bath. Integrated washing machine and tumble dryer. Access into loft space. Tiled floor. Down lights to the ceiling.

W.C.

Obscure double glazed window to the rear aspect. Vanity unit with bowl sink and mixer tap. Low flush w.c. Tiled flooring. Down lights to the ceiling. Extractor fan.

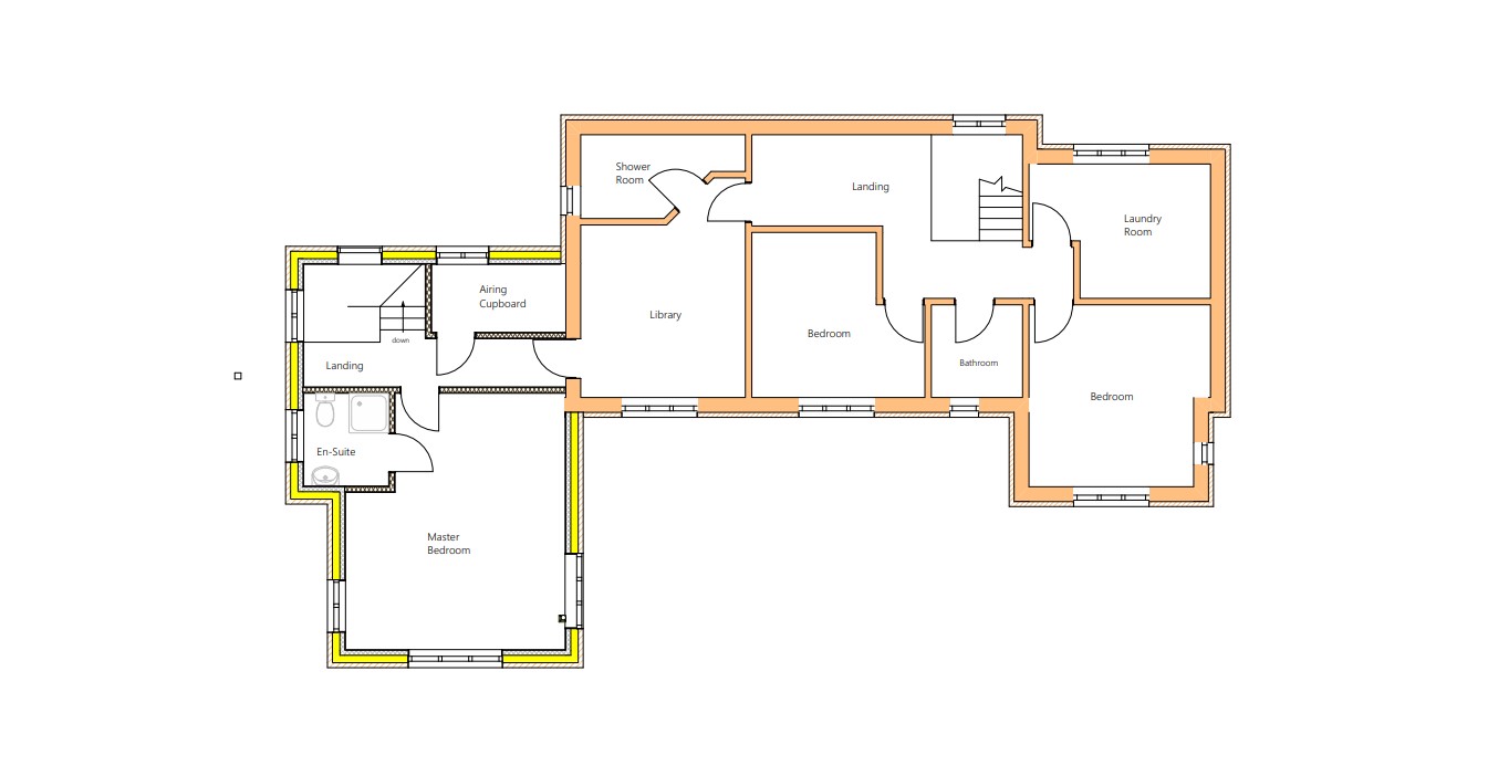
Landing

Double glazed window to the front aspect. Access into loft. Radiator. Down lights to ceiling.

Master Bedroom with Dressing Area

A dressing area (with extensive fitted wardrobes with hanging rails, shelves and drawers) leads into the bedroom with double glazed window to the rear aspect. Wall cupboards with matching bedside cabinets. Radiator.

En-Suite

Obscure double glazed window to the side aspect. Corner bath with mixer tap. Vanity unit with wash hand basin and low flush w.c. Tiled splash backs. Ladder/towel radiator. Tiled effect flooring.

Bedroom Two

Double glazed window to the rear and side aspects. Radiator.

Bedroom Three

Double glazed window to the rear aspect. Radiator.

Bedroom Four

Double glazed window to front aspect. Radiator.

Bathroom

Obscure double glazed window to the rear aspect. Panelled bath with mixer/shower head tap, Triton electric shower with glass screen. Pedestal wash hand basin. Low flush w.c Fully tiled walls. Radiator. Tiled effect flooring.

South Easterly Rear Garden with Views to Bredon Hill

Laid to lawn with hedging and range of mature planting including trees and shrubs.

Two Barns Previously with Class Q Planning Permission

Two of the barns previously had class Q planning permission https://plan.wychavon.gov.uk/Planning/Display/19/02742/GPDQ

General Information

The ground floor has under floor heating. The Worcester oil-fired boiler and oil tank are located outside the property. The property is on a septic tank which the current owners have emptied once a year (cost is approx. £250-£300). Further land/barns/outbuildings may be available for purchase by separate negotiation.

Tenure: Freehold

Council Tax Band: F

Mobile & Broadband Information

To check broadband speeds and mobile coverage for this property please visit:
https://www.ofcom.org.uk/phones-telecoms-and-internet/advice-for-consumers/advice/ofcom-checker and enter postcode WR10 1NY

Identity Checks

Estate Agents are required by law to conduct anti-money laundering checks on all those buying a property. We have partnered with a third part supplier to undertake these to ensure checks are HMRC compliant. The cost of these checks is £60 including VAT and is non-refundable. The charge covers the cost of obtaining relevant data, any manual checks and monitoring which may be required. This fee will need to be paid, and checks completed in advance of the issuing of a memorandum of sale.

Disclaimer

All measurements are approximate and for general guidance only. Whilst every attempt has been made to ensure accuracy, they must not be relied on.

The fixtures, fittings and appliances referred to have not been tested and therefore no guarantee can be given and that they are in working order.

Internal photographs are reproduced for general information and it must not be inferred that any item shown is included with the property.

Whilst we carry out due diligence before launching a property to the market and endeavour to provide accurate information, buyers are advised to conduct their own due diligence.

Our information is presented to the best of our knowledge and should not solely be relied upon when making purchasing decisions. The responsibility for verifying aspects such as flood risk, easements, covenants and other property related details rests with the buyer.

Important Information

  • This is a Freehold property.

Property Ref: 00004068

Share:

Similar Properties

Worcester Road, Drakes Broughton

5 Bedroom Detached House | Asking Price £835,000

**AN IMMACULATE FIVE BEDROOM DETACHED FAMILY HOME WITH DOUBLE GARAGE** Built in 2019 by M Squared Homes, this stunning p...

Worcester Road, Pinvin

4 Bedroom Detached House | Asking Price £800,000

**ANOTHER PROPERTY SOLD (stc) BY NIGEL POOLE & PARTNERS PERSHORE. FOR A FREE MARKET APPRAISAL CALL 01386 556506** **A FO...

Williamson Way, Drakes Broughton

4 Bedroom Detached House | Asking Price £795,000

**AN EXCITING OPPORTUNITY TO PURCHASE A FABULOUS FOUR DOUBLE BEDROOM DETACHED FAMILY HOME, FINISHED TO A HIGH SPECIFICAT...

Nigel Poole & Partners (Pershore)

Pershore, Worcestershire, WR10 1AA

01386 556506

How much is your home worth?

Use our short form to request a valuation of your property.

Request a Valuation

Mortgage Calculator

Amount Borrowed: £
Total Amount Repayable: £
Total Monthly Payment: £
©2026 The Guild of Property Professionals. All rights reserved. Terms and Conditions | Privacy Policy | Cookie Policy | Complaints Policy | Members Login
The Guild of Property Professionals Trading Address: 121 Park Lane, London W1K 7AG. GPEA Limited. Registered in England & Wales.  Company No: 02819824.  Registered Office Address: 2 St. Stephen's Court, St. Stephen's Road, Bournemouth, Dorset, England, BH2 6LA.  VAT Registration No: 576 8795 61
Book a Property Valuation Update Cookies Preferences