Quintons Road, East Bergholt, Ipswich, Suffolk

Guide Price
£875,000

5 Bedroom Detached House for sale in East Bergholt

5 3
  • DESIRABLE EAST BERGHOLT
  • EXCEPTIONAL DETACHED HOME
  • FIVE DOUBLE BEDROOMS
  • OPEN PLAN KITCHEN & FAMILY ROOM
  • TWO EN-SUITES
  • SUPERB 30FT LIVING ROOM
  • UTILITY ROOM AND CLOAKROOM
  • WELCOMING HALLWAY
  • INTEGRAL GARAGE
  • EXCELLENT GRAVEL DRIVEWAY APPROACH

AN EXCEPTIONAL MID-CENTURY HOME IN THE HEART OF EAST BERGHOLT Discreetly set back from the road in one of East Bergholt's most sought-after locations, this exceptional mid-century cottage combines timeless architecture with contemporary comfort. Beautifully presented and thoughtfully extended, the property offers spacious and flexible accommodation, complemented by a landscaped garden featuring a heated outdoor swimming pool and a superb entertaining area.

A Private and Welcoming Approach...
The home enjoys a wonderful sense of seclusion, approached via a long, gravel driveway providing ample off-road parking and access to both the covered entrance and integral garage. Beyond its discreet frontage lies a residence designed for relaxed family living and refined entertaining alike.

Light, Space and Sophistication...
Inside, a welcoming entrance hall flows effortlessly into the dual-aspect living room-a bright, elegant space where natural light streams through full-height windows and double doors overlooking the garden. An inset wood burner brings warmth and atmosphere during cooler months, creating an inviting focal point for family gatherings.

The Heart of the Home...
Positioned at the rear of the property, the open-plan kitchen and family room form the social heart of the home. The Shaker-style kitchen is finished in warm tones and complemented by quartz worktops with a bevelled drainer. This space connects seamlessly with the dining and casual seating areas, ideal for both everyday living and entertaining.
Bi-fold doors open directly onto the garden, blending indoor and outdoor living and creating an uplifting sense of space and light throughout the seasons.

A further sitting room offers a more intimate retreat, perfect for formal dining, reading, or quiet conversation. Completing the ground floor are a cloakroom and a well-equipped utility room, both designed for practicality and ease.

Comfort and Elegance Upstairs...
The first floor reveals five generously proportioned bedrooms, each thoughtfully designed to balance light, comfort, and functionality. Two bedrooms benefit from their own en-suite shower rooms, while the remaining rooms share a stylish family bathroom.

The principal suite provides a true sanctuary. With its calming atmosphere, dressing area, and private en-suite shower room, it offers both luxury and seclusion. Sliding doors open to a Juliet balcony, framing delightful garden views and enhancing the room's sense of openness.

A dedicated study provides a quiet space for remote working or study, while a large under-eaves storage cupboard adds practicality to the upper floor.

An Idyllic Outdoor Retreat...
The exterior of the property has been beautifully landscaped to create a space that is both tranquil and sociable. A combination of lawn and paved areas leads to an expansive patio-perfect for outdoor dining, summer parties, or simply relaxing in the sun.

At the heart of the garden lies the heated swimming pool, complete with swim jets and surrounded by neatly landscaped borders. This feature creates a resort-like atmosphere, ideal for both family enjoyment and entertaining guests.

The adjoining entertaining area-fitted with electrics and a TV point-extends the home's living space outdoors, offering a wonderful setting for gatherings or peaceful evenings beneath the Suffolk sky.

A Rare Opportunity...
This remarkable home offers the perfect balance of seclusion, style, and convenience. Combining mid-century charm with modern luxury, it provides an exceptional living environment within one of Suffolk's most desirable villages.

Situated in the heart of East Bergholt, the property enjoys excellent local amenities, beautiful countryside walks, and easy access to nearby Dedham Vale and Constable Country. Its superb setting, combined with the quality and flexibility of the accommodation, makes this a truly special opportunity for those seeking a distinctive family home in an outstanding location. 

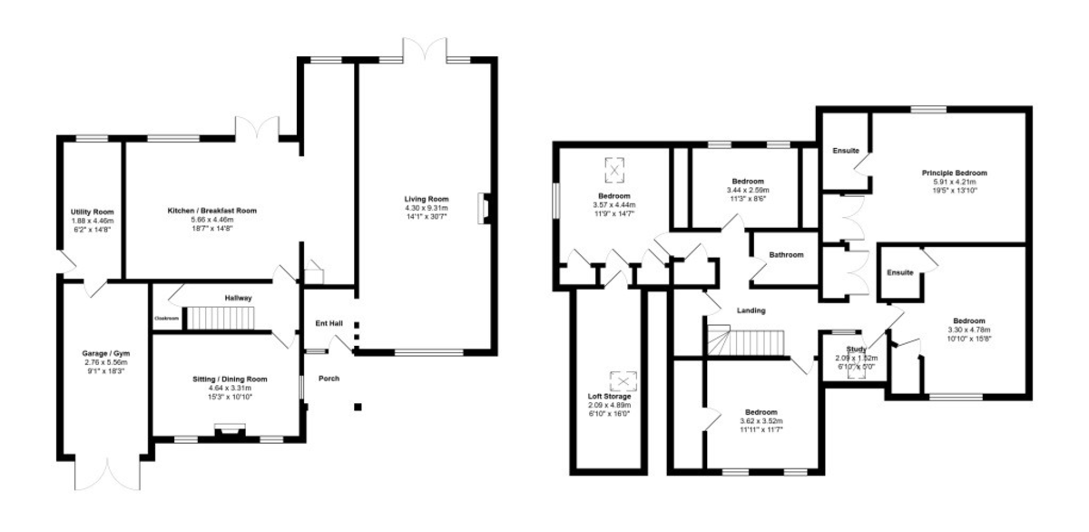
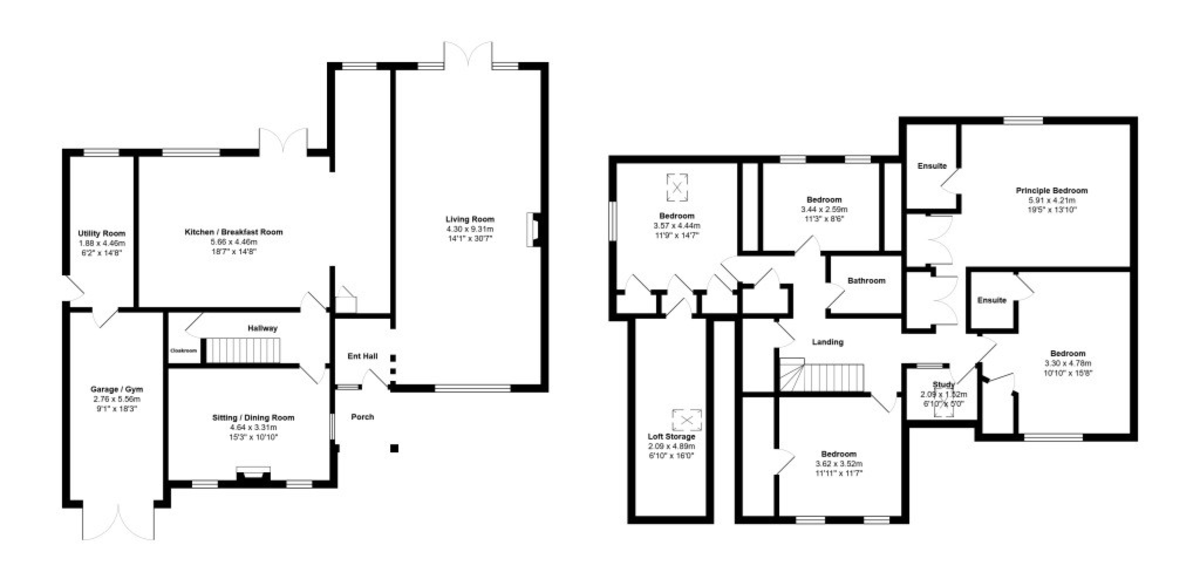
ENTRANCE HALL 12' 8" x 5' 8" approx. (3.86m x 1.73m)  

LIVING ROOM 30' 6" x 14' 2" approx. (9.3m x 4.32m)  

SITTING & DINING ROOM 15' 3" x 10' 10" approx. (4.65m x 3.3m)  

CLOAKROOM 5' 8" x 2' 7" approx. (1.73m x 0.79m)  

ENTRANCE LOBBY 8' 3" x 7' 1" approx. (2.51m x 2.16m)  

KITCHEN & BREAKFAST ROOM 18' 7" x 14' 9" approx. (5.66m x 4.5m) Open plan with family room. 

FAMILY ROOM 21' 5" x 7' approx. (6.53m x 2.13m) Open plan with kitchen & breakfast room. 

UTILITY ROOM 14' 6" x 6' 2" approx. (4.42m x 1.88m)  

INTEGRAL GARAGE/GYM 18' 3" x 9' 1" approx. (5.56m x 2.77m)  

LANDING  

PRINCIPAL BEDROOM 19' 2" x 13' 10" approx. (5.84m x 4.22m) Juliet Balcony. 

PRINCIPAL ENSUITE 8' 1" x 6' 6" approx. (2.46m x 1.98m)  

DRESSING AREA  

BEDROOM TWO 15' 7" x 14' 6" approx. (4.75m x 4.42m)  

BEDROOM TWO ENSUITE 5' 11" x 3' 10" approx. (1.8m x 1.17m)  

BEDROOM THREE 12' 3" x 11' 9" approx. (3.73m x 3.58m) Concealed access to loft room. 

LOFT ROOM 16' x 6' 11" approx. (4.88m x 2.11m)  

BEDROOM FOUR 11' 11" x 11' approx. (3.63m x 3.35m)  

BEDROOM FIVE 11' 11" x 8' 6" approx. (3.63m x 2.59m)  

FAMILY BATHROOM 6' 4" x 5' 8" approx. (1.93m x 1.73m)  

STUDY 6' 8" x 5' approx. (2.03m x 1.52m)  

OUTDOOR ENTERTAINMENT Pool controls are located in the pool house at the end of the garden. Power connected, TV point. Bar. Hot tub available by separate negotiation. 

AGENTS NOTE The driveway is unregistered, there is however an appropriate indemnity policy in place providing cover. 

BABERGH DISTRICT COUNCIL Tax band E - £2,759.66 PA (2025 - 2026). 

NEAREST SCHOOLS (.GOV ONLINE) East Bergholt primary and secondary. 

DIRECTIONS Leaving Colchester, head north-east towards A12, merge onto A12, use the 2nd from the left lane to take the exit towards Flatford/Raydon/Holton Saint Mary, turn left onto B1070, slight left onto Quintons Rd, the destination will be on the left. 

BROADBAND & MOBILE PHONE COVERAGE Broadband- To check the broadband coverage available in the area go to
https://checker.ofcom.org.uk/en-gb/broadband-coverage

Mobile Phone- To check mobile phone coverage in the area go to
https://checker.ofcom.org.uk/en-gb/mobile-coverage 

STAMP DUTY LAND TAX (SDLT) On all property and land transactions, the buyer needs to be aware that there is potentially a stamp duty land tax amount to pay on their completed purchase.
The link below will take you to the government online calculator to assist you with working out the cost for this tax and if it is applicable to you.

www.tax.service.gov.uk/calculate-stamp-duty-land-tax/!/intro 

DIGITAL MARLETS, COMPETITION AND CONSUMER ACT 2024 (DMCC) Your Ipswich Ltd has not tested any electrical items, appliances, plumbing or heating systems and therefore cannot testify that they are operational. These particulars are set out as a general outline only for the guidance of potential purchasers or tenants and do not constitute an offer or contract. Photographs are not necessarily comprehensive or current and all descriptions, dimensions, references to condition necessary permissions for use and occupation and other details are given in good faith and believed to be correct but should not be relied upon as statements of, or representations of, fact. Intending purchasers or tenants must satisfy themselves by inspection or otherwise as to the correctness of each of them. We have taken steps to comply with the Digital Markets, Competition and Consumer Act 2024 (DMCC), which require both the seller and their agent to disclose anything, within their knowledge, that would affect the buying decision of the average consumer. If there are any aspects of this property that you wish to clarify before arranging an appointment to view or considering an offer to purchase, please contact us and we will make every effort to be of assistance.

Your Ipswich Ltd, as part of their service to both vendor and purchaser, offer assistance to arrange mortgage and insurance policies, legal services, energy performance certificates, and the valuation and sale of any property relating to any purchaser connected to this transaction. Your Ipswich Ltd confirms they will not prefer one purchaser above another solely because he/she has agreed to accept the offer of any other service from Your Ipswich Ltd. Referral commission (where received) is in the range of £60 to £200. 

Property Ref: 58007_100138005354

Share:

Similar Properties

Queenscliffe Road, Ipswich

5 Bedroom Detached House | Guide Price £750,000

An architecturally striking five bedroom detached home set within a prestigious cul-de-sac in South West Ipswich, approa...

Henley Road, Ipswich

4 Bedroom Detached House | Guide Price £545,000

An immaculately presented detached family home located to the Northern fringes of Ipswich with easy access to the town c...

Henley Road, Ipswich

3 Bedroom Detached House | Guide Price £525,000

A superbly presented three bedroom extended detached family home of generous proportions and impressive kerb appeal, loc...

Butts Road, Playford

4 Bedroom Detached House | Offers in excess of £1,000,000

We are delighted to be offering for sale this South facing magnificent family home located in the village of Playford wh...

Your Ipswich (Ipswich)

125 Dale Hall Lane, Ipswich, Suffolk, IP1 4LS

01473 289333

How much is your home worth?

Use our short form to request a valuation of your property.

Request a Valuation

Mortgage Calculator

Amount Borrowed: £
Total Amount Repayable: £
Total Monthly Payment: £
©2025 The Guild of Property Professionals. All rights reserved. Terms and Conditions | Privacy Policy | Cookie Policy | Complaints Policy | Members Login
The Guild of Property Professionals Trading Address: 121 Park Lane, London W1K 7AG. GPEA Limited. Registered in England & Wales.  Company No: 02819824.  Registered Office Address: 2 St. Stephen's Court, St. Stephen's Road, Bournemouth, Dorset, England, BH2 6LA.  VAT Registration No: 576 8795 61
Book a Property Valuation Update Cookies Preferences