Coopers Green Uckfield

Guide Price
£3,190,000

Land for sale in East Sussex

GUIDE PRICE: £3,190,000 - 3,225,000



Guide as a whole £3,190,000 to £3,225,000, although can be purchased in individual titles as long as the sale occurs as a whole combined transaction with simultaneous exchanges and completions for all the lots being sold within this development project.



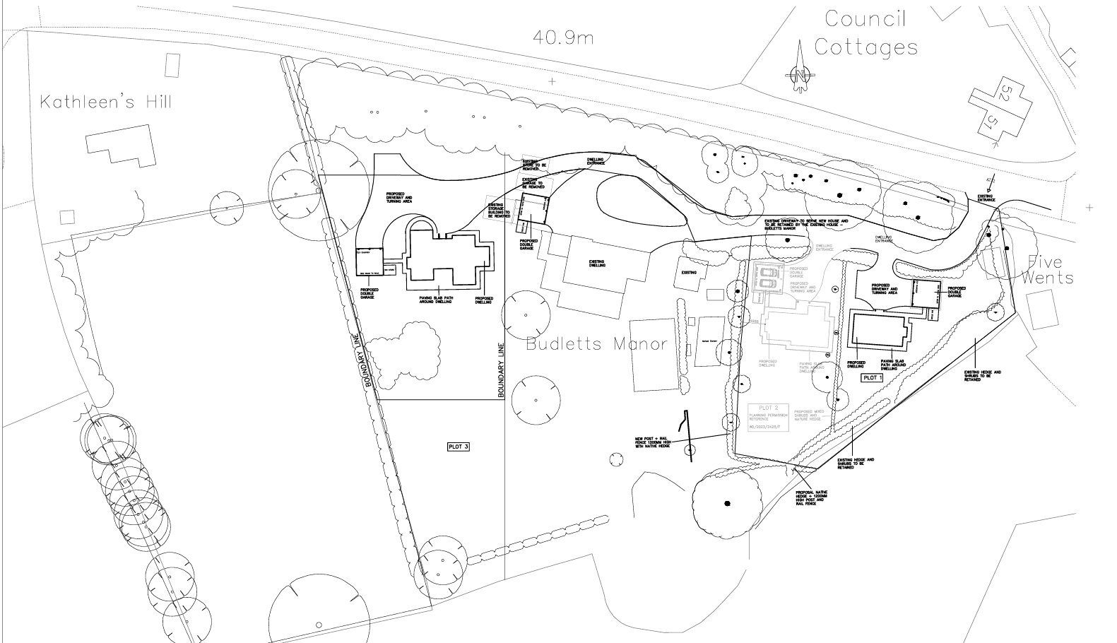
• Luxury and exciting combined development project for individual self-build plots presently intended for three detached bespoke houses set within 3.09 acres, that also includes an existing large five bedroomed detached refurbished luxury country house and its associated cottage within the combined purchase price



• This development project has planning permission granted and also being in the process of being granted to build currently Plot 1 a detached luxury 3 bedroomed house, Plot 2 a detached luxury 4 bedroomed house, Plot 3 a detached 5 bedroomed luxury house, all of which will have large rear gardens



• The large existing luxury refurbished detached 5 bedroomed country house will also come with an outside swimming pool and an associated detached guest cottage (The guest cottage also possible for being able to be traded for replacement planning to build a fourth luxury self-build plot



• Further land available possibly by separate negotiation if required



• Ideal for a family wishing to buy and build their own private country home estate, which already has a splendid private gated entrance and its own private grounds of in excess of 3 acres and an option to purchase a further 1.5 acres if required



• Located near two mainline train stations, making the self-build project and country house perfect for London commuting, yet still situated in a beautiful semi-rural setting



• Plot 1 luxury self build project will be for a detached three bedroomed house of circa 147.9 square meters (1,591 square meters) = guide plot price £395,000 to £400,000



• Plot 2 luxury self build project will be for a detached four bedroomed house of circa 179.4 square meters (1931 square feet)= guide plot price £495 to £525,000.



• Plot 3 luxury self build project will be for a detached five bedroomed house of circa 304.5 square meters (3,277 square feet)= guide plot price £800,000



• Plot 4 existing five bedroomed country house of circa 3,096 square feet & an additional cottage potential plot 5 is 606 square feet= guide price £1,500,000







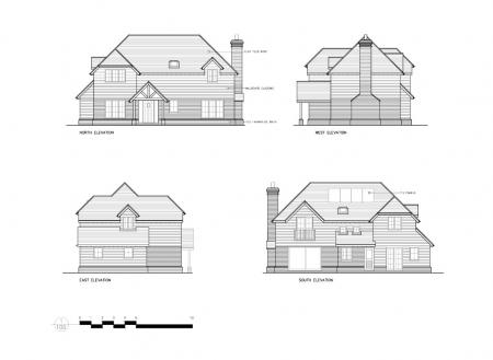
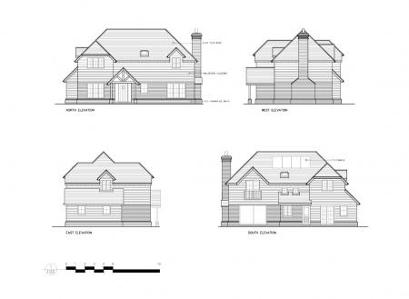
DESCRIPTION: A rare chance to purchase a very valuable luxury development building project / investment opportunity for the construction of 3 luxury bespoke detached self-build houses set within 3.09 acres of landscaped grounds and to also include an existing associated large well-presented and beautifully refurbished detached 5 bedroomed country house with its own additional detached staff / guest cottage, with the cottage also having possibilities to be able to become a further 4th bespoke building plot subject to planning.



Each of the three luxury bespoke building plots are to have large rear gardens and are intended to be built and located following the existing building line. This is can be seen when looking at the details site block plan.



This exciting self-build development site is being offered for sale as a whole, although the titles can be purchased separately for tax efficiency, they are to be exchanged and completed simultaneously. The self-build building project is suited either for a self-build developer, or perhaps to a large family looking to build and live together in their own separate luxury dwellings and within their own private semi-rural country estate, which will also include the benefit of having included the existing luxury 5 bedroomed detached country house which already benefits from an imposing private gated entrance with an extensive gravelled driveway beyond and grounds in all of 3.09 acres.



In addition, the country house comes with a swimming pool, a large rear garden with an ornamental stocked water feature as well as a detached guest cottage, which as previously mentioned, itself could obtain future planning to be redeveloped into a fourth luxury self-build plot.



LOCATION: This fabulous bespoke refurbished detached 5 bedroomed country house and its associated guest cottage with its beneficial planning permissions granted and in the process of being granted for three bespoke detached luxury self-build development plots set within its own grounds of 3.09 acres, is also situated within easy walking distance of the local Five Ashdown village with its local shop and post office.



In addition, the town of Uckfield with its mainline train station and extensive shopping and leisure facilities are also within walking distance. There is also a leisure centre, cinema and even its own cottage Hospital with and A&E centre.



Furthermore, the Buxted mainline train station and Buxted medical centre is also within a short walk, making this country house and its self-build development plots perfectly located for London commuters.



Buxted Park also has a wonderful hotel with restraunt, as well as having extensive grounds offering wonderful relaxing walks in the countryside.



There a two excellent golf courses located nearby, being the East Sussex National and Piltdown. In addition, there is a cinema in Uckfield and a large leisure centre.



Depending upon educational needs, there are numerous reputable teaching institutions to choose from, including Bede’s, Mayfield School for Girls, Eastbourne College, Brighton College, Lancing College, Battel Abbey and the excellent state schooling of Uckfield Town, including its 6th form college.



MAIN EXISTING COUNTRY HOUSE & ASSOCIATED DETACHED COTTAGE: (The cottage also has potential for redevelopment into a further luxury building plot subject to planning, which will be in addition to the further 3 luxury self-build building plots already having been granted and in the process of being granted planning permission within the substantial grounds of this fine country house)



ACCOMMODATION: Entrance vestibule approached from the outside via a pair of large oak gothic doors, twin leaded light windows either side of a splendid panelled and glazed door which then opens into an impressive reception hall.



RECEPTION HALL: With an impressive high-level character beamed ceiling with elegant wooden floors, large opening beyond to the adjoining open plan formal dining room, doors also leading off to a cloakroom, an impressive luxury kitchen / breakfast room, a further door leading to a family room, a splendid feature staircase leading up to the first-floor accommodation.



FORMAL DINING ROOM: With a feature brick fireplace high level painted wooden beams, attractive oak floors, picture rails, double glazed windows and French doors opening to the rear sun terrace. Door to sitting room / presently utilized as a gym.



SITTING ROOM: An impressive double aspect room currently used as a gym, with radiator, high ceilings, double glazed windows with aspect to side garden and further double-glazed windows with wonderful aspect of the rear garden.



CLOAKROOM: With oak floors, radiator, W/C, down lights, double glazed window.



KITCHEN / BREAKFAST ROOM WITH ADJOINING OPEN PLAN LOUNGE: The main kitchen / breakfast room area has an extensive range of shaker style cupboards and base units with granite work tops over, space for cooking range, hood over, tied surrounds, high ceilings, down lighting, space for large American fridge freezer, ceramic 1 ½ butlers sink with mixer tap, fitted wine rack, integrated dishwasher, large feature central island with matching units below and granite worktop and breakfast bar over with retractable power unit, double glazed windows with aspect to the front gardens and grounds, doors leading off to the side lobby.



LOUNGE: Open plan large adjoining lounge with fitted display cupboards and section for large flat screen if required, high level ceilings, downlights, double glazed windows and French doors opening out onto the impressive paved rear sun terraces with wonderful aspect over the large rear gardens.



SIDE LOBBY: With radiator door to outside, further door to utility area



FAMILY ROOM: With a high-level coved ceiling, radiator, double glazed window with aspect to the front gardens and grounds, doors leading off to a study and another door leading to the sitting room / gym.



STUDY: A double aspect room with radiator, double glazed windows with aspects over to both the front and rear gardens and substantial grounds, doorway leading to a further side lobby.



SIDE LOBBY: With tiled floor and with three doors leading off to a cloakroom, a storage cupboard and a double-glazed door to the side gardens and grounds.



CLOAKROOM: Comprising of a tiled floor, radiator, W/C, wash basin with chrome taps and tiled splashback, extractor fan, double glazed window.



FIRST FLOOR ACCOMMODATION: This can be accessed by an impressive feature staircase leading up from the main reception hall, as well as benefitting from a mezzanine landing with a double-glazed window having an aspect to the front gardens, with the staircase finally at a generous sized galleried landing.



FIRST FLOOR GALLERIED LANDING: With a large roof hatch access leading to a vast roof void, which has potential for a further floor of extra accommodation subject to planning if required. Doors leading off 1,2,3,4 and 5.



BEDROOM ONE WITH ADJOINING DRESSING ROOM & FURTHER ENSUITE LUXURY BATHROOM / SHOWER ROOM AS WELL AS A LARGE FEATURE BALCONY: This bedroom is of a large double sized room with dado rails, feature central light, radiator, doorway to the luxury bespoke dressing room, further doors to the luxury ensuite bathroom / shower room, double doors opening to the balcony with pleasant views over the property’s rear substantial sized landscaped gardens and grounds.



ADJOINING DRESSING ROOM TO BEDROOM ONE: This comprises of a carpeted room with extensive fitted shelving and hanging space for clothes etc, downlights and arched entrance doorway leading off from the main bedroom area.



ENSUITE LUXURY BATHROOM / SHOWER ROOM FOR BEDROOM ONE: Comprising of a large feature whirlpool jacuzzi bath with a further separate large shower with heavy glazed front and tiled walls and floors, further feature twin wah basins with vanity drawers under and chrome mixer taps, chrome heated towel rail, W/C, radiator, downlights, floor lighting, double glazed window with aspect to the rear gardens and grounds.



BEDROOM TWO WITH ENSUITE LUXURY SHOWER ROOM: The bedroom is of a double size with dado picture rails, radiator, feature central light, door to the ensuite shower room, double glazed windows with aspect over the rear gardens.



ENSUITE LUXURY SHOWER ROOM FOR BEDROOM TWO: Comprising of a large heavy glazed and chrome front with sliding doors, tiled walls, pedestal wash basin with chrome tap, chrome towel rail, W/C, further half tiled walls, downlights.

BEDROOM THREE WITH ENSUITE LUXURY SHOWER ROOM: Comprising of a double sized and double aspect room with picture rails, radiator, double glazed window with aspect over the front gardens and grounds, door to ensuite shower room.



ENSUITE SHOWER ROOM FOR BEDROOM THREE: Comprising of heavy glazed and chrome fronted shower with tiled walls, pedestal wash basin, half tiled walls, W/C, downlights, chrome towel rail.



BEDROOM FOUR WITH ENSUITE LUXURY SHOWER ROOM: Comprising of a double sized room with radiator, fitted wardrobe cupboards, picture rails, double glazed windows with aspect to the front gardens, door to ensuite shower room.



ENSUITE SHOWER ROOM FOR BEDROOM FOUR: Comprising of a heavy glazed and chrome fronted shower with tiled walls, heated chrome towel rail, W/C, pedestal wash basin with splashback and mirror, double glazed window.



BEDROOM FIVE: A single sized room with radiator, double glazed window with aspect to front gardens.



OUTSIDE: An imposing and substantial sized detached elegant country 5 bedroomed house, which benefits from a further separate detached guest cottage, an outdoor swimming pool, an extensive sized gravelled driveway, a large ornamental water feature currently stocked with a large amount of mature fish, a detached double garage, as well as a further detached building currently used for an indoor A.I. golfing tutorial private practice room. All of which is also being offered for sale with the added benefit of planning permission for the construction of three very special luxury bespoke self-build residential plots within the grounds of this country house.



EXISTING GROUNDS OF THE COUNTRY HOUSE: The existing country house’s mature and substantial landscaped grounds presently total 3.09 acres and are accessed currently through a large and impressive twin brick built decorative wall and pillared entrance with further large twin electrically operated private security gates, which then open to an extensive gravelled driveway, which in turn then leads past the front boundaries of each of the three bespoke luxury self-build plots being offered for sale, as well as and including the existing imposing main country house, in addition to its separate detached cottage (Please note the existing cottage also has in our planners opinion redevelopment potential subject to planning into a further perhaps 4th luxury self-build plot).



These grounds prior to being divided off with each of the three-luxury bespoke self-build building plots and in addition to the plot for the existing country house, are presently predominantly arranged as levelled lawns with mature boundary hedges.



The country house will retain its outdoor pool, the large stocked pond and its detached cottage, with the extensive rear lawned areas directly behind the country house and the new build plots all the way back to the far rear hedge boundaries.



PLEASE SEE THE BLOCK SITE PLAN SHOWN WITH THE FORMAL MARKETING DETAILS FOR FURTHER GUIDANCE AS TO THE INTENDED PLOT BOUNDARIES.



• THE EXISTING DETACHED COTTAGE BEING SOLD WITH THE MAIN HOUSE (ALSO HAS POTENTIAL FOR REDEVELOPEMT TO BE TRADED FOR A FURTHER LUXURY BUILDING PLOT SUBJECT TO PLANNING): Presently comprises of a reception area, a sitting room / dining area, kitchen, cloakroom, upstairs bedroom with adjoining bathroom.



As already mentioned, the detached cottage which forms part of the title currently being sold with the main country house, also has potential to also be traded for further planning to create an additional valuable building plot (perhaps for a desirable bungalow plot) in our professional opinion and subject to planning.



Therefore, making this cottage additionally a very profitable future investment opportunity linked also to the main country house plot, in addition to the other 3 luxury building plots that are being offered for sale within this very exciting combined bespoke development sales package.



PLOT 1 LUXURY SELF BUILD BEING 3 BED DET HOUSE: Comprises of permission for a luxury bespoke character designed detached three double bedroomed house of 147.9 square meters (1,591 square meters) with the proposed accommodation intended to be a reception hall, a cloakroom, a sitting room, a kitchen / breakfast room with an open plan dining room and separate utility room to the ground floor.



The first floor to have a landing, a family bathroom, three double bedrooms and an ensuite shower room to bedroom one.



CURRENT GUIDE PRICE for PLOT 1: Current individual title purchase price with a simultaneous exchange and completion for a combined purchase for the whole site and development project= £395,000 TO £400,000



PLOT 2 LUXURY SELF BUILD 4 BED DET HOUSE: Comprises of permission for a luxury bespoke character designed detached house of in total (179.4 square meters 1931 square feet) with the ground floor accommodation comprising of a reception hall, a cloakroom, a sitting room, a study, a kitchen / breakfast room and an open plan adjoining dining room.



The first-floor accommodation would comprise of a large landing, four double bedrooms, bedroom one to have an esuite shower room and dressing room, bedroom two and three to have a jack and jill shower room and bedroom four to have an ensuite bathroom.



PLOT 2: Current individual title purchase price with a simultaneous exchange and completion for a combined purchase for the whole site and development project= £495,000 TO £525,000



PLOT 3 LUXURY SELF BUILD 5 BED DET HOUSE: This is to comprise of planning permission for large detached 304.5 square meters (3,277 square feet) house with 5 double bedrooms to the first floor, in addition to two ensuites and a further family bathroom, with potential to rearrange to have further ensuites incorporated with small design changes. The ground floor accommodation is currently designed to have planning for a large reception hall, a cloakroom, a study, a sitting room with a feature inglenook fireplace, a kitchen / breakfast room, open plan dining room, open plan lounge, separate utility room.



PLOT 3: Current individual title purchase price with a simultaneous exchange and completion for a combined purchase for the whole site and development project = £800,000



Please see the block site plan shown with the formal marketing details for further guidance as to the intended plot boundaries.



PURCHASE OPTIONS FOR THIS FINE SUBSTANTIAL COUNTRY HOUSE & THE THREE LUXURY BESPOKE SELF BUILD BUILDING PLOTS WITHIN ITS GROUNDS:



This large existing country house, which in all intent and purposes will have three luxury building plots being granted planning permission to be built within the grounds side by side, can be purchased as a whole under one title, or simultaneously as separate plot titles, depending upon the purchaser’s financial preferences.



SELF BUILD QUOTES & BUILD CONTRACTS: These have been obtained for the self build plots 1,2 & 3, so for more information, please contact the agents.



AGENTS NOTE: Please note that these details have been prepared as a general guide and do not form part of a contract. We have not carried out a detailed survey, nor tested the services, appliances and specific fittings. Room sizes are approximate and should not be relied upon. Any verbal statements or information given about this property, again, should not be relied on and should not form part of a contract or agreement to purchase.



EPC: C

Council Tax Band: G

Important Information

  • This is a Freehold property.
  • EPC Rating is C

Property Ref: FAN_FAN240078

Share:

Similar Properties

Gun Hill Heathfield

9 Bedroom Detached House | Asking Price £2,950,000

SEE THE PROPERTIES 360 DEGREE VIRTUAL TOURS HERE OR AT NEVILLE AND NEVILLE WEBSITE.

Edburton Road Fulking

6 Bedroom Detached House | Guide Price £2,750,000

GUIDE PRICE: £2,750,000

Frant Tunbridge Wells

9 Bedroom Detached House | Guide Price £2,750,000

GUIDE PRICE: £2,500,000 - £2,750,000

Gun Hill Chiddingly

Land | Guide Price £3,500,000

GUIDE PRICE: £3,500,000 - £3,900,000

Whatlington Road Battle

6 Bedroom Detached House | Guide Price £3,500,000

GUIDE PRICE: £3,500,000 - £3,900,000

Neville & Neville Estate Agents (Hailsham)

Cowbeech, Hailsham, East Sussex, BN27 4JL

01323 833 630

How much is your home worth?

Use our short form to request a valuation of your property.

Request a Valuation

Mortgage Calculator

Amount Borrowed: £
Total Amount Repayable: £
Total Monthly Payment: £
©2025 The Guild of Property Professionals. All rights reserved. Terms and Conditions | Privacy Policy | Cookie Policy | Complaints Policy | Members Login
The Guild of Property Professionals Trading Address: 121 Park Lane, London W1K 7AG. GPEA Limited. Registered in England & Wales.  Company No: 02819824.  Registered Office Address: 2 St. Stephen's Court, St. Stephen's Road, Bournemouth, Dorset, England, BH2 6LA.  VAT Registration No: 576 8795 61
Book a Property Valuation Update Cookies Preferences