Castle Street, Eye, IP23

£325,000

2 Bedroom Terraced House for sale in Eye

2

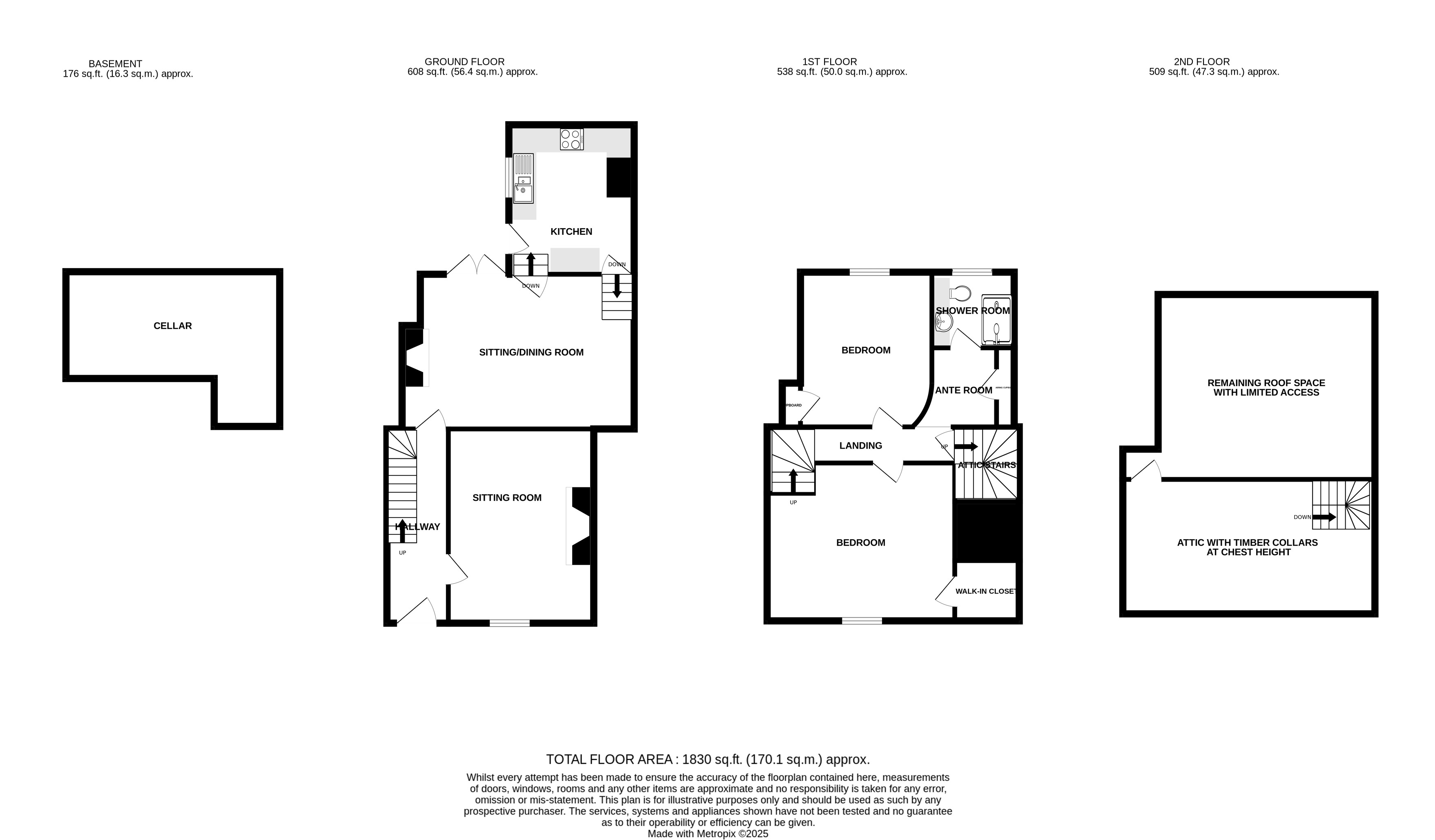
A much loved home of forty years plus standing, this Grade II Listed period townhouse has many qualities including garaging. Arranged over four levels from Cellar to Attic, the interior has much to offer having 2 reception rooms, good hall and kitchen capable of taking a table and chairs.

36 Castle Street is the central section of three properties evolved from the early 17th Century timber frame evident within each. This central section is unique however having an impressive hallway laid with pamment tiles and Georgian design influences to the staircase rising to the first floor. Furthermore, the layout comprises not only two distinct reception rooms but also a kitchen beyond, a cellar below and a useable attic space at the very top, accessed via an early flight of stairs. The property is also fortunate in having the central section of three parts to a period outbuilding which provides this house with a garage space and room for workshop activities. The current owners have enjoyed their time in this lovely house since 1984. Improvements, repairs and renovations have been carried out along the way including the installation of gas fired radiator heating.

Important Information

  • This is a Freehold property.

Property Ref: 576857_EYE250034

Share:

Similar Properties

3 Old Brew House Court, Eye, IP23

3 Bedroom Terraced House | £290,000

3 Old Brew House Court provides stylish 3 bedroomed living space and a south facing low maintenance garden along with ga...

Old Brew House Court, Eye, IP23

2 Bedroom End of Terrace House | £285,000

This 2 Bedroom end of terrace house is surprisingly roomy and only fractionally smaller than its 3 bedroom neighbours. A...

Lowgate Street, Eye, IP23

3 Bedroom Semi-Detached House | £279,995

Situated at the bottom of Lowgate Street, close to open countryside, this extremely well presented semi detached period...

Gaye Crescent, Eye, Suffolk, IP23

3 Bedroom Detached House | £350,000

A fabulous, cleverly extended detached 3 bedroom home set on a corner plot. The excellent interior is probably unique an...

Hoxne Road, Denham, Eye, IP21

3 Bedroom Detached Bungalow | £445,000

An individual detached bungalow within a lovely position and plot with open fields to both the front and rear. 3 Bedroom...

Church Street, Eye, Suffolk, IP23

3 Bedroom End of Terrace House | £450,000

A number of surprises lie behind the door of this end of terrace cottage not least its size and depth along with a very...

Harrison Edge Estate Agents (Eye)

Eye, Suffolk, IP23 7AN

01379871563

How much is your home worth?

Use our short form to request a valuation of your property.

Request a Valuation

Mortgage Calculator

Amount Borrowed: £
Total Amount Repayable: £
Total Monthly Payment: £
©2026 The Guild of Property Professionals. All rights reserved. Terms and Conditions | Privacy Policy | Cookie Policy | Complaints Policy | Members Login
The Guild of Property Professionals Trading Address: 121 Park Lane, London W1K 7AG. GPEA Limited. Registered in England & Wales.  Company No: 02819824.  Registered Office Address: 2 St. Stephen's Court, St. Stephen's Road, Bournemouth, Dorset, England, BH2 6LA.  VAT Registration No: 576 8795 61
Book a Property Valuation Update Cookies Preferences