Penwerris Terrace, Falmouth, TR11

Guide Price
£1,095,000
SSTC
This property listing is now SSTC

5 Bedroom Detached House for sale in Falmouth

2 5 4
  • Detached marine residence
  • Four double en-suite bedrooms
  • Spectacular Falmouth harbour & coastal views
  • 42' open plan living/kitchen/dining room
  • Harbour facing office/bedroom5/studio
  • Double garage and secure gated parking for 2 or 3 cars
  • Lovely landscaped, low maintenance garden
  • Sought after residential location

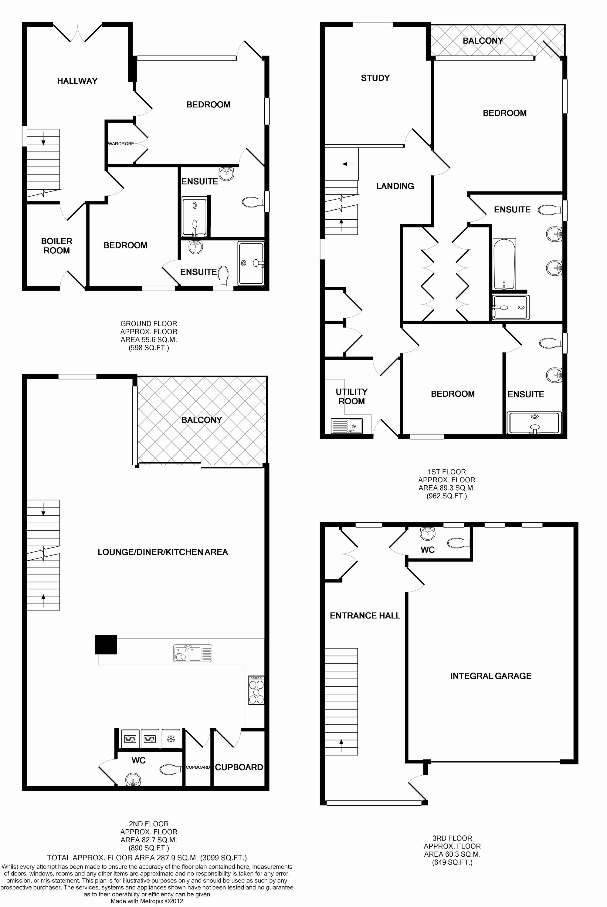
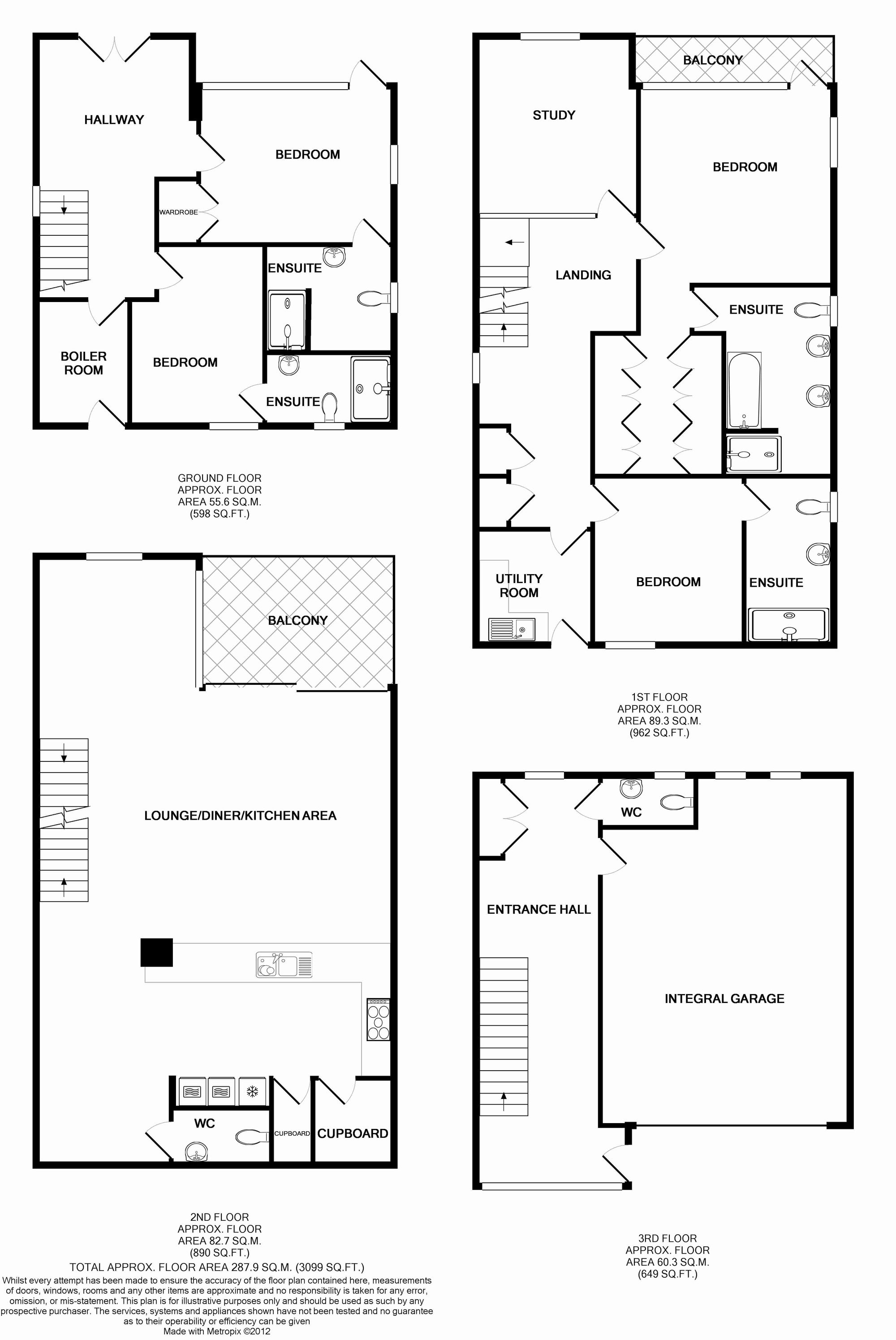
THE PROPERTY

Mainstay is an outstanding property and presents an incredibly rare chance to own one of Falmouth's most exciting contemporary homes. Built in 2011 to exacting standards, and with no expense spared, the house presents accommodation over four floors, with entrance at the top; each level with spectacular and panoramic views to Harbour, river, estuary and coast. Luxurious and spacious, Mainstay has four double bedrooms, each with generous en-suite facilities, together with a large, harbour-facing office/study and a stunning 43' (13m) open plan living room incorporating a kitchen, dining conservatory and internal balcony, all this with the uplifting and mesmerising outlook into Falmouth Harbour and beyond. The attention to detail and specification is incredibly high; a ground source heat pump provides under-floor central heating beneath a mixture of large porcelain floor tiles or quality plain carpets fitted throughout. 15 Solar (PV) panels help enormously with energy efficiency. The kitchen, with a walk in pantry/larder, is top notch, comprehensively fitted with quality appliances including three ovens, extra deep Corian worktops and a 'Quooker' tap providing instant boiling water. The open plan living room accesses the main internal balcony and there is a second internal balcony leading from the master bedroom with its en-suite bath/shower room and dressing area. The no-maintenance garden has been thoughtfully landscaped on three gentle terraces, all looking over the harbour, to Flushing and the coast. Access, off Penwerris Terrace, is via an electronic sliding gate into a secure parking area and the remotely opened double garage with Zappi electric car charger. Homes of this style, quality, and position are incredibly rare in Falmouth. The availability of Mainstay presents a unique chance for the most discerning of prospective buyer.

THE LOCATION

Penwerris Terrace is one of Falmouth's most sought after and valuable residential roads. It is set up high with phenomenal harbour and coastal views, yet within a few minutes' walk from the town and waterfront. The original Penwerris Terrace contains some of Falmouth's earliest and finest Regency houses, several of which were built for Packet Ship captains; the position no doubt chosen for its commanding marine outlook and convenience to the shore. The lovely rear gardens of the harbour fronting period houses in front, along Dunstanville Terrace and Greenbank, run up to Penwerris Terrace. During the 1900s, their value as building plots was recognised, and several homes have been built since, in this outstanding position. Mainstay, alongside Topsail are the most recent and arguably most spectacular homes built along this exclusive road. So much of what delights about Falmouth is on one's doorstep at Mainstay. The waterside is a few moments away as is the High Street with its individual shops and galleries, whilst The Boathouse, Star & Garter, or more up market Royal Cornwall Yacht Club and Greenbank Hotel are one's 'locals'. Falmouth’s Marina is fifteen minutes' walk away. The town has a brilliant and diverse selection of restaurants and an eclectic mixture of shops, which include national chains, together with quality galleries showcasing local talent.

Falmouth's seafront, on the town's southern side, is about a mile away, with sandy beaches, Henry VIII's Pendennis Castle and access to incredible walks and scenery along the South West Coastal Path. Nearby train stations (Falmouth Town and Penmere Halt) provide a convenient link to the mainline at Truro for Exeter and London, Paddington. Falmouth Docks are a major contributor to the town's economy and along with Falmouth University (with campuses in Falmouth and Penryn) and Falmouth Marine School, ensure an all year round and vibrant community. There are five primary schools and one secondary school in the town and highly regarded independent preparatory and senior schools in Truro. Falmouth boasts the third largest natural harbour in the world and is renowned for its maritime facilities which offer some of the best boating and sailing opportunities in the country; little wonder the town is consistently ranked as one of the top five places to live in the UK.

Energy Efficiency Current: 83.0
Energy Efficiency Potential: 89.0

Important Information

  • This is a Freehold property.
  • This Council Tax band for this property is: F

Property Ref: 988345c7-bd97-4b0c-b067-5072368c360e

Share:

Similar Properties

Tredynas Road, Falmouth, TR11

4 Bedroom Detached House | Guide Price £1,000,000

Opportunities like this are incredibly rare where one finds a substantial detached family house, set up above Castle Bea...

Falmouth

6 Bedroom Semi-Detached House | Guide Price £895,000

Historic and elegant Regency villa with stunning water views. Flexible accommodation with 6-7 bedrooms and multiple rece...

Trefusis Road, Flushing, TR11

3 Bedroom Detached House | Guide Price £795,000

Exceptional waterside home in Flushing village with scope for modernisation, stunning quayside garden, and incredible vi...

Pennance Road, Falmouth, TR11

8 Bedroom Detached House | Guide Price £1,500,000

We are pleased to offer to the market this elegant Edwardian residence. Sitting proudly, high up on a much desired, near...

Heather & Lay (Falmouth)

Falmouth, Cornwall, TR11 3DN

01326 319767

How much is your home worth?

Use our short form to request a valuation of your property.

Request a Valuation

Mortgage Calculator

Amount Borrowed: £
Total Amount Repayable: £
Total Monthly Payment: £
©2026 The Guild of Property Professionals. All rights reserved. Terms and Conditions | Privacy Policy | Cookie Policy | Complaints Policy | Members Login
The Guild of Property Professionals Trading Address: 121 Park Lane, London W1K 7AG. GPEA Limited. Registered in England & Wales.  Company No: 02819824.  Registered Office Address: 2 St. Stephen's Court, St. Stephen's Road, Bournemouth, Dorset, England, BH2 6LA.  VAT Registration No: 576 8795 61
Book a Property Valuation Update Cookies Preferences