Castle View Park, Mawnan Smith, TR11

Guide Price
£625,000

4 Bedroom Detached House for sale in Falmouth

2 4 2
  • Four bedroom detached home
  • In need of an uplift
  • Great location
  • Nearby to village shop, pub, amenities & bus route
  • Peaceful no through cul-de-sac
  • Fantastic plot & position
  • Far reaching countryside views
  • Off road parking and garage
  • No onward chain!
  • PLEASE WATCH OUR PROPERTY VIDEO TOUR

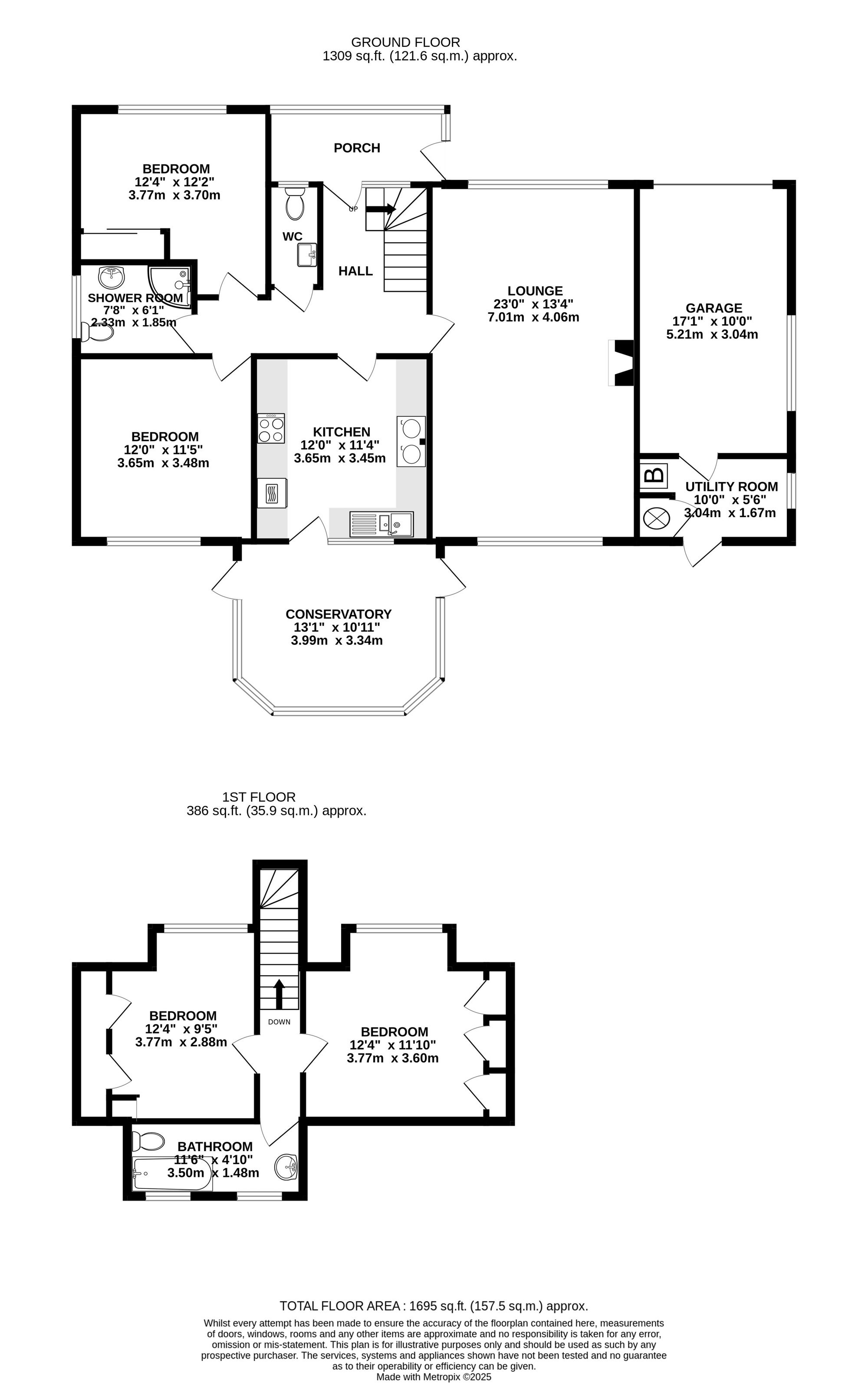
THE PROPERTY

Home for many years to our vendors, this wonderfully located property is perfectly liveable as is but would benefit from redecorating. This detached property has as many as four bedrooms (depending on one’s taste and configuration), a large sitting/dining room, well designed and appointed kitchen and a large conservatory. 
There is off-road parking to the front plus an oversized single garage. To the rear we have a private, mature and peaceful garden that faces mainly West and enjoys the afternoon and evening sunshine. There are countryside views from the sitting room and importantly there is no onward chain.  

THE LOCATION

Castle View Park is near the centre of Mawnan Smith with ease of access to Falmouth harbour town (approximately 4 and a half miles), where there are comprehensive shopping, schooling, business and leisure facilities. A railway link to Truro communicates with mainline Paddington, London and Newquay airport is approximately 50 minutes away. Mawnan Smith itself has good local amenities which include a primary school, church, pub, restaurant, general store with Post Office and a garage. Areas of coastline and countryside surrounding the village are arguably amongst some of the finest found in Cornwall. The Helford River (approximately 2 miles) is synonymous with fine sailing and natural, unspoilt beauty. The spectacular gardens of Glendurgan and Trebah are nearby and meander down to the banks of the Helford River.

Energy Efficiency Current: 47.0
Energy Efficiency Potential: 73.0

Important Information

  • This is a Freehold property.
  • This Council Tax band for this property is: F

Property Ref: ebe9aaf5-7b78-4950-981b-59d55e12ab48

Share:

Similar Properties

Cogos Park, Mylor Bridge, TR11

3 Bedroom Detached House | Guide Price £600,000

Outstanding split-level home in sought-after Cogos Park, Mylor Bridge. 3 double bedrooms, 2 shower rooms, spacious livin...

Bay View Bungalow, Cadgwith, TR12 7LA

2 Bedroom Detached Bungalow | Guide Price £575,000

Location, Location, Location! One of the most amazing locations on the Lizard. Cadgwith is a beautiful fishing village a...

Detached House, 6 Rosehill Place, 66 Melvill Road, Falmouth, TR11 4DD

2 Bedroom Detached House | Guide Price £560,000

This is a remarkable development, set amidst mature trees and next to Fox Rosehill Gardens. Its prime location offers a...

Trevellan Road, Mylor Bridge, TR11

4 Bedroom Detached House | Guide Price £635,000

Charming 4-bedroom detached house in sought-after village setting near quay, local amenities, and school. South-facing g...

Claremont Terrace, Falmouth, TR11

4 Bedroom Terraced House | Guide Price £650,000

Elegant and substantial end terrace period town house with fantastic harbour and coastal views, requiring some modernisa...

First Floor Apartment, Waters Edge, North Parade, Falmouth TR11 2TD

2 Bedroom Apartment | Guide Price £675,000

Welcome to Waters Edge, a small and exclusive waterfront development with stunning views over Penryn River. High-spec ap...

Heather & Lay (Falmouth)

Falmouth, Cornwall, TR11 3DN

01326 319767

How much is your home worth?

Use our short form to request a valuation of your property.

Request a Valuation

Mortgage Calculator

Amount Borrowed: £
Total Amount Repayable: £
Total Monthly Payment: £
©2025 The Guild of Property Professionals. All rights reserved. Terms and Conditions | Privacy Policy | Cookie Policy | Complaints Policy | Members Login
The Guild of Property Professionals Trading Address: 121 Park Lane, London W1K 7AG. GPEA Limited. Registered in England & Wales.  Company No: 02819824.  Registered Office Address: 2 St. Stephen's Court, St. Stephen's Road, Bournemouth, Dorset, England, BH2 6LA.  VAT Registration No: 576 8795 61
Book a Property Valuation Update Cookies Preferences