- AUCTION PROPERTY
- FIRST FLOOR TOWN CENTRE PROPERTY
- CURRENTLY COMMERCIAL USE
- COULD BE CONVERTED TO RESIDENTIAL SUBJECT TO PLANNING PERMISSIONS & BUILDING REG APPROVAL
DRAFT DETAILS AWAITING VENDOR APPROVAL
DESCRIPTION
AUCTION PROPERTY. For sale by public auction Wednesday, 11th February 2025 at 11am in the Silverlake Stadium, Eastleigh Football Club, Stoneham Lane, Eastleigh, Southampton, Hampshire SO50 9HT. BOOK NOW FOR AN APPOINTMENT TO VIEW. PLEASE BE AWARE THE PROPERTY CURRENTLY HAS COMMERCIAL USE, BUT HAS GREAT POTENTIAL TO CONVERT TO RESIDENTIAL SUBJECT TO THE USUAL PLANNING CONSENTS AND APPROVAL. A wonderful opportunity to purchase a first floor town centre property, which currently has commercial use, but previously had permission in 1961 to convert into a residential flat with parking to the rear, accessed from Crescent Road. The property has numerous rooms including a generous main office, which subject to planning permission and building reg approval could be converted into residential accommodation. We would highly recommend an internal inspection to appreciate the potential on offer.
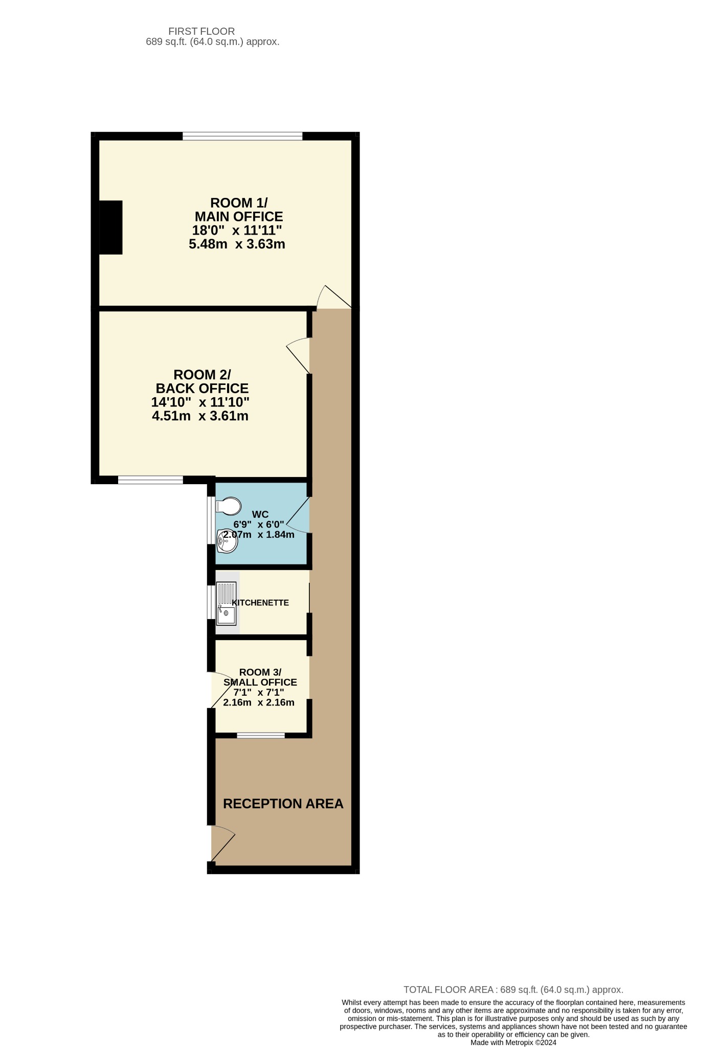
The property is accessed via a staircase and landing.
RECEPTION AREA
Double glazed window to rear elevation. Wall mounted gas heater. The reception area continues to a long hallway providing access to all rooms.
ROOM ONE/MAIN OFFICE
A good size room with double glazed window to front elevation.
ROOM TWO/BACK OFFICE
Double glazed window to rear elevation.
WC
Double glazed window to side elevation. Pedestal wash hand basin. Low level close coupled WC.
KITCHENETTE
Double glazed window to side elevation. Stainless steel single drainer sink unit with cupboard under. Further wall units. Room to:
ROOM THREE/SMALL OFFICE
Double glazed door to fire exit and wall mounted electric heater.
LEASE INFORMATION
Remainder of 999 year lease from 1983.
ADDITIONAL FEES:
Buyers Admin Fee: £600 inc VAT (£500 + VAT), payable on exchange of contracts.
Disbursements: Please see legal pack for any disbursements listed that may become payable by the purchaser on completion.
MONEY LAUNDERING PROCEDURES
IN ACCORDANCE TO THE ABOVE, PLEASE BE ADVISED, THAT IF YOU INTEND TO BID ON THIS PROPERTY, THEN YOU WILL BE REQUIRED TO PROVIDE TWO FORMS OF ID (ONE PHOTO-TYPE). IF, YOU ARE INTENDING TO BID ON BEHALF OF A THIRD PARTY, THEN WE WOULD REQUIRE BOTH ID FOR YOURSELF, PLUS A CERTIFIED COPY OF PHOTO ID FOR THE INTENDED PURCHASER. PLEASE SEE WEB-SITE, www.pearsons.com FOR FURTHER DETAILS.
Important Information
Property Ref: PFHCC_687973
1 Bedroom Retirement Property | Offers in excess of £50,000
NO FORWARD CHAIN. This one bedroom purpose built first floor retirement apartment for the over 55's, is located within t...
PAXTON ROAD, FAREHAM - GARAGE.
Garage | £22,500
A brick and block built garage accessible via up and over door with a trussed and tiled roof providing further storage w...
PAXTON ROAD, FAREHAM - GARAGE.
Garage | £22,500
A brick and block built garage accessible via up and over door with a trussed and tiled roof providing further storage w...
1 Bedroom Retirement Property | £78,000
NO FORWARD CHAIN. This one bedroom purpose built first floor retirement apartment is situated in this popular town centr...
REDLANDS LANE, FAREHAM - DOUBLE GARAGE AND PARKING
Garage | £85,000
A unique opportunity to purchase a detached double garage located in a secure and secluded position with additional park...
HOMER CLOSE, ROWNER, GOSPORT. AUCTION GUIDE PRICE £90,000.
3 Bedroom Maisonette | Guide Price £90,000
FOR SALE BY PUBLIC AUCTION ON THE 1ST APRIL 2026 at 11.00am in the Brooks Suite, Silverlake Stadium, Stoneham Lane, East...
Pearsons Estate Agents (Fareham)
21 West Street, Fareham, Hampshire, PO16 0BG
Use our short form to request a valuation of your property.
Request a Valuation