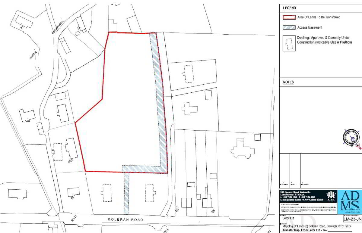
Field (1), Boleran Road, Garvagh

£140,000

Farm Land for sale in Garvagh

  • A plot of land which extends to circa 3 acre with future potential for development.
  • The land is just over 1 mile from Garvagh, located within a small settlement on the main Garvagh to Limavady Road.
  • Viewing is strictly by appointment only.

A plot of land which extends to circa 3 acre with future potential for development and located just over 1 mile from Garvagh. 


Located within a small settlement on the main Garvagh to Limavady Road, the site has numerous local amenities including the nearby Garvagh Forest, a Sky diving club and all the various amenities Garvagh has to offer including shops, restaurants, hotel, churches, supermarkets and old houses. 


In addition the land is located a short distance to many famous attractions including The Dark Hedges (Game of Thrones Fame), the Bushmills Distillery, The Giants Causeway and the North Antrim Coastwith its numerous amenities including golf courses and beaches. 


We as selling agents recommend early inspection to fully appreciate the site, its locationand its potential.  The current owner is happy to meet any potential purchasers on site to discuss in more detail the developments potential that it has to offer. Viewing is strictly by appointment only.

Property Ref: ST0608216_928242

Share:

Similar Properties

21 Farran Road, Ballymoney

3 Bedroom Semi-Detached House | Offers in excess of £139,950

3 Beechwood Drive, Balnamore, Ballymoney

3 Bedroom Semi-Detached Bungalow | Offers in excess of £139,950

3 Bamford Court, Rasharkin, Ballymoney, Ballymena

3 Bedroom End of Terrace House | Offers in excess of £135,000

58 Coolyvenny Road, Coleraine

2 Bedroom Semi-Detached House | Offers in excess of £144,950

8 Margaret Avenue, Ballymoney

3 Bedroom Detached Bungalow | Offers in excess of £145,000

94 Bann Meadows, Ballymoney

3 Bedroom Terraced House | Offers in excess of £149,950

McAfee Properties (Ballymoney)

Ballymoney, Ballymoney, County Antrim, BT53 6AN

028 2766 7676

How much is your home worth?

Use our short form to request a valuation of your property.

Request a Valuation

Mortgage Calculator

Amount Borrowed: £
Total Amount Repayable: £
Total Monthly Payment: £
©2025 The Guild of Property Professionals. All rights reserved. Terms and Conditions | Privacy Policy | Cookie Policy | Complaints Policy | Members Login
The Guild of Property Professionals Trading Address: 121 Park Lane, London W1K 7AG. GPEA Limited. Registered in England & Wales.  Company No: 02819824.  Registered Office Address: 2 St. Stephen's Court, St. Stephen's Road, Bournemouth, Dorset, England, BH2 6LA.  VAT Registration No: 576 8795 61
Book a Property Valuation Update Cookies Preferences