Layters Avenue, Chalfont St Peter, Gerrards Cross, SL9

Offers in region of
£775,000

3 Bedroom Semi-Detached House for sale in Gerrards Cross

2 3 2

Exceptional Redevelopment Opportunity with Planning Permisson and Building Regulations Approved.

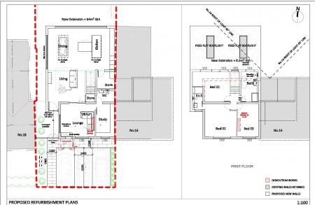
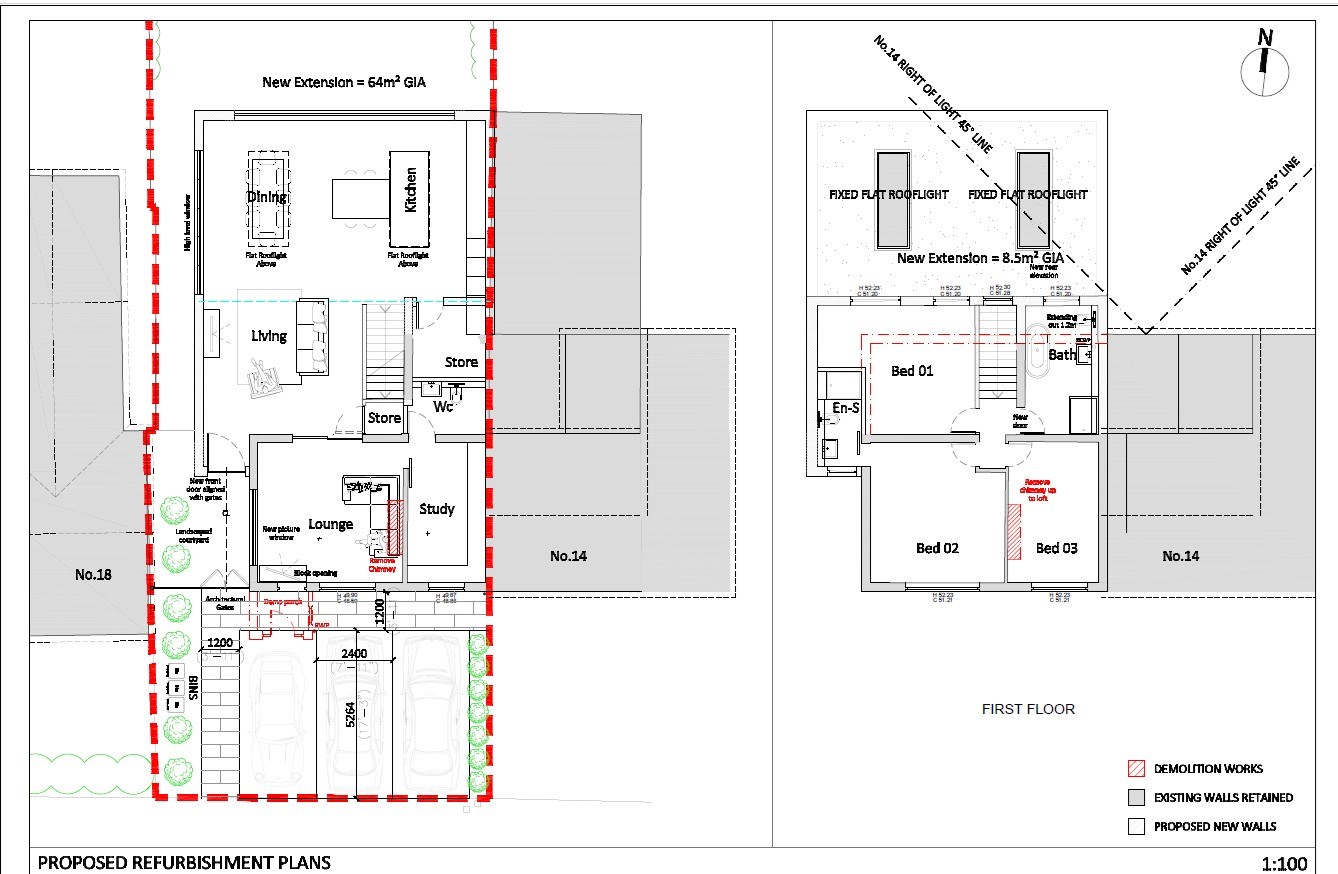
An outstanding opportunity for developers, investors, or ambitious homeowners—this property property benefits from full planning permission, with all approvals in place and ready for immediate construction with full plans for substantial extensions and remarkable scope for large-scale redevelopment. Set on an expansive plot, it provides the perfect canvas for creating a high-value, bespoke home.

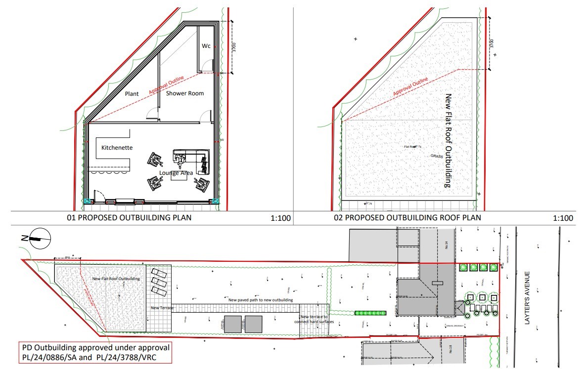
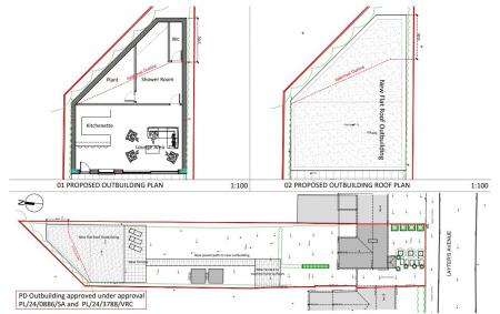
The existing structure offers a strong starting point, with approved proposals allowing for a significant increase in internal space and the creation of a modern, high-specification residence. In addition, the generous garden presents the potential to build a 1,000 sq ft annexe at the rear of the plot, ideal for guest accommodation or multigenerational living.

Key Features:

1. Extensive plot with excellent redevelopment potential

2. Approved plans for major extensions to the main property

3. Potential to build a 1,000 sq ft g outbuilding, providing potential use as a separate self-contained annexe, with approved planning.

4. Opportunity to create a high-value, custom home

5. Desirable location with strong buyer demand

6. Ideal for developers, builders, or visionary homeowners

Planning reference - PL/24/3788/VRC & PL/25/0902/FA

Layters Avenue is extremely convenient for access to local amenities and transport links. Gerrards Cross is 1 mile from the property and provides a wider range of shopping facilities and Mainline station with fast trains into London Marylebone in approximately 22 minutes. Central London is easily accessible by road via the M40 (J1A) and M25 (J16) plus access to Heathrow and Gatwick Airports. Should you wish to access the tube network directly, Amersham (approx. 6.5 miles) and Chalfont & Latimer (within 6 miles) Tube stations are all easily accessible.

Buckinghamshire is renowned for its education system, with an excellent choice of state and independent schools, including Dr Challoners High School for Girls and Dr Challoners Grammar School for Boys. Chalfont St Peter Infant School, Church of England Academy and Community College are all nearby.

The area is also well served for sporting facilities with Chalfont Leisure Centre just minutes away, The Buckinghamshire, Gerrards Cross and Denham Golf Courses within the area. Lawn tennis is available at Gerrards Cross and Beaconsfield.

 

Important Information

  • This is a Freehold property.

Property Ref: 462746_29726824

Share:

Similar Properties

Lower Road, Chalfont St Peter, Gerrards Cross, SL9

3 Bedroom Detached House | Guide Price £775,000

Hilton King and Locke are delighted to bring to market this delightful three double bedroom detached property set just m...

Chapel Lane, Stoke Poges, SL2

3 Bedroom Semi-Detached House | £765,000

This stunning three bedroom semi detached cottage offers a compelling mix of rural charm and contemporary styling. Situa...

Gold Hill North, Gerrards Cross, SL9

3 Bedroom Semi-Detached House | £735,000

This beautifully presented and extended family home is set in an enviable position with views across the picturesque Gol...

Orchard Grove, Chalfont St Peter, SL9

4 Bedroom Semi-Detached House | £783,500

This stunning four DOUBLE bedroom, extended semi detached house offers bright, spacious and flexible accommodation, amou...

Nortoft Road, Chalfont St Peter, Gerrards Cross, SL9

5 Bedroom Semi-Detached House | Offers in excess of £800,000

Hilton King and Locke are delighted to bring to the market this five-bedroom semi-detached family home in a sought-after...

Pond Lane, Chalfont St Peter, Gerrards Cross, SL9

4 Bedroom Semi-Detached House | £850,000

A stunning extended four bedroom semi detached house situated in a highly sought after cul-de-sac location. The property...

Hilton King & Locke (Chalfont St Peter)

20 Market Place, Chalfont St Peter, Buckinghamshire, SL9 9EA

01753 480060

How much is your home worth?

Use our short form to request a valuation of your property.

Request a Valuation

Mortgage Calculator

Amount Borrowed: £
Total Amount Repayable: £
Total Monthly Payment: £
©2025 The Guild of Property Professionals. All rights reserved. Terms and Conditions | Privacy Policy | Cookie Policy | Complaints Policy | Members Login
The Guild of Property Professionals Trading Address: 121 Park Lane, London W1K 7AG. GPEA Limited. Registered in England & Wales.  Company No: 02819824.  Registered Office Address: 2 St. Stephen's Court, St. Stephen's Road, Bournemouth, Dorset, England, BH2 6LA.  VAT Registration No: 576 8795 61
Book a Property Valuation Update Cookies Preferences