Benedict Street, Glastonbury, Somerset

£350,000

4 Bedroom Terraced House for sale in Glastonbury

4 4 1
  • Deceptively spacious end of terrace home in central Glastonbury
  • Four versatile reception rooms with excellent living space
  • Four generously sized double bedrooms across the first floor
  • Kitchen with useful larder plus ground floor cloakroom
  • Enclosed rear garden, mainly laid to lawn, ready to be landscaped
  • Superb opportunity to modernise and create your ideal home

A deceptively spacious four-bedroom home just moments from Glastonbury High Street. Four reception rooms and four double bedrooms offering flexible living throughout with an enclosed garden to the rear. A perfect opportunity for those wishing to modernise and add their own style.

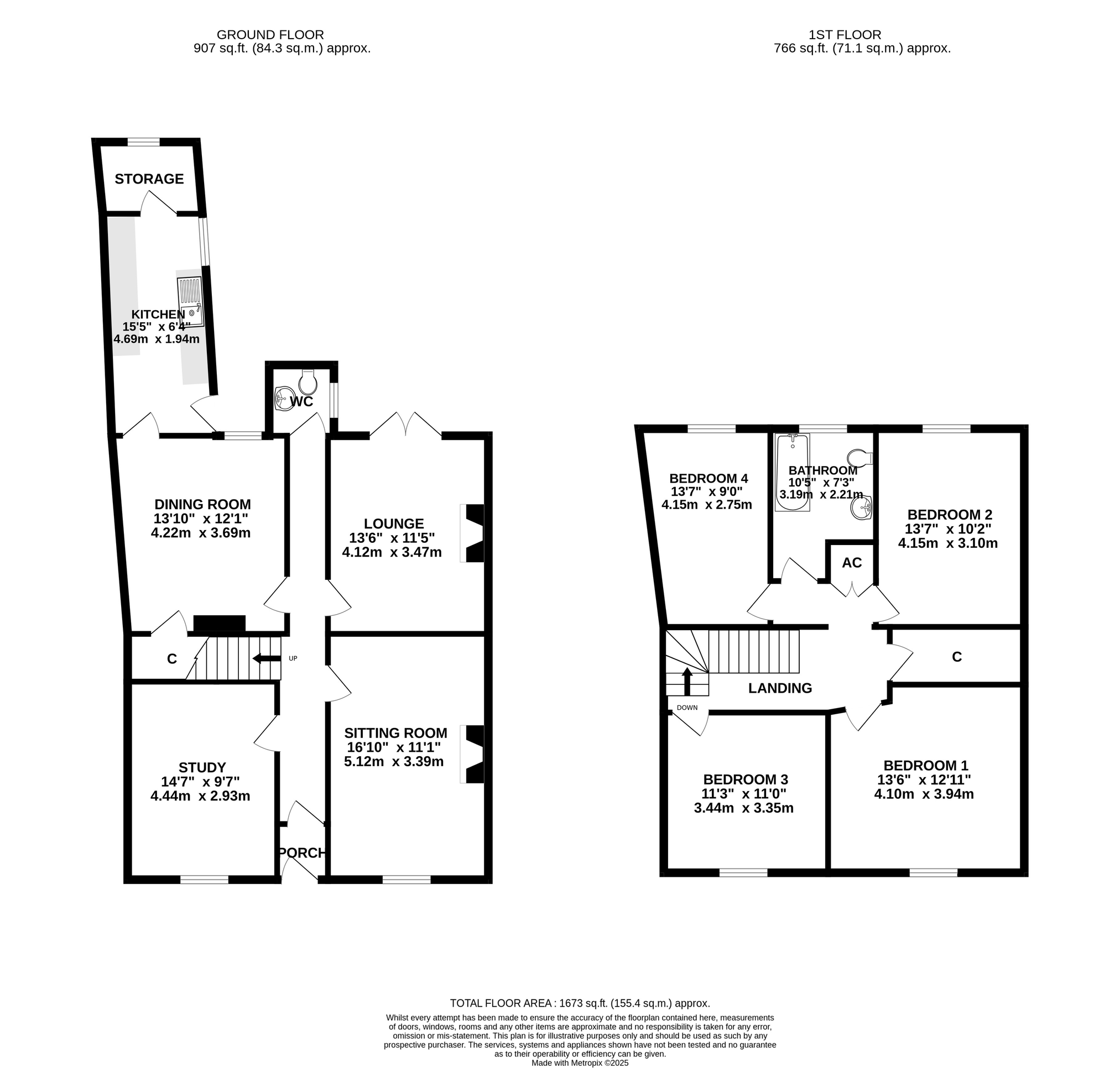
Accommodation
Entering the property, you step into a vestibule which opens into the hallway. From here, stairs rise to the first floor, while doors lead to the ground floor reception rooms. At the front of the property sits a generous sitting room, complete with a feature fireplace, alongside a versatile study, ideal for use as a home office or snug.
At the end of the hallway lies the lounge, a bright and welcoming space with a second feature fireplace and double doors that flood the room with natural light while providing direct access into the rear garden. Across the hall is the dining room, a sizeable area well-suited for family meals or entertaining, which in turn leads through to the kitchen. The kitchen is fitted with ample units, provides direct access into the garden, and extends into a useful storage room that could serve perfectly as a pantry or larder. A cloakroom/WC is also accessed from the rear of the hallway, completing the ground floor.
On the first floor, the landing gives access to four double bedrooms. Two generous doubles are positioned at the front of the property, while two further doubles are situated at the rear, alongside the family bathroom which has been fitted with a modern suite comprising of a basin, toilet and bath with shower over.

Outside
To the rear, the property enjoys an enclosed garden, mostly laid to lawn and offering a blank canvas ready for any budding gardener to make their own.

Location
The property is situated in Benedict Street and is within a level walk of the town centre which offers a good range of supermarkets, shops, cafes, restaurants, health centres and public houses. Glastonbury is famous for its Tor and Abbey Ruins and is 6 miles from the Cathedral City of Wells. More comprehensive facilities can be found in Street, 2 miles distant, where Clarks Village offers a wide range of shopping outlets, there are both indoor and open air swimming pools, Strode Theatre and Strode College. Access to the M5 motorway can be gained at Junction 23 some 14 miles.

Directions
On entering Glastonbury from Street/Bridgwater (A39) at the Wirral Park roundabout (B & Q on the left) take the third exit into Street Road. Continue, passing Morrisons Supermarket on the left and at the mini-roundabout turn left into Magdalene Street. Continue and after approximately 200 metres turn left into Benedict Street. Continue and bear around to the left and continue up Benedict Street, where the property can be found on the right hand side next to Rapsons Garage.

Material Information
All available property information can be provided upon request from Holland & Odam. For confirmation of mobile phone and broadband coverage, please visit checker.ofcom.org.uk

Identity Verification
To ensure full compliance with current legal requirements, all buyers are required to verify their identity and risk status in line with anti-money laundering (AML) regulations before we can formally proceed with the sale. This process includes a series of checks covering identity verification, politically exposed person (PEP) screening, and AML risk assessment for each individual named as a purchaser. In addition, for best practice, we are required to obtain proof of funds and where necessary, to carry out checks on the source of funds being used for the purchase. These checks are mandatory and must be completed regardless of whether the purchase is mortgage-funded, cash, or part of a related transaction. A disbursement of £49 per individual (or £75 per director for limited company purchases) is payable to cover all aspects of this compliance process. This fee represents the full cost of conducting the required checks and verifications. You will receive a secure payment link and full instructions directly from our compliance partner, Guild365, who carry out these checks on our behalf.

Important Information

  • This is a Freehold property.
  • This Council Tax band for this property is: C

Property Ref: FMV718927

Share:

Similar Properties

Meareway, Westhay, Glastonbury, Somerset

2 Bedroom Detached House | £350,000

Spiggy Cottage is a charming detached two-bedroom cottage, set amidst beautiful countryside. The home features a handmad...

The Close, Glastonbury

3 Bedroom Semi-Detached House | £350,000

Extremely well presented semi-detached house, have been completely renovated to include new kitchen and bathroom, re-wir...

Castle Street, Keinton Mandeville

4 Bedroom End of Terrace House | £350,000

No onward chain. A beautifully presented 4-bedroom end of terrace home, built in the 1800s from attractive Blue Lias sto...

St. Cleers Orchard, Somerton

3 Bedroom Detached Bungalow | £360,000

A well presented detached bungalow offering stylish open plan living and generous outside space, set in a peaceful posit...

Mulberry Lane, Lovington

3 Bedroom Semi-Detached House | £365,000

A beautifully crafted three bedroom semi-detached home of generous proportions, forming part of an exclusive development...

Sunnyview, Oxenpill, Meare, Glastonbury, Somerset

3 Bedroom Bungalow | £365,000

Sunnyview is a well-proportioned detached bungalow set well back from the road, enjoying open views across adjoining fie...

Holland & Odam (Glastonbury)

Glastonbury, Somerset, BA6 9DX

01458 833123

How much is your home worth?

Use our short form to request a valuation of your property.

Request a Valuation

Mortgage Calculator

Amount Borrowed: £
Total Amount Repayable: £
Total Monthly Payment: £
©2026 The Guild of Property Professionals. All rights reserved. Terms and Conditions | Privacy Policy | Cookie Policy | Complaints Policy | Members Login
The Guild of Property Professionals Trading Address: 121 Park Lane, London W1K 7AG. GPEA Limited. Registered in England & Wales.  Company No: 02819824.  Registered Office Address: 2 St. Stephen's Court, St. Stephen's Road, Bournemouth, Dorset, England, BH2 6LA.  VAT Registration No: 576 8795 61
Book a Property Valuation Update Cookies Preferences