Rockbourne, Fordingbridge, Hampshire, SP6

Guide Price
£799,950

4 Bedroom Detached House for sale in Hampshire

4

Outside
A gated driveway gives access to a parking area immediately in front of a pair of single GARAGES with up and over doors, with light in both and power in one. Alongside the left hand garage is a further area of parking on concrete hardstanding, ideal for a small boat or motor home.

The house stands on the edge of its plot of 0.3 acres and takes full advantage of the attractive outlook over the garden that enjoys a southerly aspect. A full width paved patio leads onto the GARDEN which has been attractively landscaped to incorporate sweeping lawns offset by a variety of established trees and shrubs, flower beds with perennial and herbaceous plants along with spring bulbs and a SUMMERHOUSE. In addition there is a greenhouse and the garden is enclosed by hedging and fencing.

Directions
Leave Fordingbridge High Street travelling West on the B3078 (sign posted Sandleheath). Enter Sandleheath and pass the village shop. Turn right at the crossroads (sign posted Rockbourne). Proceed past the right hand turning to Whitsbury and turn next right whereupon Staddles will be located on the right hand side.

Attractive Grade II listed period cottage
Edge of sought-after village of Rockbourne
4 bedrooms with good ceiling heights
3 reception rooms
Landscaped garden enjoying a southerly aspect


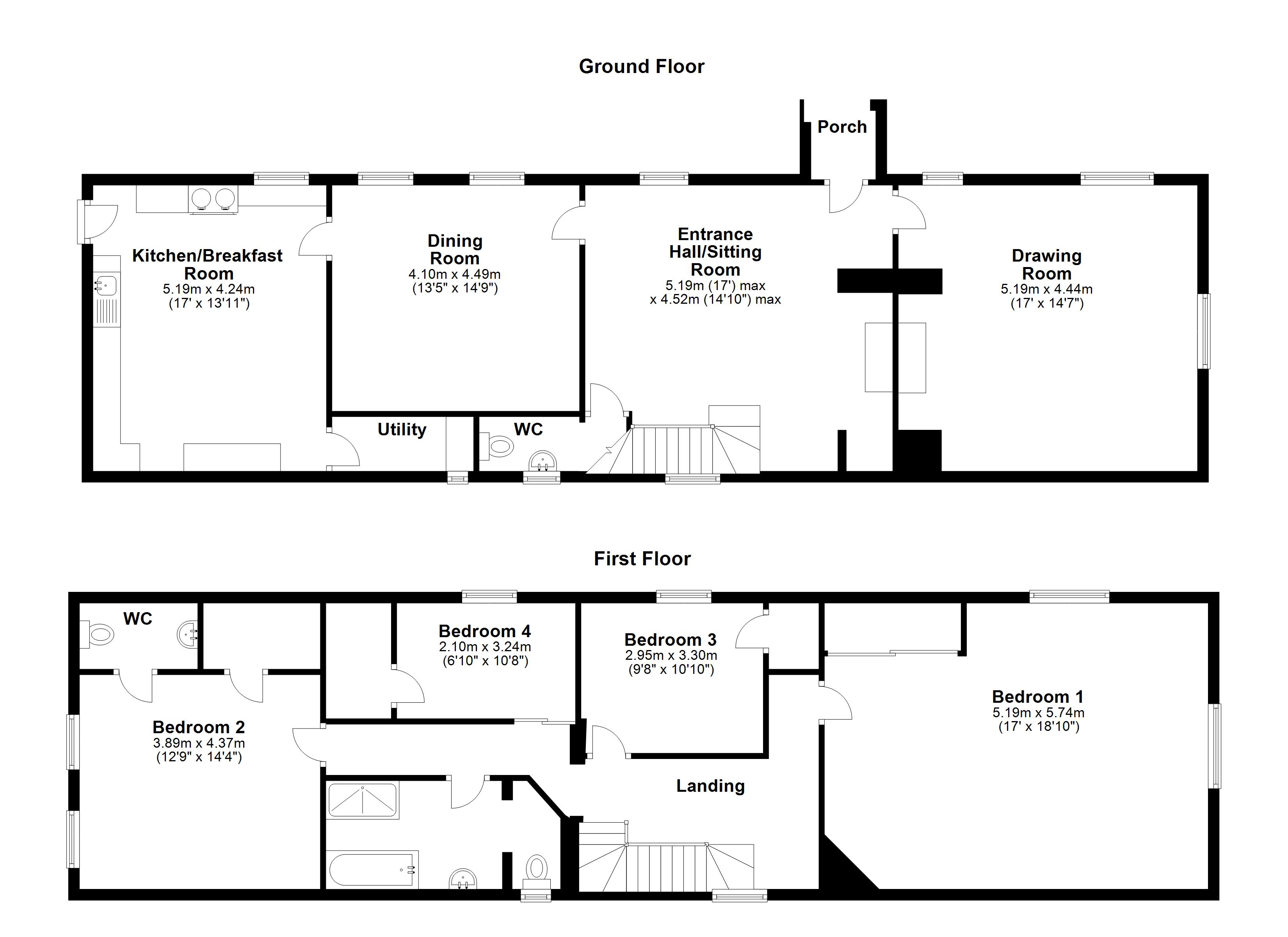
Porch

Sitting Room    Large Inglenook fireplace with brick hearth and bessomer beam with open grate. Staircase to first floor.

Cloakroom    WC. Wash hand basin.

Family Room    A double aspect room. Inglenook fireplace with wood burning stove. Parquet flooring.

Dining Room    2 wall lights. Karndean wood effect flooring. Exposed beams.

Kitchen/Breakfast Room    Range of painted wall and floor units incorporating drawers and cupboards. Worktops with splash tiling. Inset ceramic sink with swan neck mixer tap. Electric oven with LPG gas hob. Oil fired Aga. Inset spotlighting. Fridge/freezer space. Integral dishwasher. Stable door to garden. Oil-fired central heating boiler.

Utility Room    Wall and floor units incorporating plumbing for washing machine and a water softener. Wall shelving.

Landing    Storage cupboard.

Bedroom 1    Double aspect. Vanity basin within a cupboard unit. Deep built-in wardrobe. Loft access.

Bedroom 2    Walk-in airing cupboard with shelving. Loft access.

En-Suite Cloakroom    Pedestal basin. WC. Built-in cupboards.

Shower Room    Fully tiled shower cubicle with a Triton shower.

Bedroom 3    Built-in wardrobe.

Bedroom 4    Wardrobe cupboard.

Separate WC    WC suite.

Bathroom    Pedestal basin. Panelled bath. Ceramic splash tiling. Wall mirror with light over. Shaver socket.

Important Information

  • This is a Freehold property.

Property Ref: 5302_FOR190081

Share:

Similar Properties

Newgrounds, Godshill, Fordingbridge, Hampshire, SP6

4 Bedroom Detached House | Guide Price £799,950

A charming character four-bedroom cottage tucked away in a peaceful New Forest location with a fine outlook over adjoini...

Whitsbury, Fordingbridge, Hampshire, SP6

3 Bedroom Detached House | Guide Price £620,000

A Grade II listed cottage in mature gardens with a useful barn outbuilding providing ancillary accommodation set in the...

Salisbury Street, Fordingbridge, Hampshire, SP6

4 Bedroom Terraced House | Guide Price £599,950

A stunning Georgian Town house in the centre of Fordingbridge with well planned, versatile accommodation and river front...

Martin, Fordingbridge, Hampshire, SP6

5 Bedroom Detached House | Guide Price £950,000

Within the heart of the picturesque Downland village of Martin, a charming, extended 5-bedroom thatched house exuding ch...

Main Road, Sandleheath, Fordingbridge, Hampshire, SP6

5 Bedroom Detached House | Guide Price £975,000

A spacious 5-bedroom chalet style house with impressive, adaptable accommodation in excess of 3,000 sq. ft. standing in...

Hyde, Fordingbridge, Hampshire, SP6

4 Bedroom Detached House | Guide Price £975,000

Occupying an elevated, private position in the sought after village of Hyde, a unique 3-bedroom Victorian house with adj...

Woolley & Wallis (Fordingbridge) (Fordingbridge)

Fordingbridge, Hampshire, SP6 1AB

01425 655900

How much is your home worth?

Use our short form to request a valuation of your property.

Request a Valuation

Mortgage Calculator

Amount Borrowed: £
Total Amount Repayable: £
Total Monthly Payment: £
©2025 The Guild of Property Professionals. All rights reserved. Terms and Conditions | Privacy Policy | Cookie Policy | Complaints Policy | Members Login
The Guild of Property Professionals Trading Address: 121 Park Lane, London W1K 7AG. GPEA Limited. Registered in England & Wales.  Company No: 02819824.  Registered Office Address: 2 St. Stephen's Court, St. Stephen's Road, Bournemouth, Dorset, England, BH2 6LA.  VAT Registration No: 576 8795 61
Book a Property Valuation Update Cookies Preferences