Home For Modernisation, Large Plot, Gweek

Guide Price
£372,400
SSTC
This property listing is now SSTC

3 Bedroom Bungalow for sale in Helston

2 3 1
  • STUNNING LOCATION WITH OUTSTANDING VIEWS
  • DESIRABLE VILLAGE
  • POTENTIAL TO DEVELOP (SUBJECT TO NECESSARY CONSENTS)
  • SPACIOUS LOUNGE
  • LARGE GARDEN
  • THREE BEDROOMS
  • LOCAL FACILITIES CLOSE BY
  • REQUIRING MODERNISATION
  • EPC - F29
  • COUNCIL TAX BAND - E

Avalon is a charming and generously proportioned three bedroom bungalow, nestled on a good size plot with countryside views in a sought after neighbourhood at the top of The Helford River.
While requiring refurbishment, it presents an incredible opportunity to unleash your creativity and make the perfect living space and gardens, with neighbouring properties having undertaken substantial extensions.
This bungalow boasts an abundance of space, both indoors and outdoors, providing you with endless possibilities to design a comfortable and functional living area. Next to the kitchen is a dining room, which could potentially be incorporated to make a kitchen/diner opening directly onto the rear garden, generating the perfect space for alfresco dining and entertaining.
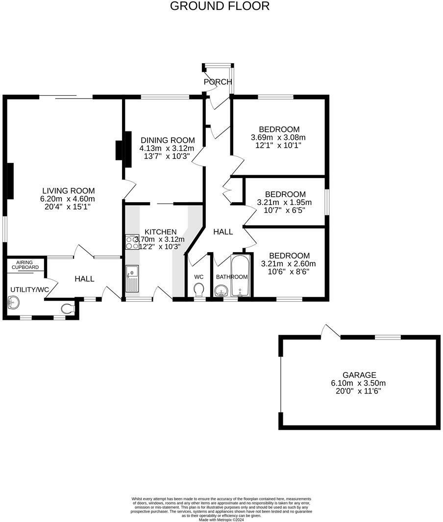
The spacious living room, with large patio doors provide direct access onto the patio and garden, also has a fireplace, access to the dining room as well as well as a front entrance vestibule with toilet. There are two double bedrooms, which offer plenty of space to accommodate furniture and a single bedroom. The garage provides ample storage space or secure parking.
The house is set on a generous plot, which surrounds the property, with stunning views over the valley, and offers huge scope to reinstate a pond, vegetable garden or design your own oasis.Opportunities like this are rare, so don't miss the chance to acquire this spacious three bedroom bungalow and make it your own. The property is coming to market chain free.
Guide Price - £380,000 -
Location - Gweek is a hugely sought after Creekside village on the outskirts of the North Helford offering excellent access to Helston, Truro, Falmouth and the famed sailing waters of the Helford River. The village itself offers a wonderful active community with a range of facilities to include a shop and Post Office, a Public House with restaurant, The Boatyard and the Boatyard Café. There is a well used village hall which is used for a variety of community events to include a playgroup and annual pantomime productions. Gweek is also home to the Cornish Seal Sanctuary.
Accommodation - Entrance HallWCLoungeHallwayKitchenDining RoomBedroom OneBedroom TwoBedroom ThreePorchWCBathroom
Garden - A garden to the rear, and spacious garden to the front with side pedestrian access.
Parking - On the driveway to the rear.
Garage - Pedestrian door.
Services - Mains electricity, water, private septic tank, LPG heating.
Council Tax Band- E -
Agents Note One - Our client has advised that the fires have been condemned.
Agents Note Two - Our client has advised us that in the field below the property, there is planning for two properties (further information can be found under PA21/11675). Our client has also advised that there is planning for 11 houses in the next field along (further information can be found under PA21/05783).
Broadband & Mobile Phone Coverage - To check the broadband coverage for this property please visit check mobile phone coverage please visit
Anti Money Laundering Regulations – Purchasers - It is a legal requirement that we receive verified ID from all buyers before a sale can be instructed. We ask for your cooperation on this matter to ensure there is no unnecessary delay in agreeing a sale. We will inform you of the process once your offer has been accepted.
Proof Of Finances - Before agreeing a sale, we will require proof of your financial ability to purchase. Again, we ask for your cooperation on this matter to avoid any unnecessary delays in agreeing a sale and we will inform you of what we require prior to agreeing a sale.

Important Information

  • This is a Freehold property.
  • This Council Tax band for this property is: E

Property Ref: 485612

Share:

Similar Properties

Manaccan, Spacious three bedroom home

3 Bedroom Semi-Detached House | Guide Price £370,000

Finished to a contemporary standard throughout, this spacious three bedroom semi-detached house provides flexible accomm...

Helston, Grade 2 listed cottage close to town centre

4 Bedroom Cottage | Guide Price £370,000

This beautiful Grade II listed cottage is ideally positioned just off the heart of the town centre, close to the histori...

Gorgeous three bedroom cottage, Mullion

3 Bedroom Cottage | Guide Price £367,500

Nestled in the serene countryside on the outskirts of the highly coveted village of Mullion, this traditional character...

Connor Downs, Spacious family home

4 Bedroom Detached House | Guide Price £375,000

This spacious four bedroom home offers versatile living accommodation across two floors, with the ground floor comprisin...

Godolphin Cross, Modernised detached bungalow

3 Bedroom Detached Bungalow | Offers in excess of £375,000

Situated in the highly sought after village of Godolphin, this beautifully modernised three bedroom detached bungalow of...

Porkellis, Cottage with large garden and countryside views

3 Bedroom Cottage | Offers in excess of £375,000

Nestled in the picturesque village of Porkellis, this charming three-bedroom semi-detached cottage presents a delightful...

The Mather Partnership (Helston)

Helston, Cornwall, TR13 8AA

01326 565016

How much is your home worth?

Use our short form to request a valuation of your property.

Request a Valuation

Mortgage Calculator

Amount Borrowed: £
Total Amount Repayable: £
Total Monthly Payment: £
©2026 The Guild of Property Professionals. All rights reserved. Terms and Conditions | Privacy Policy | Cookie Policy | Complaints Policy | Members Login
The Guild of Property Professionals Trading Address: 121 Park Lane, London W1K 7AG. GPEA Limited. Registered in England & Wales.  Company No: 02819824.  Registered Office Address: 2 St. Stephen's Court, St. Stephen's Road, Bournemouth, Dorset, England, BH2 6LA.  VAT Registration No: 576 8795 61
Book a Property Valuation Update Cookies Preferences