Harcourt Drive, Herne Bay

£799,995

4 Bedroom Detached House for sale in Herne Bay

4 3
  • Stylish Contemporary Home
  • Spectacular Sea Views
  • Westerly Rear Aspect With Unrivalled Sunsets
  • Four/Five Double Bedrooms
  • Two Reception Rooms
  • Sea Facing Sun Terrace
  • Luxury Family Bathroom
  • Lower Level With Three Recreation Rooms & Cellar
  • Downstairs Shower Room/Utility Room
  • Landscaped Rear Garden - Perfect For Entertaining

Watch the sun go down over Hampton Bay from this stylish contemporary home providing the most spectacular sea views. Whatever the weather, the view each day is as captivating as the last. Unrivalled sunsets, dramatic storms - you will see it all from here.
The property is most deceptive with generous room sizes and designed with a clear focus on maximising the stunning coastal vistas.
Two reception rooms and a separate study provide great versatility to this property. The main reception room lies to the rear, taking full advantage of the sea views with bifolding doors opening out to a sea facing balcony. The lounge and study that sit at the front could easily be used as bedrooms if required. An open plan kitchen/diner with sea views and a very handy shower/utility room conclude the ground floor.
The views just get better as you go up and the first floor provides three double bedrooms (Master with en-suite WC) and a luxurious family bathroom. Picture windows in the master bedroom and family bathroom frame some of the finest coastal views you will find in the area.
Moving outside, a west facing rear garden has been landscaped with both low maintenance and entertaining in mind. Raised patios and a sundeck provide various areas to enjoy the sea views whilst basking in the sunshine and a firepit caters for those late evenings with a glass of something nice. From here, you have access to the basement which currently provides three fully decorated recreation rooms and extensive storage.
Ample off-road parking is provided at the front with space for a boat and access to an attached garage.
All in all, an amazing home offering an equally amazing lifestyle.

Location:
The property is situated just off the Western Esplanade in Hampton, a premier location in Herne Bay which is a popular coastal town benefitting from a range of local amenities including retail outlets and educational facilities. There are also a good range of leisure amenities including rowing, sailing and yacht clubs along with a swimming pool and cinema. The mainline railway station (approximately 1 mile distant) offers fast and frequent links to London (Victoria approximately 85mins) as well as the high speed Javelin service to London (St Pancras approximately 87mins). The property also offers excellent access to the A299 which gives access to the A2/ M2 motorway network. The picturesque town of Whitstable is only 5 miles distant which enjoys a variety of shopping, educational and leisure amenities including sailing, water sports and bird watching, as well as the seafood restaurants for which it has become renowned. The City of Canterbury is approximately eight miles distant with its Cathedral, theatre and cultural amenities, as well as benefiting from excellent public and state schools. The City also boasts the facilities of a major shopping centre enjoying a range of mainstream retail outlets as well as many individual shops.

Non-Approved Property Details   


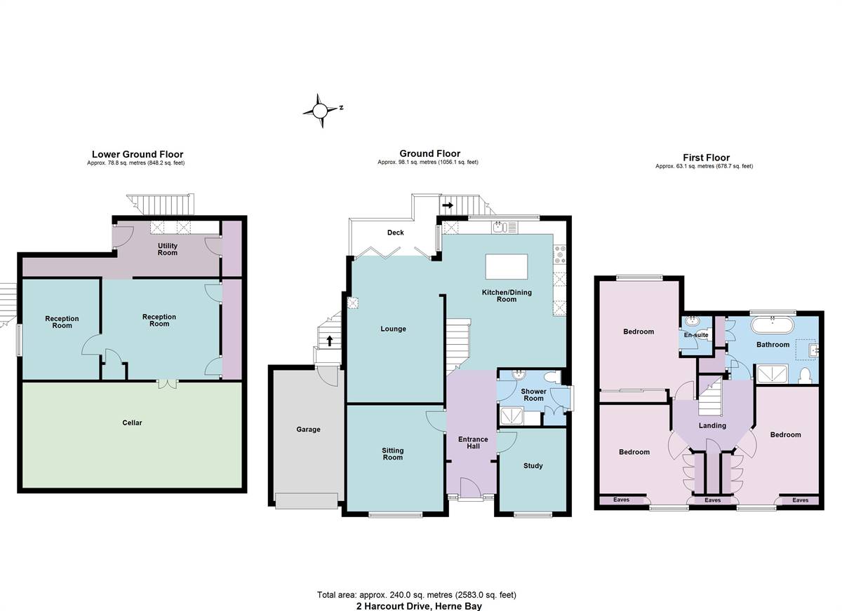
Entrance Hall   16' 1 x 5' 7 (4.91m x 1.71m)
Double glazed composite front entrance door. Designer radiator. Power points.

Sitting Room   13' 1 x 11' 10 (3.99m x 3.61m)
Window to front. Radiator. Power points. Downlighters.

Study   10' 9 x 8' 3 (3.28m x 2.52m)
Window to front. Radiator. Power points. Built-in desk and cabinetry.

Utility Room   8' 3 x 6' 11 (2.52m x 2.11m)
Power points. Underfloor heating. Plumbing for washing machine. Downlighters. Tiled flooring. Door to side. Shower cubicle. Close coupled WC. Wash hand basin set into vanity unit.

Kitchen   18' 0 x 15' 3 (5.49m x 4.65m)
The kitchen is planned with a matching range of wall and base units arranged on two walls. Inset 1 1/2 bowl sink unit. Quartz work surfaces. Integrated dishwasher, fridge and freezer. Window to rear overlooking sea views. Power points. Two radiators. TV point. Downlighters. Engineered wood flooring. Built-in speaker system.

Lounge   17' 4 x 11' 10 (5.29m x 3.61m)
Log burning stove. Designer radiator. Power points. Engineered oak flooring. Downlighters. Built-in speaker system. Bi-folding doors to balcony.

Master Bedroom   13' 8 x 10' 4 (4.17m x 3.15m)
Picture window to rear overlooking sea views. Built-in wardrobe cupboards. Radiator. Power points. Eaves storage. Door to en-suite.

En-Suite   
Suite in white comprising wall hung wash hand basin and close coupled WC with concealed cistern. Chrome heated towel rail. Extractor fan.

Bedroom Two   14' 7 x 10' 3 (4.45m x 3.13m)
Window to front. Built-in wardrobe cupboards. Radiator. Power points. TV point. Eaves storage cupboard.

Bedroom Three   12' 7 x 11' 2 Plus Wardrobes (3.84m x 3.41m)
Window to front. Built-in wardrobe cupboards. Radiator. Power points. TV point. Eaves storage cupboard.

Bathroom   11' 0 x 8' 4 (3.36m x 2.54m)
Suite in white comprising panelled bath, fully tiled double shower cubicle, pedestal wash hand basin and close coupled WC. Underfloor heating. Chrome heated towel rail. Partially tiled walls. Window to rear. Downlighters. Tiled flooring. Extractor fan. Built-in storage cupboards. Velux window to side.

Garden Room   6' 11 x 12' 8 (2.11m x 3.87m)
Power points. Matching range of wall and base units. Cupboard housing gas boiler and hot water cylinder.

Recreation Room   12' 5 x 9' 6 (3.79m x 2.9m)
Windows to side. power points. Radiator.

Snug   14' 6 x 12' 5 (4.42m x 3.79m)
Power points. Radiator. Access to cellar.

Cellar   27' 1 x 13' 2 (8.26m x 4.02m)
Power and light.

Garage   15' 4 x 10' 1 (4.68m x 3.08m)
Attached garage. Up and over doors. Power points and light.

Rear Garden   50' 2 At maximum points x 51' 5 (15.30m x 15.68m)
The rear garden benefits from a westerly aspect, enjoying sunshine throughout most of the day. Stairs lead down from the balcony to a low maintenance garden with artificial lawn, sundeck and a large patio with a raised hot tub area.

Front Garden & Driveway   45' 1 x 21' 9 (13.74m x 6.62m)
Border wall to front with a block paved driveway providing ample off-road parking and leading to an attached garage.

Main Services
The following mains services are connected to the property electricity, water, gas, drainage and a telephone line. All services will be subject to the appropriate companies transfer conditions.

Heating
Central heating is provided by a gas fired boiler and hot water radiators as indicated in these particulars.

Windows
The windows are of UPVC double glazed sealed units.

Tenure
The property is to be sold Freehold with vacant possession.

Council Tax
We are advised by the Valuation Office that the property is currently within Council Tax Band C. The amount payable under tax band C for the year 2025/2026 is £2,047.33.

Viewing
Please ring us to make an appointment. We are open from 9am to 6pm Monday to Friday, 9am to 5pm Saturdays and by appointment only on Sundays.

Agent Notes
Kent Estate Agencies gives notice for themselves and for the sellers of the property, whose agents they are that any floor plans, plans or mapping and measurements are approximate quoted in metric with imperial equivalents. All are for general guidance only and whilst every attempt has been made to ensure accuracy, they must not be relied on. The measurements are provided in accordance with the R.I.C.S. Code of Measuring Practice 6th edition.
We have not carried out a structural survey and the services, appliances and specific fittings have not been tested and therefore no guarantee can be given that they are in working order. Photographs are reproduced for general information and it must not be inferred that any item shown is included with the property. Prospective purchasers or lessees should seek their own professional advice. Kent Estate Agencies retain the copyright in all advertising material used to market this property.
No person in the employment of Kent Estate Agencies has any authority to make any representation or warranty whatever in relation to this property. Purchase prices, rents or other prices quoted are correct at the date of publication and, unless otherwise stated, exclusive of VAT.
For a free valuation of your property contact the number on this brochure.

Important Information

  • This is a Freehold property.

Property Ref: 57383_E1D2A8

Share:

Similar Properties

Hall Place, Hoath, Canterbury

4 Bedroom Detached House | Offers in excess of £795,000

Kent Estate Agencies are delighted to present this detached home built in 2014 which forms part of an exclusive cul-de-s...

Canterbury Road, Herne Bay

4 Bedroom Detached House | £795,000

YARDS AWAY FROM THE SEAFRONT... SINGLE GARAGE TO REAR WITH EXTENSIVE PARKING...An utterly beautiful Victorian residence,...

Mill Lane, Herne Bay

5 Bedroom Detached House | £750,000

Little Orchard is a most attractive detached home nestled back from the lane and occupying a generous plot of just over...

Reculver Drive, Herne Bay

4 Bedroom Detached House | £800,000

Prime location just off the clifftop for this substantial executive home which occupies a sumptuous garden plot. Built i...

Highstead, Canterbury

4 Bedroom Detached House | £840,000

'The Gables' is an attractive period home which dates to around 1903 and situated within an idyllic semi-rural location,...

Harcourt Drive, Herne Bay

5 Bedroom Detached House | Offers in excess of £850,000

SPECTACULAR SEA VIEWS & NO CHAIN - A striking and most unique residence situated in an elevated position just off the se...

Kent Estate Agencies (Herne Bay)

99 Mortimer Street, Herne Bay, Kent, CT6 5ER

01227 213499

How much is your home worth?

Use our short form to request a valuation of your property.

Request a Valuation

Mortgage Calculator

Amount Borrowed: £
Total Amount Repayable: £
Total Monthly Payment: £
©2025 The Guild of Property Professionals. All rights reserved. Terms and Conditions | Privacy Policy | Cookie Policy | Complaints Policy | Members Login
The Guild of Property Professionals Trading Address: 121 Park Lane, London W1K 7AG. GPEA Limited. Registered in England & Wales.  Company No: 02819824.  Registered Office Address: 2 St. Stephen's Court, St. Stephen's Road, Bournemouth, Dorset, England, BH2 6LA.  VAT Registration No: 576 8795 61
Book a Property Valuation Update Cookies Preferences