Williams Way, Radlett, Hertfordshire, WD7

£1,500,000
SSTC
This property listing is now SSTC

4 Bedroom Detached House for sale in Hertfordshire

2 4 2

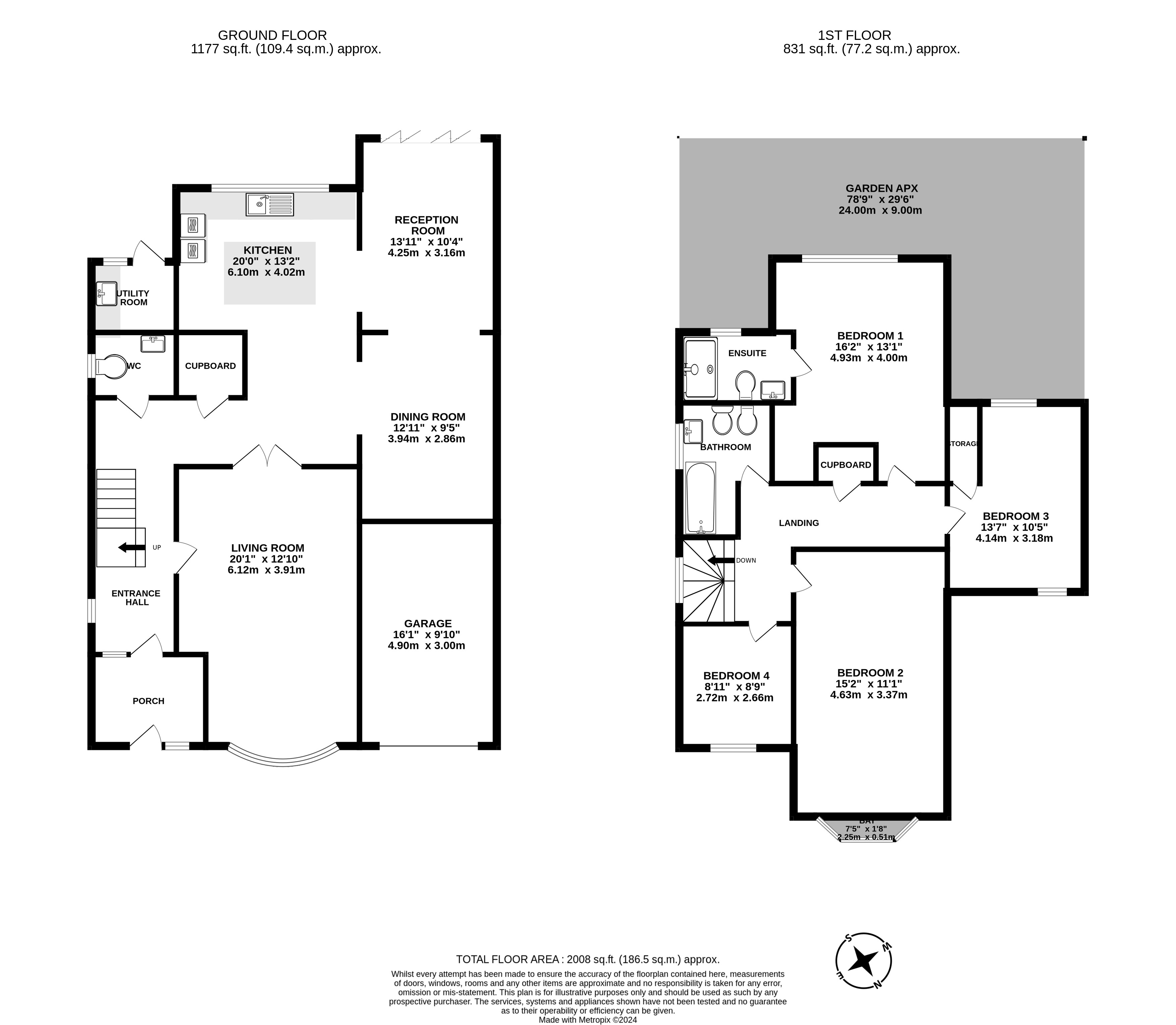
A stunning 4 bedroom detached family home in located in tranquil Radlett locationNestled at the serene end of Williams Way in Radlett, this beautifully presented detached property offers over 2,000 sq. ft. of versatile living space, perfect for modern family living.Step into the welcoming entrance hall, leading to a bright and spacious living room featuring a charming bay window. The heart of the home is the impressive open-plan kitchen, dining, and reception area, complete with sleek sliding doors that open seamlessly to the rear garden/patio area. A convenient utility room and a guest WC complete the ground floor.Upstairs, the property boasts four well-proportioned bedrooms. The principal bedroom benefits from a stylish en-suite shower room, while the remaining bedrooms share a generously sized family bathroom.Externally, the property offers ample parking for several vehicles, along with a single garage. The rear garden, spanning an impressive 78 ft, provides a secluded oasis with mature landscaping, perfect for relaxation or entertaining.

Important Information

  • This is a Freehold property.

Property Ref: 603603_LUM171082

Share:

Similar Properties

Furzehill Road, Borehamwood, Hertfordshire, WD6

6 Bedroom Semi-Detached House | Offers Over £1,500,000

Nestled on the sought-after Furzehill Road in Borehamwood, this newly refurbished and extended six-bedroom semi-detached...

Williams Way, Radlett, Hertfordshire, WD7

5 Bedroom Detached Bungalow | Guide Price £1,495,000

This exquisite five-bedroom detached bungalow is situated behind a spacious, well-kept green on a highly desirable road,...

Hale Grove Gardens, London, NW7

5 Bedroom House | Offers in excess of £1,420,000

This exquisite 5-bedroom family residence has recently undergone a complete renovation to the highest standards.

The Rose Walk, Radlett, Hertfordshire, WD7

7 Bedroom Detached House | Offers in excess of £1,695,000

A wonderful 7 bedroom detached property renovated to the highest of standards, located on a peaceful private cul-de-sac...

High Firs, Gills Hill, Radlett, Hertfordshire, WD7

3 Bedroom Apartment | £1,750,000

Situated in one of Radlett’s finest apartment sites, just a short stroll from the station platform, this exceptiona...

Grange Lane, Letchmore Heath, Watford, Hertfordshire, WD25

5 Bedroom Semi-Detached House | £1,895,000

This character residence situated in the secluded rural village of Letchmore Heath. It offers exceptional views over ope...

Lumley Estates (Radlett)

72 Watling Street, Radlett, Hertfordshire, WD7 7NP

01923 853366

How much is your home worth?

Use our short form to request a valuation of your property.

Request a Valuation

Mortgage Calculator

Amount Borrowed: £
Total Amount Repayable: £
Total Monthly Payment: £
©2025 The Guild of Property Professionals. All rights reserved. Terms and Conditions | Privacy Policy | Cookie Policy | Complaints Policy | Members Login
The Guild of Property Professionals Trading Address: 121 Park Lane, London W1K 7AG. GPEA Limited. Registered in England & Wales.  Company No: 02819824.  Registered Office Address: 2 St. Stephen's Court, St. Stephen's Road, Bournemouth, Dorset, England, BH2 6LA.  VAT Registration No: 576 8795 61
Book a Property Valuation Update Cookies Preferences