4 Byron Court, Kinnegar

Offers in region of
£189,950
SSTC
This property listing is now SSTC

2 Bedroom Apartment for sale in Holywood

1 2 1

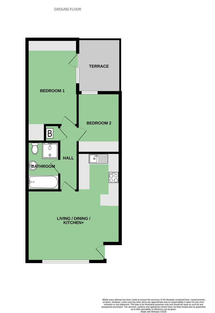
Situated on the second floor of the popular Byron Court development, this well-presented apartment enjoys truly stunning panoramic views across Belfast Lough to the Antrim Hills and coastline, with Kinnegar and Holywood Train Halt close at hand. Accessed via a communal entrance and staircase, the apartment opens into a bright and spacious lounge where the exceptional outlook takes centre stage, complemented by a feature wood-panelled ceiling and an open-plan layout leading through to the kitchen.

The kitchen is thoughtfully designed with a range of high and low level units and an excellent selection of integrated appliances, along with a casual breakfast bar dining area ideal for everyday living. A rear hallway provides access to a useful cloaks cupboard housing the gas fired boiler.

The accommodation further comprises two well-proportioned bedrooms, including a generous main bedroom with dual built-in robes and uPVC double glazed access to a rear balcony, which also benefits from sun throughout the day. Bedroom two overlooks the rear and includes built-in robes and shelving. The family bathroom is finished in a white suite and features both a panelled bath and a walk-in thermostatically controlled shower, complemented by fully tiled walls and floor.

As part of our obligations under the Money Laundering, Terrorist Financing and Transfer of Funds (Information on the Payer) Regulations 2017, all Estate Agents are required to verify the identity of purchasers involved in a property transaction.
To comply with these obligations, all purchasers will be required to complete Customer Due Diligence (AML) identity checks. These checks are carried out on our behalf by our trusted third-party provider, Thirdfort.
A charge will apply of £20 + VAT per purchaser.

.Second floor apartment within the popular Byron Court development
.Accessed via a communal entrance and staircase
.Bright lounge with stunning panoramic views across Belfast Lough
.Far-reaching outlook to the Antrim Hills and coastline
.Feature wood-panelled ceiling to lounge
.Open-plan lounge through to kitchen area
.Kitchen with a range of high and low level units
.Integrated appliances including oven, hob, fridge, freezer, dishwasher and washing machine
.Casual breakfast bar dining area
.Two well-proportioned bedrooms
.Principal bedroom with dual built-in robes
.uPVC double glazed door from main bedroom to rear balcony
.Family bathroom with white suite, bath and walk-in shower
.Private covered parking
.Highly desirable Holywood location close to the coast, Kinnegar and Holywood Yacht Club

Entrance -

Block Entrance - Block entrance with communal staircase up to second floor.

Second Floor - With uPVC and double glazed access door through to lounge.

Living/Dining/Kitchen - 6.05m x 5.44m (19'10 x 17'10) - With stunning views across Belfast Lough to the Antrim Hills and coastline and Kinnegar Holywood Yacht Club at hand, feature wood panelled ceiling, open to kitchen. With stunning views across Belfast Lough to the Antrim Hills and coastline and Kinnegar Holywood Yacht Club at hand, feature wood panelled ceiling, open to kitchen. With range of high and low level units, integrated under counter fridge and freezer, integrated dishwasher, integrated washing machine, integrated oven, four ring Fagor hob, tiled splashback, laminate wood effect work surface, casual breakfast bar dining area.

Rear Hallway - With cloaks cupboard with Vaillant gas fired boiler.

Bedroom One - 5.69m x 2.82m (18'8 x 9'3) - Dual built-in robes, uPVC and double glazed access door to rear with rear balcony and fixed staircase down to other side.

Bedroom Two - 3.35m x 2.36m (11'0 x 7'9) - Outlook to rear, built-in robes and shelving.

Bathroom - 2.72m x 1.78m (8'11 x 5'10) - White suite comprising of low flush WC, walk-in thermostatically controlled shower, telephone handle attachment, pedestal wash hand basin with hot and cold taps, panelled bath with mixer taps, telephone handle attachment, tiled walls, tiled floor, extractor fan.

Outside -

Terrace - 2.97m x 2.36m (9'9 x 7'9) - Rear balcony and fixed staircase down to other side.

Parking - Private covered parking

A welcoming seaside town just five miles from Belfast, full of charm and community spirit. Stroll along the main street's cafés, boutiques, and family-run restaurants. With great schools, coastal paths, and nearby golf clubs, there's something for everyone. Beautiful homes, sea views, and a relaxed pace make Holywood a wonderful place to live.

Property Ref: 34380207

Share:

Similar Properties

1 St Helens Court

2 Bedroom Apartment | Offers in region of £180,000

Elegant Lower Ground Floor Apartment with Exceptional Elevated ViewsSet just off Holywood's vibrant High Street, this we...

8 St Helens Court

2 Bedroom Apartment | Offers in region of £175,000

Ideally located in the heart of Holywood, 8 St Helens Court is a well-presented two-bedroom, ground floor apartment with...

3 O'Neills Place

2 Bedroom Apartment | Guide Price £145,950

Ideally located in the centre of the ever-popular town of Holywood, this spacious first-floor apartment at 3 O'Neills Pl...

34 Abbots Wood

3 Bedroom Semi-Detached House | Offers in region of £199,950

Situated just off the prestigious Demesne Road in Holywood, 34 Abbotts Wood is a three-bedroom semi-detached home offeri...

3 Old Dundonald Mews

4 Bedroom Town House | Offers in region of £210,000

Situated in a convenient and sought-after Dundonald location, 3 Old Dundonald Mews is a four-bedroom townhouse offering...

11 Gransha Wood

3 Bedroom Town House | Offers in region of £219,950

11 Gransha Wood is a beautifully presented three-bedroom mid-townhouse, ideally situated in a highly sought-after reside...

John Minnis Estate Agents (Holywood)

Holywood, County Down, BT18 9AD

028 9042 8888

How much is your home worth?

Use our short form to request a valuation of your property.

Request a Valuation

Mortgage Calculator

Amount Borrowed: £
Total Amount Repayable: £
Total Monthly Payment: £
©2026 The Guild of Property Professionals. All rights reserved. Terms and Conditions | Privacy Policy | Cookie Policy | Complaints Policy | Members Login
The Guild of Property Professionals Trading Address: 121 Park Lane, London W1K 7AG. GPEA Limited. Registered in England & Wales.  Company No: 02819824.  Registered Office Address: 2 St. Stephen's Court, St. Stephen's Road, Bournemouth, Dorset, England, BH2 6LA.  VAT Registration No: 576 8795 61
Book a Property Valuation Update Cookies Preferences