Horsell, Surrey, GU21

Guide Price
£525,000
SSTC
This property listing is now SSTC

3 Bedroom Semi-Detached House for sale in Horsell

2 3 1
  • * Modern Fitted Kitchen * Original features such as fireplaces and wooden flooring * Rear garden stretchin in excess of 80ft *Office/Dressing Room *Summer House *Off Street Parking

An exciting opportunity to purchase this delightful two/three bedroom character property, ideally situated in the highly sought after location of Horsell village, offering a selection of local amenities, gastro pubs and excellent schools.

Village life is balanced with the convenience of being within a mile of Woking town centre, providing a fast and frequent train service into London Waterloo in approximately 26 minutes.

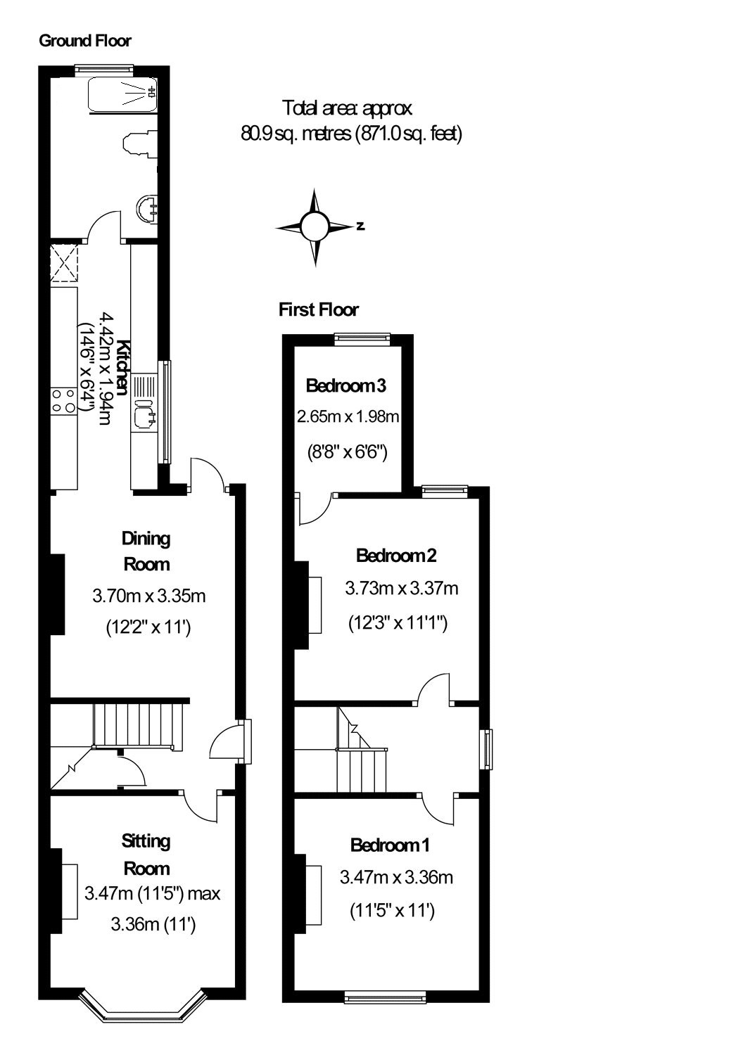
Everyday life naturally centres around the rear of the house. A generous dining room flows into the kitchen and out to the patio, forming a superb everyday hub for cooking, dining and socialising. The connected space works as well for relaxed entertaining as it does for everyday family life.

The kitchen is fitted with a comprehensive range of eye and base level units and offers space for all essential appliances. At the very rear of the property is a modern family bathroom with a large walk-in shower, a vanity unit and tasteful fittings. To the front, the sitting room offers an attractive bay window and a fireplace, giving you a calm, separate space to unwind.

Upstairs there are two generous double bedrooms. Bedroom two has an adjoining further room that adds useful flexibility, whether as a nursery, dressing room or study, and it offers clear potential for an en-suite, if desired, subject to the usual consents.

The west facing garden enjoys sun well into the evening and the large patio area provides the perfect setting for al fresco dining, outdoor entertaining, or simply relaxing after a long day. The rear garden is mainly laid to lawn and complemented by well-kept planting and a storage shed, ideal for storing garden equipment.

For young professionals seeking extra space with an easy commute, and for families who value strong local schooling and a versatile layout, this is a well presented home that effortlessly supports the way you want to live.

Important Information

  • This is a Freehold property.

Property Ref: HOR250173

Share:

Similar Properties

Horsell, Surrey, GU21

3 Bedroom Semi-Detached House | Guide Price £525,000

Located within a quiet and sought-after residential road in the heart of Horsell, this three-bedroom semi-detached home...

Chobham, Woking, Surrey, GU24

2 Bedroom Bungalow | Guide Price £515,000

Recently refurbished throughout, this beautifully presented two-bedroom home is set within a desirable over-55s developm...

Horsell, Surrey, GU21

3 Bedroom End of Terrace House | Offers Over £500,000

This charming three double bedroom period home is full of character and offers well-balanced accommodation arranged over...

Chobham, Surrey, GU24

3 Bedroom Semi-Detached Bungalow | Guide Price £550,000

A rare opportunity to acquire a semi-detached bungalow in a popular residential side road. Presented to the market in ex...

Horsell, Surrey, GU21

2 Bedroom Apartment | £550,000

14 Heatherdown Gardens: a contemporary 2-bed, 2-bath ground floor apartment in Horsell, with a private rear garden and t...

Horsell, Surrey, GU21

3 Bedroom Semi-Detached House | Guide Price £550,000

Situated along the ever-popular Bury Lane, just moments from Horsell village and within easy reach of Woking town centre...

Seymours (Horsell)

Horsell, Surrey, GU21 4SY

01483 755222

How much is your home worth?

Use our short form to request a valuation of your property.

Request a Valuation

Mortgage Calculator

Amount Borrowed: £
Total Amount Repayable: £
Total Monthly Payment: £
©2026 The Guild of Property Professionals. All rights reserved. Terms and Conditions | Privacy Policy | Cookie Policy | Complaints Policy | Members Login
The Guild of Property Professionals Trading Address: 121 Park Lane, London W1K 7AG. GPEA Limited. Registered in England & Wales.  Company No: 02819824.  Registered Office Address: 2 St. Stephen's Court, St. Stephen's Road, Bournemouth, Dorset, England, BH2 6LA.  VAT Registration No: 576 8795 61
Book a Property Valuation Update Cookies Preferences