Beach Street, Deal

Guide Price
£975,000

4 Bedroom Terraced House for sale in Kent

2 4 1
  • Seafront location Direct sea views Close to town and station Grade II Listed Original features Courtyard garden 2 storey outbuilding No onward chain

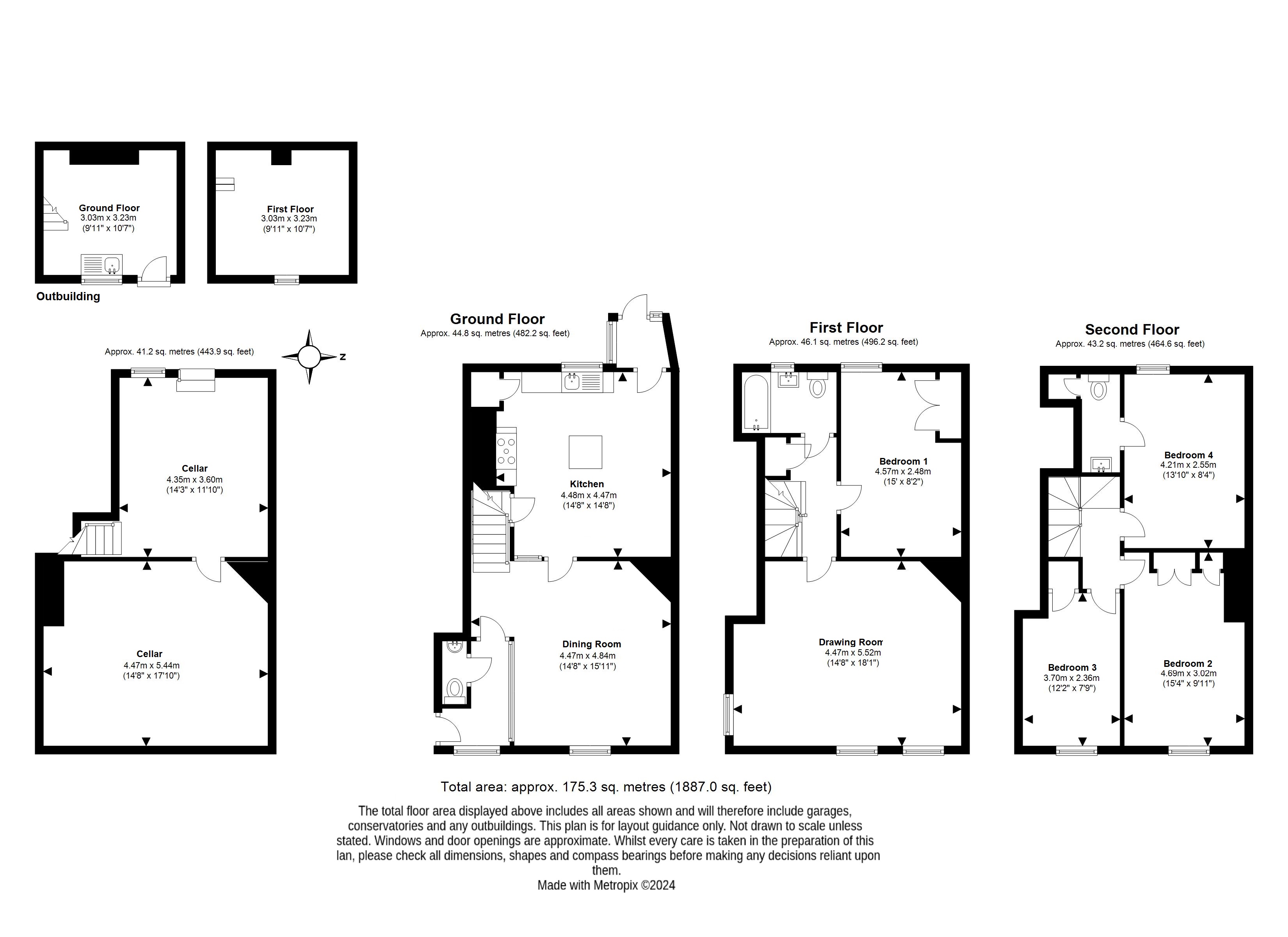
St Elmo is a substantial Grade II Listed Georgian townhouse, forming an important part of Deal's superb sea front. The property is just minutes away from the station, High Street shops and Saturday's bustling market.

This charming residence retains much of the

original character of the period with panelled

doors, high ceilings, three quarter length sash

windows and well proportioned rooms, augmented by modern decor and chic design elements.

To the ground floor, you are greeted by an

impressive dining room, complemented by tall

ceilings and feature fireplace against exposed

original brickwork. The room is connected to the

kitchen, providing the ultimate entertaining floor.

The kitchen enjoys a paired back aesthetic,

with the emphasis on the original features and

rich, antique units with marble worktops. There

is also a useful guest WC by the entrance.

The lower ground floor houses two large rooms,

suitable for adaptation to provide further

accommodation, if required.

The first floor features a most delightful drawing

room. This double aspect room with direct sea views from each window, has exposed floors, panelled walls and a feature fireplace. Additionally, the first floor offers a double bedroom and bathroom.

Heading to the second floor, you'll find three

further bedrooms, one with an en-suite WC,

although a shower could easily be added.

The two front bedrooms both have

splendid views over English Channel.

OUTSIDE

To the rear of the house, there is a lovely south and west facing walled courtyard garden, designed as a brick patio area with flowerbeds stocked with a variety of climbing plants, shrubs including roses, acers and hydrangea. At the end of the garden is a former smokehouse, currently

used as a garden store. This could be converted to provide a studio or further living space, subject to approval.

///what3words

gave.calculating.lands

For full details, please download our property web brochure document.

Viewings: Strictly by appointment with the agents.

Identification checks: Should a purchaser(s) have an offer accepted on a property marketed by Bright & Bright, they will need to undertake an identification check. This is done to meet our obligation under Anti Money Laundering Regulations (AML) and is a legal requirement. We use a specialist third party service to verify your identity. The cost of these checks is £30 inc. VAT per purchaser, which is paid in advance, when an offer is agreed and prior to a sales memorandum being issued. This charge is non-refundable under any circumstances.

Important Information

  • This is a Freehold property.
  • This Council Tax band for this property is: F
  • EPC Rating is D

Property Ref: BRB180160

Share:

Similar Properties

Hawkshill Road, Walmer

4 Bedroom Detached House | Guide Price £950,000

Spacious family home on a substantial plot in sought after private road, close to the beach.

Hawksdown, Walmer

5 Bedroom Detached House | Guide Price £850,000

An elegantly proportioned and spacious family home set on a generous plot, peacefully situated within the exclusive Hawk...

Beach Mews, Kingsdown Road

4 Bedroom Detached House | Guide Price £799,000

An elegant and contemporary detached family home forming part of an exclusive development, just a short stroll from the...

Mongeham Road, Mongeham

4 Bedroom Detached House | Guide Price £1,000,000

The Vale is a detached freehold period property on substantial plot circa 1.11 acres with potential to extend/develop.

Granville Road, Walmer

4 Bedroom Detached House | Guide Price £1,150,000

A beautifully refurbished family home in sought after location, a short walk from the beach and Walmer Castle.

Mill Road, Deal

4 Bedroom Detached House | Guide Price £1,200,000

A beautifully presented detached Edwardian home, situated opposite Victoria Park, convenient for the town centre, statio...

Bright & Bright (Deal)

29 Victoria Road, Deal, Kent, CT14 7AS

01304 374071

How much is your home worth?

Use our short form to request a valuation of your property.

Request a Valuation

Mortgage Calculator

Amount Borrowed: £
Total Amount Repayable: £
Total Monthly Payment: £
©2026 The Guild of Property Professionals. All rights reserved. Terms and Conditions | Privacy Policy | Cookie Policy | Complaints Policy | Members Login
The Guild of Property Professionals Trading Address: 121 Park Lane, London W1K 7AG. GPEA Limited. Registered in England & Wales.  Company No: 02819824.  Registered Office Address: 2 St. Stephen's Court, St. Stephen's Road, Bournemouth, Dorset, England, BH2 6LA.  VAT Registration No: 576 8795 61
Book a Property Valuation Update Cookies Preferences